




Location Bureau 1 226 m²
93400 Saint-Ouen
1 226 m²
Divisible dès 230 m²
Loyer sur demande
Disponibilité : Immédiate

Johanna GILQUIN
Description
Installez votre entreprise dans des bureaux au style industriel affirmé à Saint-Ouen, alliant volumes généreux, flexibilité d’aménagement et excellente accessibilité aux portes de Paris.
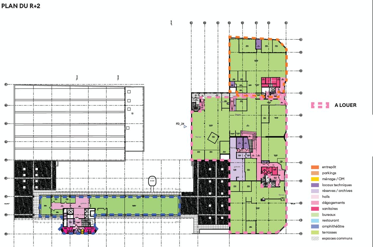
Bureaux à louer de 1 226 m² divisibles à partir de 230 m² à Saint-Ouen, avec surfaces en rez-de-chaussée et étage, monte-charge, parkings et esprit industriel.
Situé au 1-3 rue Étienne Dolet à Saint-Ouen, cet ensemble immobilier propose environ 1 226 m² de bureaux à louer, divisibles à partir de 230 m², dans un environnement tertiaire en plein développement à proximité immédiate de Paris. Les locaux se distinguent par leur style industriel avec techniques apparentes, offrant un cadre de travail moderne et atypique, particulièrement recherché par les entreprises créatives, tech ou en forte croissance.
L'offre se compose d'un lot d'environ 230 m² en rez-de-chaussée et d'un plateau d'environ 1 000 m² au 2 étage, permettant une grande flexibilité d'organisation selon les besoins. Les espaces peuvent être aménagés en open-space ou bureaux cloisonnés, favorisant collaboration et modularité.
Les prestations incluent notamment :
Monte-charge
Nombreux emplacements de parking
Volumes généreux avec techniques apparentes
Organisation adaptable selon les usages
L'environnement immédiat est dynamique, en pleine transformation, avec une montée en gamme du secteur de Saint-Ouen, attirant de nombreuses entreprises et acteurs économiques.
La desserte est un véritable atout :
Métro
Ligne 13 : Garibaldi à environ 500 m
Ligne 13 / 14 : Mairie de Saint-Ouen à 760 m
Ligne 4 : Porte de Clignancourt 960 m
Disponible immédiatement, à un loyer attractif de 220 /m²/an, ces bureaux à Saint-Ouen représentent une opportunité idéale pour les entreprises recherchant des espaces flexibles, au design industriel et bien connectés, dans un secteur en plein essor du Grand Paris.










