




Location Entrepôt Classe B 7 116 m²
12230 La Cavalerie
7 116 m²
42 €
HT/HC/m²/an
Disponibilité : Immédiate

Nicolas MASERO
Description
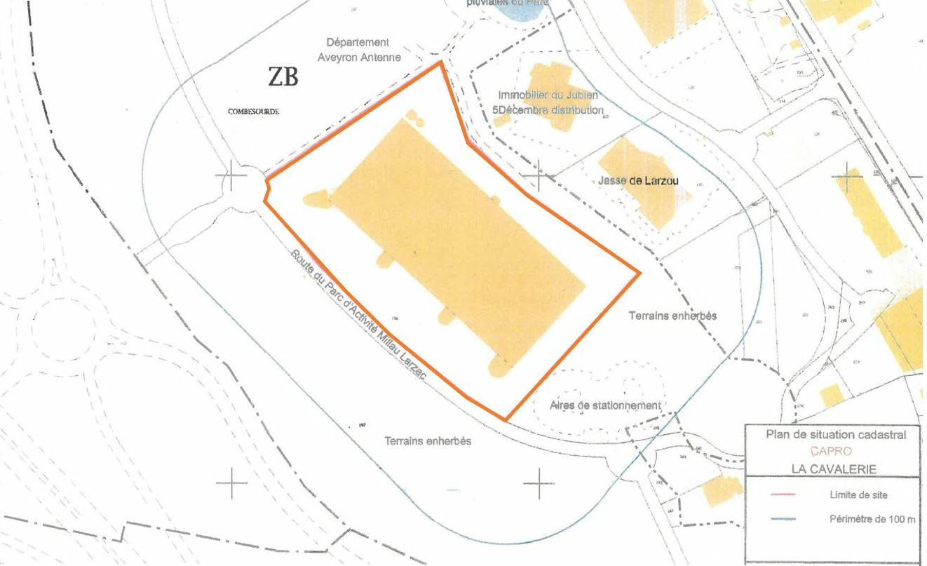
LA CAVALERIE (12) - PARC D'ACTIVITÉS MILLAU LARZAC
ENTREPÔT LOGISTIQUE CLASSE B - CELLULE À LOUER
Au sein d'une plateforme logistique de 20 232m², nous vous proposons à la location une cellule de stockage avec bureaux et locaux sociaux d'accompagnement représentant une superficie de 7 116m² répartie comme suit : 6 216 m² de stockage, 675 m² de bureaux en R+1, 150 m² de show-room/accueil et 75 m² de locaux sociaux au RDC. Situé au sud de Millau, le site est en bordure de l'axe autoroutier reliant Montpellier à Clermont-Ferrand(A75). ICPE Autorisation : 1510
BNP PARIBAS REAL ESTATE vous propose à la location, dans un entrepôt logistique Classe B, une cellule d'une surface totale d'environ 7 116 m². Le bâtiment est situé à La Cavalerie (12) au sein du Parc d'activités Millau Larzac à proximité des axes routiers D999 / A75.
Disponibilité : immédiate
Caractéristiques techniques
Surface bureaux : 675 m²
Local de charge
Hauteur libre : 8,30 mètres
Portes d'accès à quai : 6
Porte de plain-pied : 1
Murs : Bardage double peau
Charges au sol : 5 tonnes/m²
Sprinklers type ESFR
Parking : 140 places VL
Couverture : Bac acier isolé
ICPE
ICPE A : 1510
Accessibilité
Accès routiers : D999 / A75
Aérodrome de Millau-Larzac à 5 km
Pour toute information complémentaire, contactez-nous.
Services & prestations
Hauteurs
-
Hauteur libre : 8,30 mètre(s)
Normes, Certifications et Labels
-
Autorisation d'exploiter 1 : 1510
Type / Etat du bâtiment
-
Etat de l'immeuble : Seconde main Bâtiment rénové techniquement (ICPE)
-
Etat des locaux : Très bon état
Structure du bâtiment
-
Charpente : Bois lamelé collé et structure pillier béton
-
Couverture : Bac acier isolé et toiture avec panneaux photovoltaïques
-
Murs : Bardage double peau
Equipements
-
Charge au sol Rdc : 5,00 tonne(s)/m²
-
Distribution chauffage : Réversible électrique chaud/froid
-
Faux plafond
-
Porte d'accès plain-pied : 1
-
Porte d'accès à quai : 6
-
Réseau Incendie Armé
-
Sol bureaux : Carrelage
-
Sprinklers : Mono couche (ESFR)
-
Type de chauffage : Gaz par aérothermes
Prestations de service
-
Parking : 140 Places (Cellules 1 et 2)
-
Sécurité : Alarme intrusion / alarme incendie / portail sécurisé
Aménagements
-
Accueil
-
Hall d'accueil
-
Locaux sociaux
-
Salle informatique
-
Sanitaires
Extérieurs
-
Local de charge