




Location Entrepôt Classe A 10 602 m²
67100 Strasbourg
10 602 m²
Divisible dès 5 270 m²
à partir de 54 €
HT/HC/m²/an
Disponibilité : Immédiate

David RAYBOIS
Description
STRASBOURG (67)
Zone Eurofret - Port Autonome
CELLULES À LOUER
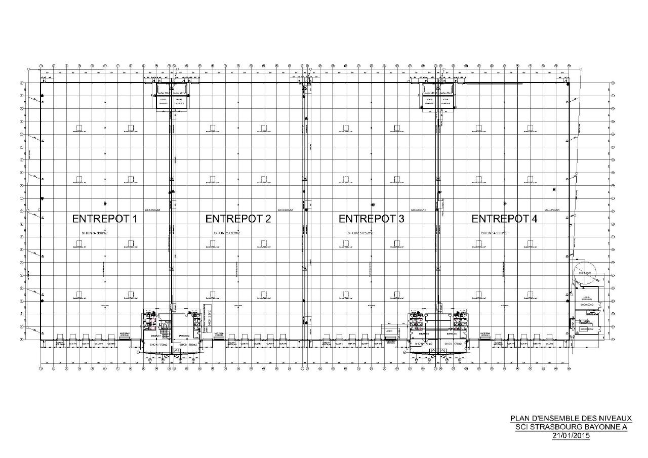
Nous vous proposons à la location, dans un entrepôt logistique Classe A, 2 cellules totalisant une surface d'environ 10 602 m² divisibles à partir de 5 270 m². Situées sur un terrain clôturé, les cellules sont équipées de 5 portes à quai et d'1 porte de plain-pied chacune. Le site bénéficie d'une large aire de manœuvre commune.
Autorisations ICPE : 1510-1, 1532-2, 1412-2b, 2925
BNP PARIBAS REAL ESTATE vous propose à la location, dans un entrepôt logistique Classe A, 2 cellules d'une surface totale d'environ 10 602 m² divisibles à partir de 5 270 m². Le bâtiment est situé à Strasbourg (67) Zone Eurofret - Port Autonome, à proximité de l'autoroute A35.
Le port autonome de Strasbourg est idéalement destiné aux activités liées au TRANPSORT et à la LOGISTIQUE car il est situé à proximité des autoroutes A4/A35 et avec un accès direct vers l'Allemagne.
Le local proposé est situé à environ 1,2 kilomètre du parking TIR (transport International Routier) et du Centre Routier de Strasbourg.
Il est également situé à équidistance du centre-ville de Strasbourg, de Kehl la ville frontière Allemande, et de l'échangeur de l'AUTOROUTE A4/A35, dans un rayon de 9 kilomètres.
Disponibilité : immédiate
Caractéristiques techniques
Surface bureaux : 346 m²
Charpente : métallique
Hauteur libre : 10 mètres
Portes d'accès à quai : 10
Portes de plain-pied : 2
Murs : Bardage double peau
Charges au sol : 4 tonnes / m²
Sprinklers
Couverture : bac acier isolé
ICPE
ICPE A : 1510-1, 1532-2, 1412-2b, 2925
Accessibilité
Accès routiers : A35
Aéroport Strasbourg Entzheim à 23 km
Pour toute information complémentaire, contactez-nous.
Services & prestations
Hauteurs
-
Hauteur libre : 10,00 mètre(s)
Normes, Certifications et Labels
-
Autorisation d'exploiter 1 : 1412, 1510, 1532, 2925
Structure du bâtiment
-
Charpente : Métallique
-
Couverture : Bac acier isolé
-
Murs : Bardage double peau
Equipements
-
Charge au sol Rdc : 4,00 tonne(s)/m²
-
Climatisation : Réversible
-
Eclairage Bureaux : Luminaires encastrés
-
Eclairage intérieur : Lampe à sodium
-
Faux plafond
-
Fenêtres : Double vitrage
-
Porte d'accès plain-pied : 2 soit 1 par cellule
-
Porte d'accès à quai : 10 soit 5 par cellule
-
Puissance électrique : Tarif Jaune 42,00 KWA
-
Réseau Incendie Armé : 9 par cellule
-
Sols du bâtiment : Quartz anti-poussière
-
Source chauffage : Gaz
-
Sprinklers










