




Location Local d'activité 250 m²
67100 Strasbourg
250 m²
Loyer sur demande
Disponibilité : 2 mois après accord

Josquin PETASSOU
Description
STRASBOURG PORT DU RHIN
SHOW-ROOM/STOCKAGE SUR AXE PASSANT - Réf OLACT2640448
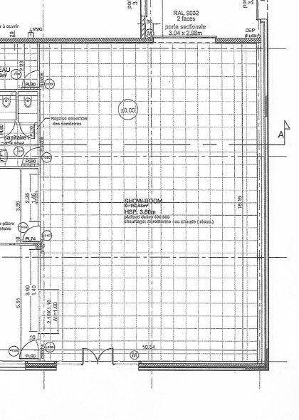
BNP PARIBAS REAL ESTATE vous présente un local d'activité d'environ 250 m² à la location : il se compose d'un espace en façade d'environ 150 m² destiné à un usage de bureau/show-room, accompagné d'une surface de 100 m² de stockage/atelier à l'arrière du bâtiment.
Le lot est équipé d'une porte sectionnelle de plain-pied.
Le bâtiment visible sur une axe passant est situé sur un terrain clôturé avec portail et sera disponible sous 2 mois.
Espaces extérieurs : Aire de lavage + possibilité de showroom ou stockage extérieur.
Possibilité de location de stockage complémentaire en chapiteau : 120 m² pour 15.000 HT /an
Activité non autorisée : garage automobile
Contactez-nous pour organiser une visite de ce site !
Services & prestations
Type / Etat du bâtiment
-
Etat des locaux : Etat d'usage
Informations complémentaires
-
Aire de lavage, Stockage ou showroom extérieur
-
Showroom extérieur










