




Location Entrepôt Classe A 26 569 m²
13300 Salon-de-Provence
26 569 m²
72 €
HT/HC/m²/an
Disponibilité : Immédiate

Nicolas MASERO
Description
SALON-DE-PROVENCE (13)
ENTREPÔT LOGISTIQUE À LOUER
Nous vous proposons à location un entrepôt logistique d'une superficie totale de 26 569 m² environ dont 24 426 m² de stockage, 1 380 m² de bureaux et 763 m² de locaux techniques. Disponible immédiatement.
ICPE : 1510(A), 1530(A), 2663-1(A), 2663-2(A), 1412(D), 1432(D)
Une localisation stratégique au sein du 3ème marché logistique en France. Salon-de-Provence est une localité clé située à 50 km de Marseille, au coeur de la région Provence-Alpes-Côte d'Azur.
BNP PARIBAS REAL ESTATE vous propose à la location un entrepôt logistique Classe A, d'une surface totale d'environ 26 569 m². Le bâtiment est situé à Salon-de-Provence (13) à proximité des axes routiers D113 / A7 / A54. Une localisation stratégique au sein du 3ème marché logistique en France. Salon-de-Provence est une localité clé située à 50 km de Marseille, au coeur de la région Provence-Alpes-Côte d'Azur.
Disponibilité : immédiate
Caractéristiques techniques
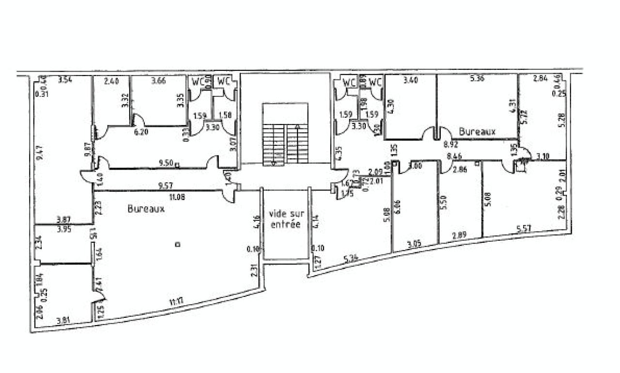
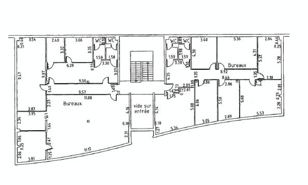
- Surface bureaux : 1 380 m²
- Source chauffage : Gaz
- Hauteur libre : 10,50 mètres
- Portes d'accès à quai : 30
- Portes de plain-pied : 2
- Aire de manoeuvre : 35 ml
- Charges au sol : 7 tonnes / m²
- RIA
- Parking : 109 places
ICPE
- ICPE A : 1510, 1530, 2663.1&2
- ICPE D : 1412, 1432
Accessibilité
- Accès routiers : D113 / A7 / A54
Pour toute information complémentaire, contactez-nous.
Services & prestations
Hauteurs
-
Hauteur libre : 10,50 mètre(s)
Normes, Certifications et Labels
-
Autorisation d'exploiter 1 : 1510, 1530, 2663-1, 2663-2
-
Autorisation d'exploiter 2 : 1412, 1432
Type / Etat du bâtiment
-
Etat de l'immeuble : Seconde main
-
Etat des locaux : Très bon état
Equipements
-
Charge au sol Rdc : 7,00 tonne(s)/m²
-
Porte d'accès plain-pied : 2
-
Porte d'accès à quai : 30
-
Réseau Incendie Armé
-
Source chauffage : Gaz
Prestations de service
-
Parking : 109 Places
Extérieurs
-
Aire de manoeuvre : 35 ml










