




Location Entrepôt Classe A 9 271 m²
45140 Ormes
9 271 m²
52 €
HT/HC/m²/an
Disponibilité : Immédiate

Eric LECOMTE
Description
ORMES (45)
ORLEANS NORD
BÂTIMENT LOGISTIQUE À LOUER
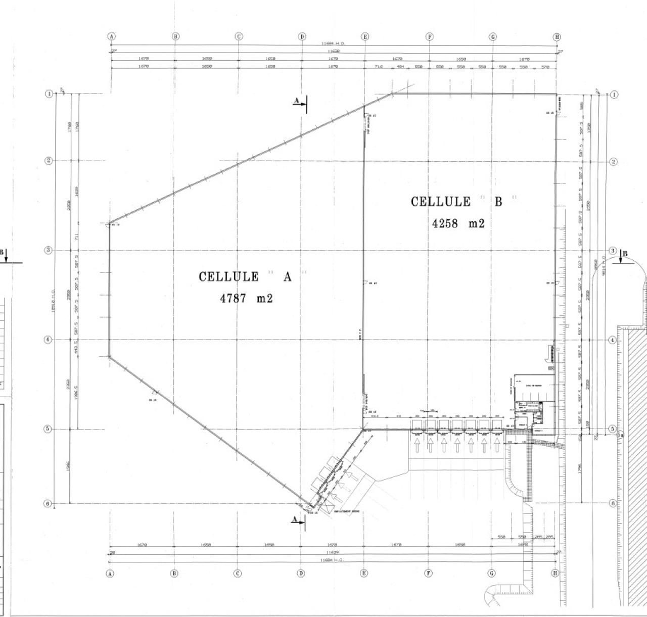
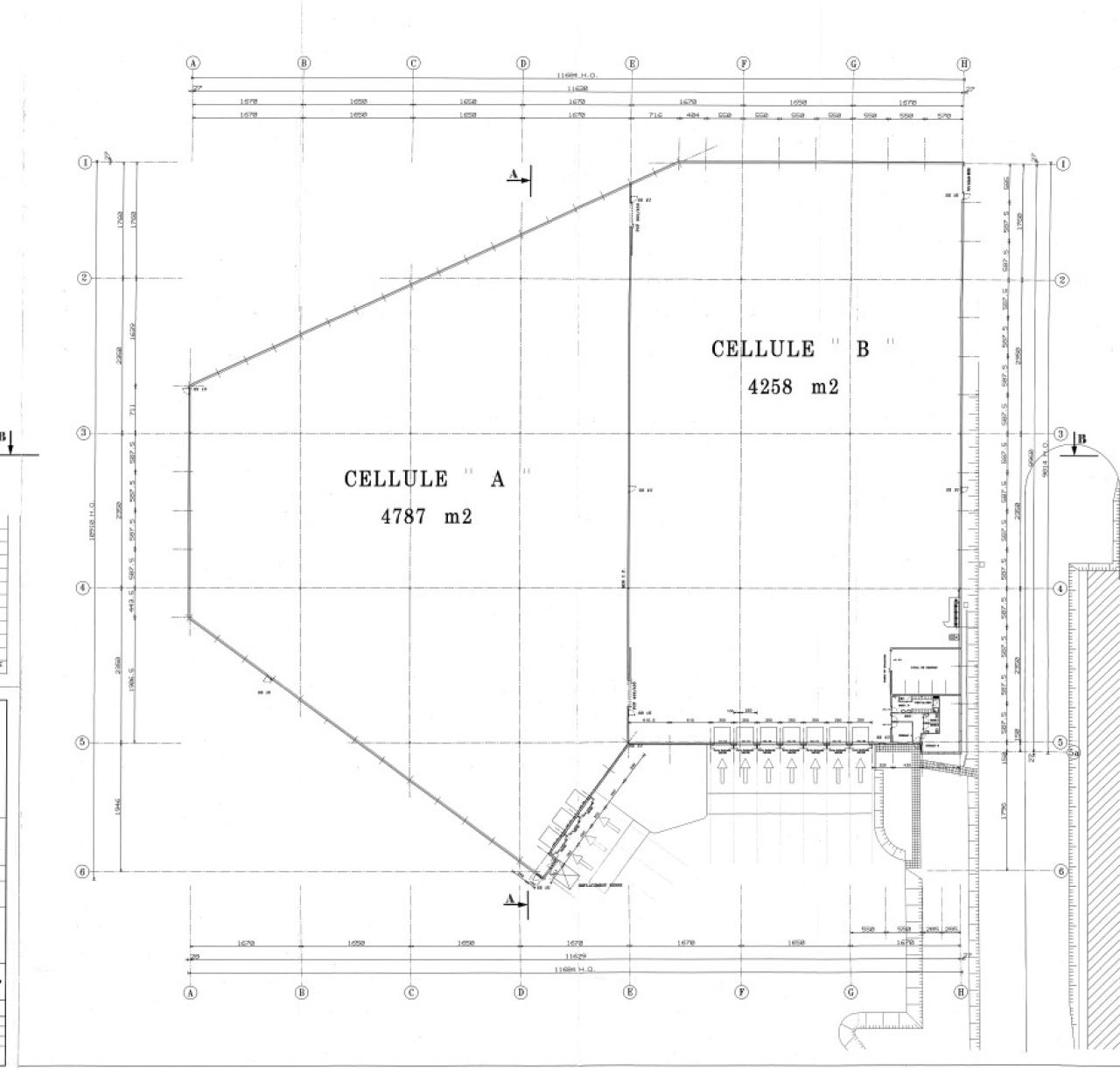
Situé dans le "Pôle 45" d'Ormes / Saran, premier pôle logistique de la région Centre-Val-de-Loire, nous vous proposons à la location un entrepôt logistique indépendant d'environ 9 721 m² sur un terrain clos et aménagé. Ce bâtiment bénéficie d'un emplacement stratégique à proximité de l'autoroute A10, au coeur d'un pôle attractif. Disponible immédiatement.
ICPE : 1510(A), 1434(DC), 1530(D), 1532(D), 2663-1(D), 2663-2(D), 2925(D), 4734(DC)
Ce bâtiment indépendant en excellent état bénéficie de 10 quais, 1 rampe plain-pied, 10 places VL et un cour PL de 30 m. Hauteur libre : 9,95 m.
Services & prestations
Hauteurs
-
Hauteur libre : 9,95 mètre(s)
Normes, Certifications et Labels
-
Autorisation d'exploiter 1 : 1510
-
Autorisation d'exploiter 2 : 1530 et 1434-1-b, 1532, 2663-1, 2663-2, 2925, Oui
Type / Etat du bâtiment
-
Etat de l'immeuble : Neuf
-
Etat des locaux : Etat d'usage, Etat d'usage
Structure du bâtiment
-
Charpente : Métallique
-
Couverture : Bac acier isolé Exutoires de fumées
-
Murs : Bardage double peau
Equipements
-
Charge au sol Rdc : 5,00 tonne(s)/m² et 7,5T en pied de rack
-
Câblage informatique
-
Eclairage Bureaux : Luminaires encastrés
-
Eclairage intérieur : LED
-
Eclairage naturel : Skydomes
-
Porte d'accès plain-pied : 1 Accès semi-remorque
-
Porte d'accès à quai : 10
-
Réseau Incendie Armé
-
Sol bureaux : Carrelage
-
Sols du bâtiment : Béton
-
Source chauffage : Gaz
-
Sprinklers : Mono couche (ESFR)
Prestations de service
-
Parking : 10 Places
-
Sécurité : Murs coupe-feu 2H, portes coupe-feu 1H
Aménagements
-
Accès Pers. Mobilité Réduite
-
Aménagement des bureaux : Cloisonnés/Ouverts
-
Sanitaires : Privatif(s)
Extérieurs
-
Aire de manoeuvre : 30 ml
-
Eclairage extérieur
-
Local de charge
Accès véhicules
-
Accessibilité type véhicules : Tous porteurs
Informations complémentaires
-
Chauffage convecteurs électriques










