




Location Entrepôt Classe C 8 946 m²
61200 Argentan
8 946 m²
Loyer sur demande
Disponibilité : Immédiate

Remy LOURME
Description
ARGENTAN (61)
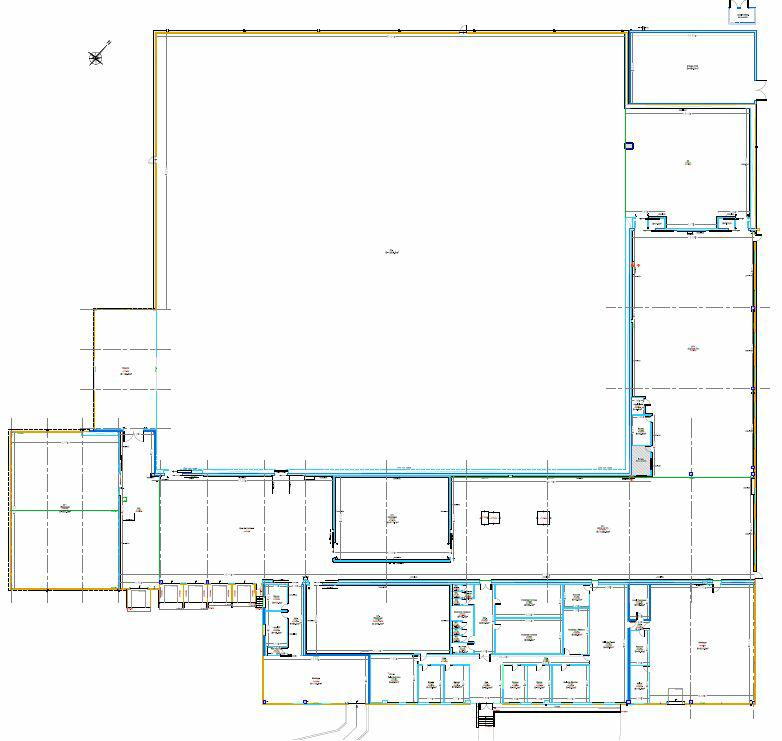
Nous vous proposons un entrepôt logistique frigorifique d’environ 8 946 m² (5015 m² en froid négatif et 2141m² en froid positif convertibles en froid négatif), sur un terrain d’environ 26 300 m². Disponible immédiatement. Absence d’ICPE.
La zone en froid négatif est rackée et peut accueillir environ 3000 palettes.
BNP PARIBAS REAL ESTATE vous propose, à la location, un entrepôt logistique frigorifique d’une surface de 8 946 m².
Accessibilité :
- Dessertes routières : A88/D958
- Bus : A
- Gare : Argentan
Services / Prestations :
- Hauteur libre : 8 mètres
- 5 quais
Dispositions réglementaires :
- Absence d’ICPE 1511, le stockage de marchandises ne devra pas excéder un volume de 5000 m3
Pour toute information complémentaire, n'hésitez pas à prendre contact avec nos consultants BNP PARIBAS REAL ESTATE.
Services & prestations
Hauteurs
-
Hauteur libre : 8,00 mètre(s)
Equipements
-
Porte d'accès à quai : 5