




Location Entrepôt Classe A 12 894 m²
62100 Calais
12 894 m²
Loyer sur demande
Disponibilité : 12 mois après accord

Maxence MARECHAL
Description
CALAIS (62)
PC et ICPE obtenus
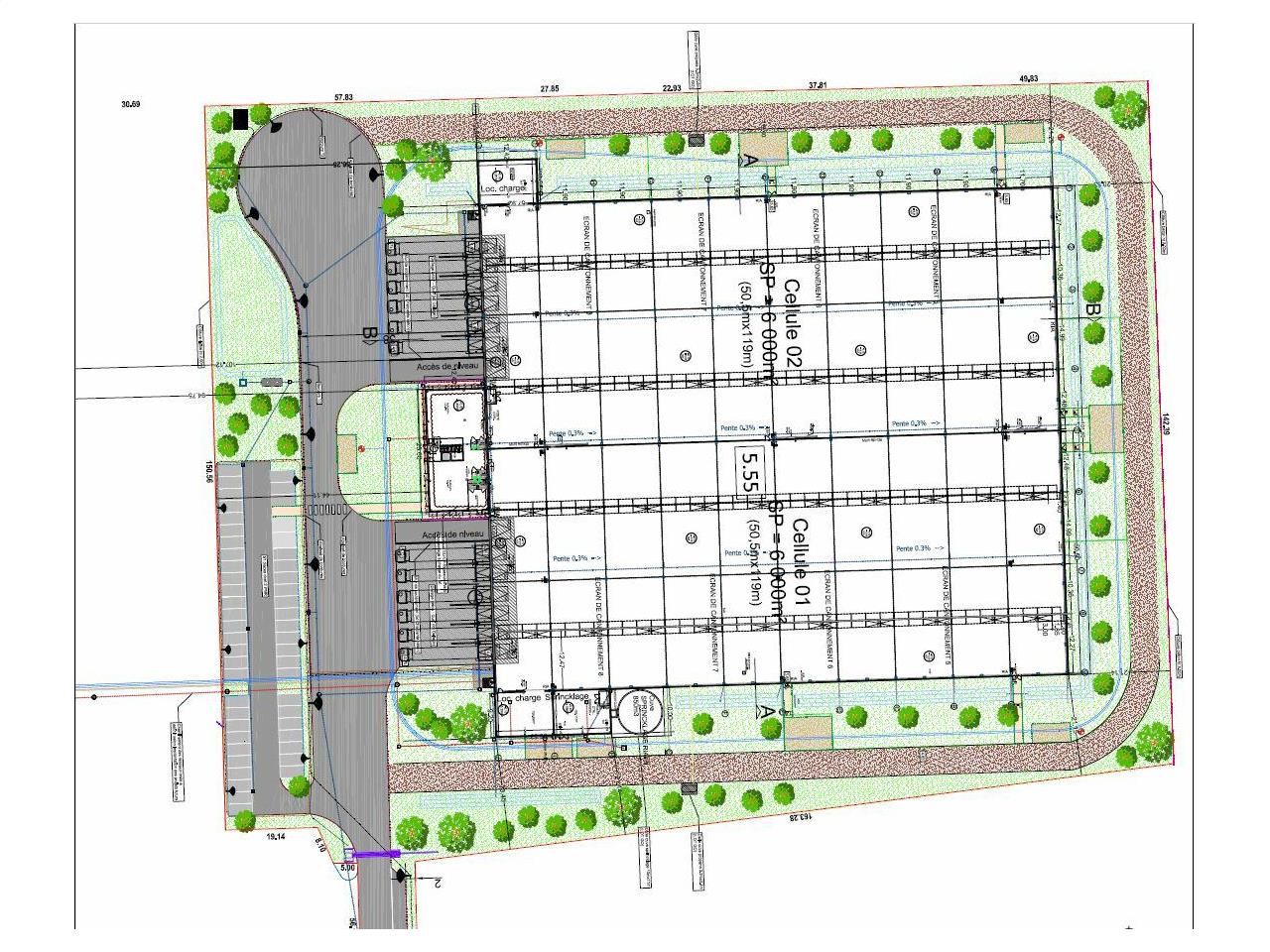
Nous vous proposons un projet d'entrepôt logistique d'une superficie de 12 894 m² situé à Calais.
Certification BREEAM.
ICPE: E : 1510-2 ; 1530-2 ; 1532-2 ; 2662-2 ; 2663-1 ; 2663-2 / D : 2925
BNP Paribas Real Estate vous propose ce projet d'entrepôt logistique Classe A, situé à Calais.
Certification BREEAM.
Caractéristiques techniques :
- Charge au sol RDC : 5.00 tonnes/m²
- Portes d'accès à quai : 6 quais niveleurs type auto-dock par cellule
- Porte d'accès plain-pied : un accès de plain-pied par cellule
- Dimension cellule : 50.50m de largeur par 119ml de profondeur
- Capacité pont roulant : Chariot 2 tonnes par roue Pression 50 bars
- Sprinklers : Mono couche (ESFR)
DESSERTE :
- Desserte routière : à proximité d’échangeurs des autoroutes A16 et A26
- TER : à 200 m de la gare Beau Marais
Services & prestations
Normes, Certifications et Labels
-
Autorisation d'exploiter 1 : E : 1510-2 ; 1530-2 ; 1532-2 ; 2662-2 ; 2663-1 ; 2663-2 / D : 2925
-
Certification : BREEAM
Structure du bâtiment
-
Charpente : Béton
-
Couverture : Béton
Equipements
-
Capacité pont roulant : Chariot 2 tonnes par roue Pression 50 bars
-
Charge au sol Rdc : 5,00 tonne(s)/m²
-
Eclairage Bureaux : Luminaires encastrés
-
Eclairage intérieur : LED
-
Faux plafond
-
Porte d'accès plain-pied : Un accès de plain-pied par cellule
-
Porte d'accès à quai : 6 quais niveleurs type auto-dock par cellule
-
Racks
-
Réseau Incendie Armé
-
Sprinklers : Mono couche (ESFR)
Prestations de service
-
Parking : VL et PL
-
Sécurité : / Alarme incendie
Aménagements
-
Hall d'accueil
-
Locaux sociaux
Extérieurs
-
Aire de manoeuvre
-
Local de charge
Informations complémentaires
-
Dimension cellule : 50.50m de largeur par 119ml de profondeur.
-
TGBT










