




Location Entrepôt Classe A 8 265 m²
69330 Meyzieu
8 265 m²
Loyer sur demande
Disponibilité : Immédiate

Nicolas MASERO
Description
MEYZIEU (69)
CELLULE À LOUER
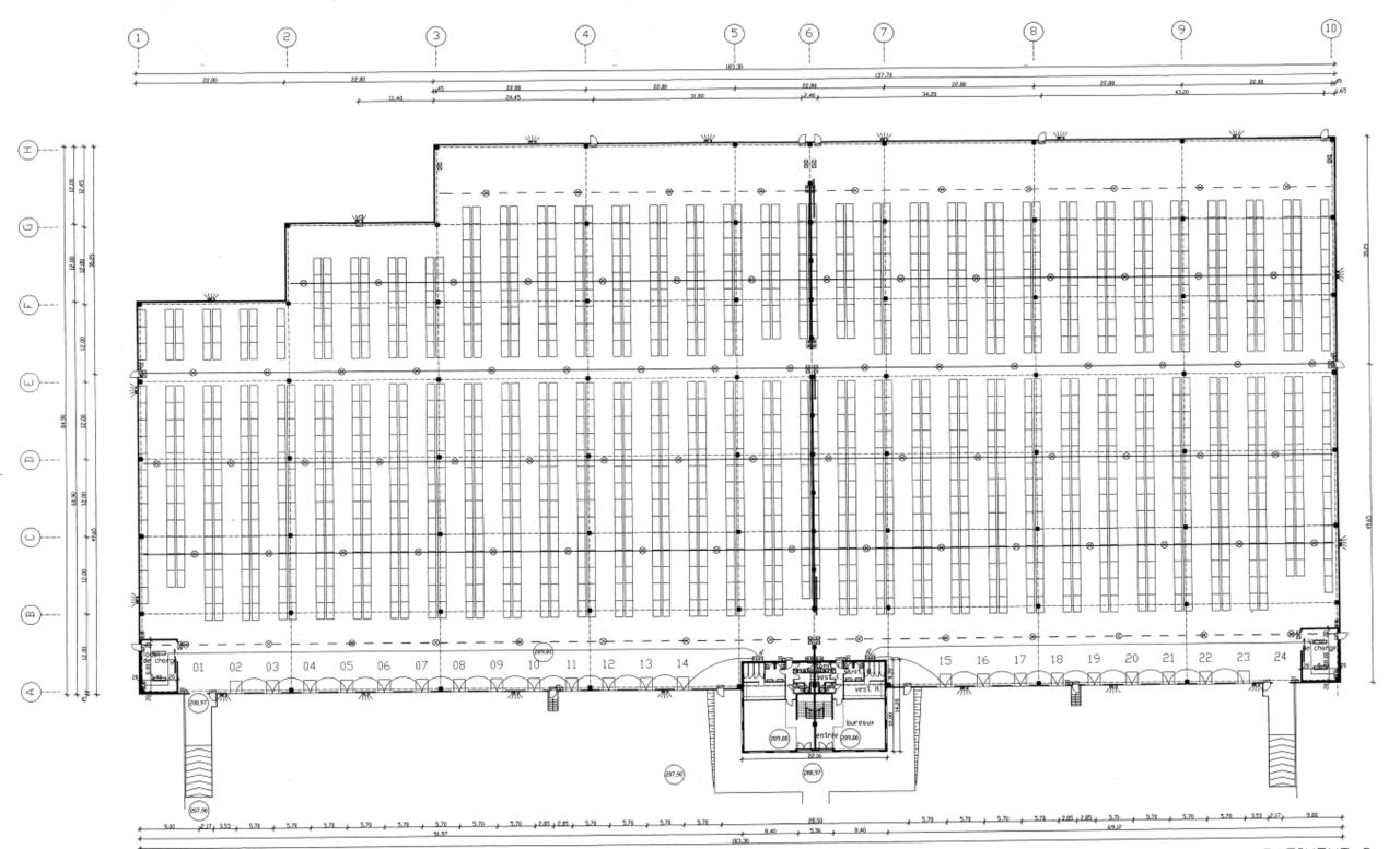
Au sein d'un entrepôt logistique Classe A d'environ 15 383 m², nous vous proposons à la location une cellule d'environ 8 265 m² dont 308 m² de bureaux. Disponibilité immédiate.
ICPE : 1510-2(E), 1530-2(E), 1532-2(E), 2663-1-b(E), 2663-2-b(E), 4718-2(DC), 2925(D), 4320(NC), 4321(NC), 2910-A(NC)
Le site bénéficie d'une localisation stratégique, à proximité de la rocade est (A46) permettant une connexion rapide vers l'A42 (direction Genève) et l'A43 (direction Chambéry/Grenoble).
Au sein d'un entrepôt logistique Classe A d'environ 15 383 m², nous vous proposons à la location une cellule d'environ 8 265 m² dont 308 m² de bureaux. Disponibilité immédiate.
ICPE : 1510-2(E), 1530-2(E), 1532-2(E), 2663-1-b(E), 2663-2-b(E), 4718-2(DC), 2925(D), 4320(NC), 4321(NC), 2910-A(NC)
Le site bénéficie d'une localisation stratégique, à proximité de la rocade est (A46) permettant une connexion rapide vers l'A42 (direction Genève) et l'A43 (direction Chambéry/Grenoble).
Services & prestations
Hauteurs
-
Hauteur libre : 10,00 mètre(s)
Normes, Certifications et Labels
-
Autorisation d'exploiter 2 : 2925, Oui
-
Autorisation d'exploiter 3 : 1510, 1530, 1532, 2663-1, 2663-2
Equipements
-
Charge au sol Rdc : 5,00 tonne(s)/m²
-
Porte d'accès plain-pied : 1
-
Porte d'accès à quai : 13
Prestations de service
-
Parking : 3 Places, 40 Places
Extérieurs
-
Aire de manoeuvre : 30 ml










