




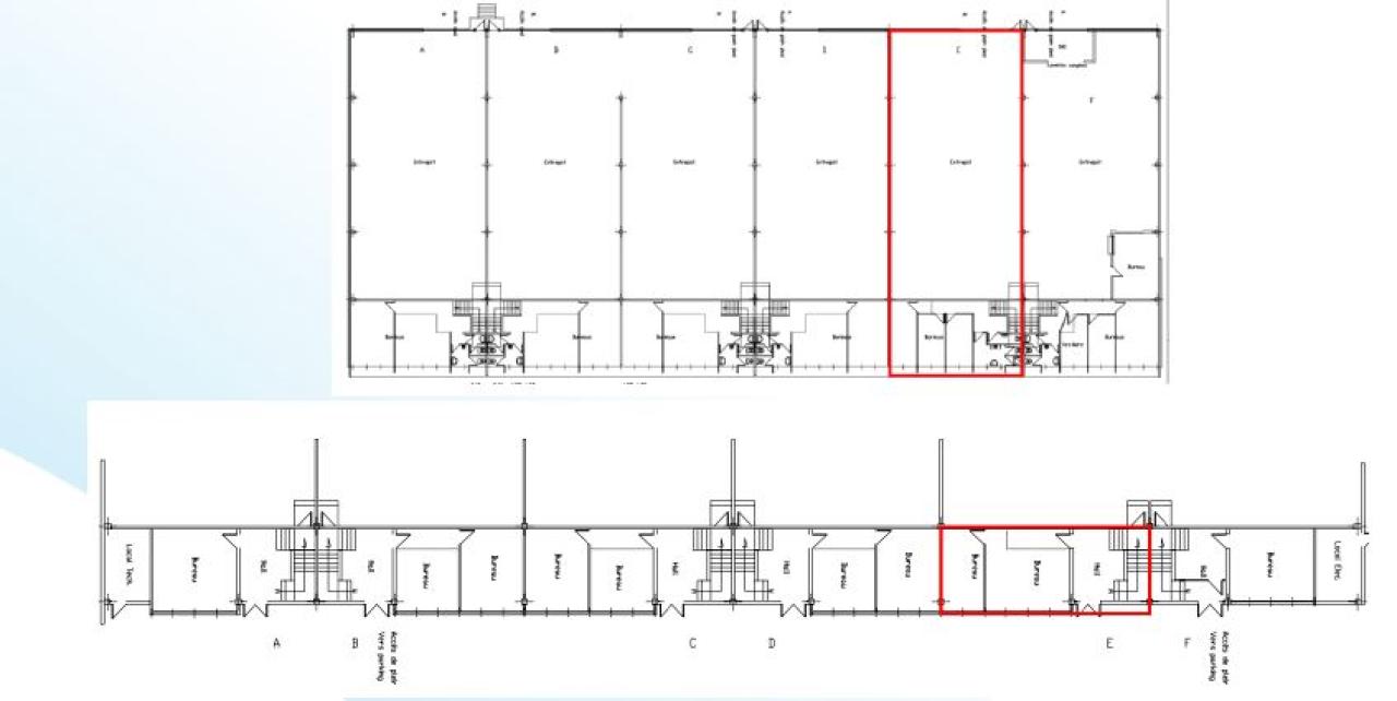
Location Entrepôt 339 m²
93600 Aulnay-sous-Bois
339 m²
100 €
HT/HC/m²/an
Disponibilité : 2 mois après accord

Ali GHOZAYEL
Description
AULNAY-SOUS-BOIS (93) - GARONOR
A LOUER / CELLULE D'ENTREPÔT
BNP PARIBAS REAL ESTATE vous propose, sur la Zone de Garonor, une surface d'activité/entreposage sur un site clos et vidéosurveillé. Le local est accessible par l'A3 et l'A1 et à proximité des aéroports LE BOURGET et ROISSY CDG. Rie et restaurants sur le site.
Les charges incluent l'assurance bailleur et les fluides PC.
Nous vous proposons, à la location, une cellule à usage d'entreposage d'une surface globale d'env. 339 m².
Emplacements de parking VL
Cette cellule est idéalement située à proximité de l'aéroport ROISSY CDG et des autoroutes A1 & A3. Elle est desservie par les transports en commun tels que le RER B, la gare SNCF "LE BLANC MESNIL" et de nombreuses lignes de bus.
Services & prestations
Hauteurs
-
Hauteur libre : 6,60 mètre(s) à 7,32 m env
-
Hauteur sous poutre : 9,00 mètre(s) environ
Normes, Certifications et Labels
-
Autorisation d'exploiter 1 : 1510
Type / Etat du bâtiment
-
Etat de l'immeuble : Etat d'usage
-
Etat des locaux : Etat d'usage
Structure du bâtiment
-
Charpente : Béton
-
Couverture : Béton
-
Murs : Bardage double peau / Béton
Equipements
-
Charge au sol Rdc : 5,00 tonne(s)/m² environ
-
Eclairage Bureaux : Luminaires encastrés
-
Eclairage intérieur : Rampes tubes fluo.
-
Faux plafond : Dal. fibres minéral.
-
Fenêtres
-
Revêtement mural : Peinture
-
Réseau Incendie Armé
-
Sols du bâtiment : Béton
-
Sprinklers : Mono couche (ESFR)
Prestations de service
-
Parking
-
Restauration : Restaurants et hôtels sur site
-
Sécurité : PC incendie 24h/24 7j/7, Site clos et video-surveillé
Aménagements
-
Sanitaires
Extérieurs
-
Aire de livraison
-
Aire de manoeuvre
Accès véhicules
-
Accessibilité type véhicules : Tous porteurs
Informations complémentaires
-
Chauffage aérothermes eau chaude, Portes : H 3,37 m x l3 m, RIE/restaurants/hôtels sur site
-
Douanes, agence travail temporaire...










