


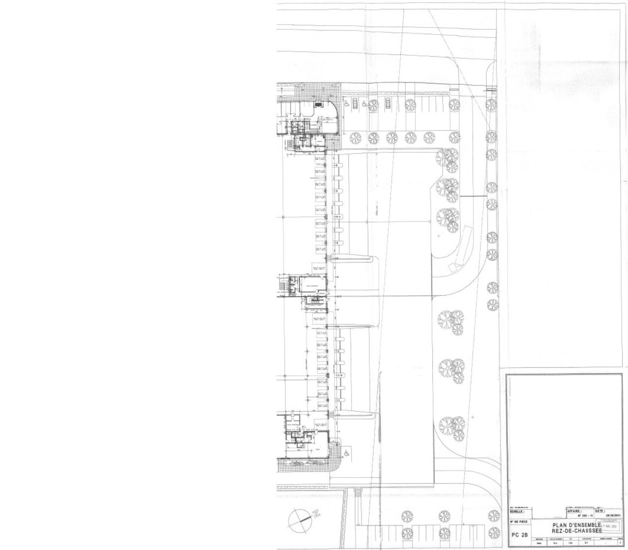
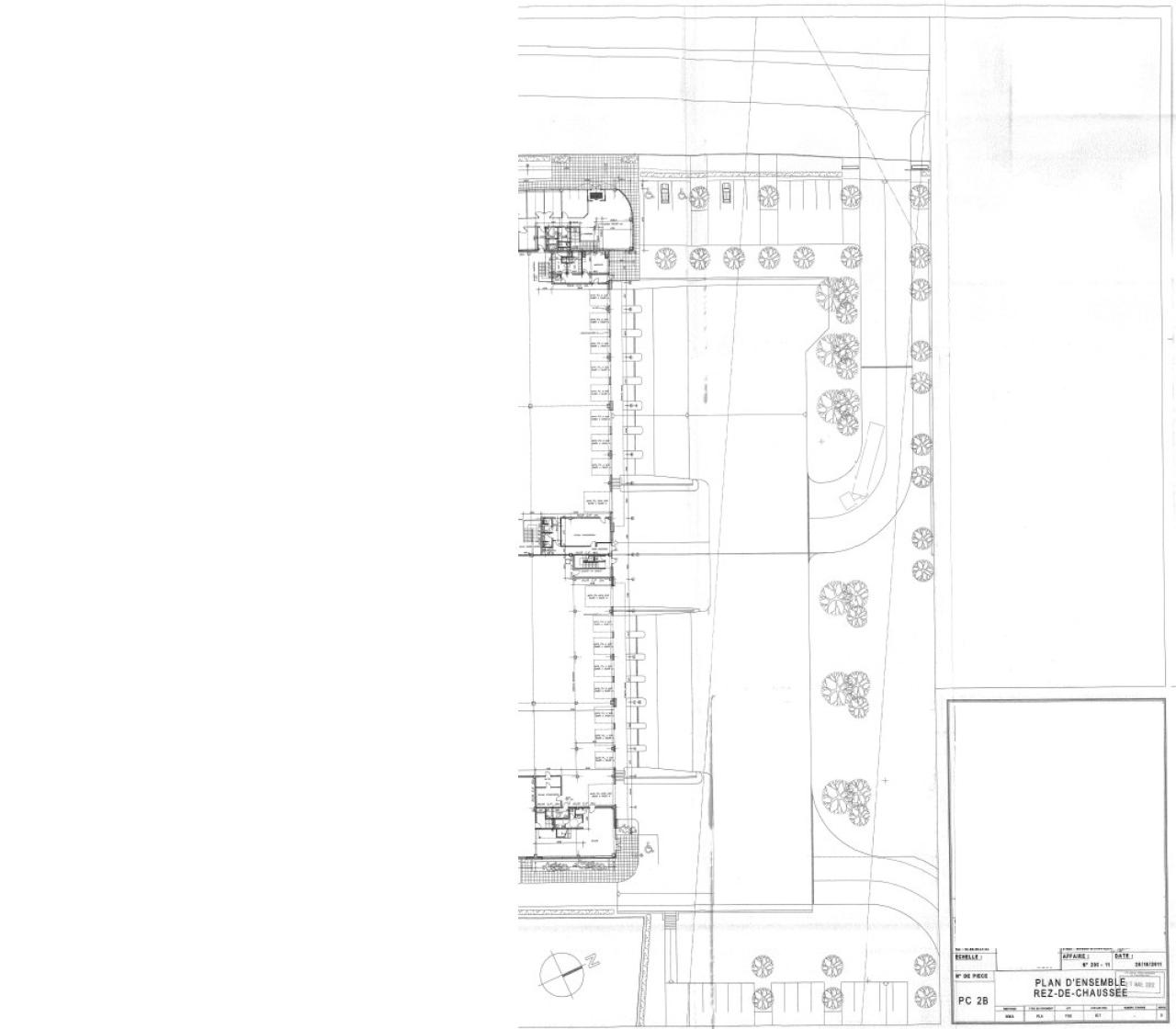
Location Entrepôt Classe B 6 690 m²
93290 Tremblay-en-France
6 690 m²
90 €
HT/HC/m²/an
Disponibilité : 01/10/2026

Sylvain BERNADET
Description
TREMBLAY-EN-FRANCE (93)
A Louer
BNP PARIBAS REAL ESTATE vous propose, à la Location, un Entrepôt Logistique Classe B d'une surface totale de 6.690 m².
Le Bâtiment est situé à Tremblay en France (93), à proximité des axes routiers A3, A104 et A1.
Disponibilité : Octobre 2026.
Services & prestations
Structure du bâtiment
-
Murs : Bardage double peau
Equipements
-
Charge au sol Rdc : 5,00 tonne(s)/m²
-
Eclairage naturel : Skydomes
-
Porte d'accès plain-pied
-
Porte d'accès à quai
Prestations de service
-
Parking : 90 Places
Extérieurs
-
Aire de manoeuvre : 35 ml
Accès véhicules
-
Accessibilité type véhicules : Tous porteurs










