




Location Local d'activité 2 455 m²
06250 Mougins
2 455 m²
129 €
HT/HC/m²/an
Disponibilité : Immédiate

Jerome BLANCHE
Description
MOUGINS LA PLAINE - BATIMENT D'ACTIVITE
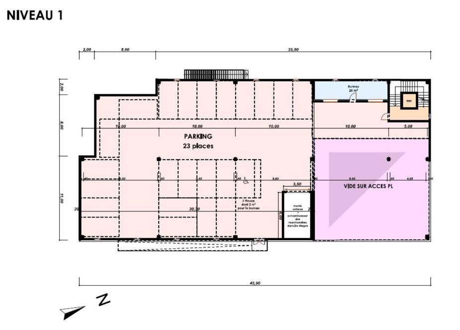
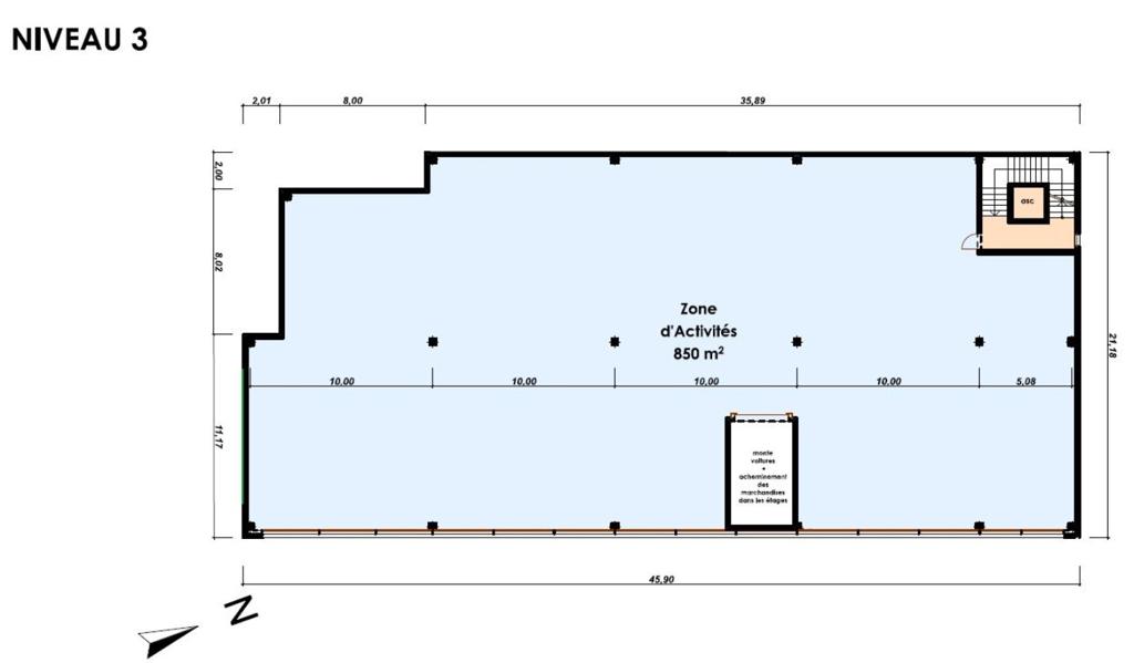
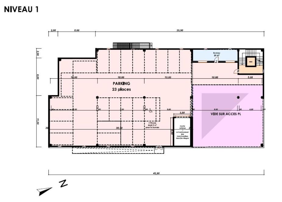
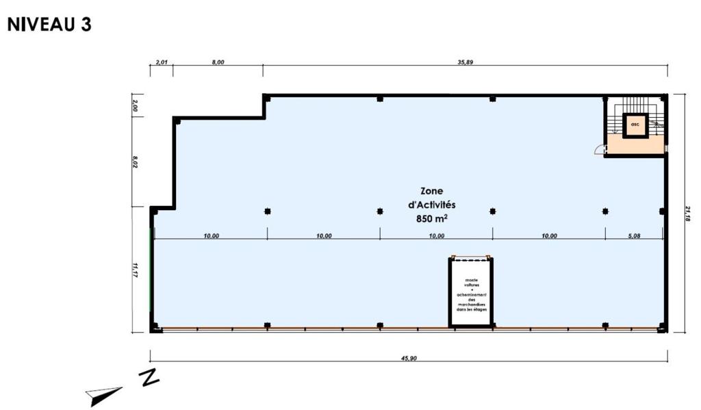
A vendre ou à louer à Mougins, bâtiment d'activité d'une surface de 2 454,9 m² non divisible réparti sur 3 niveaux. Le bâtiment est équipé de 3 quais de déchargement poids lourds, d’un monte-charge d’une capacité de 2T permettant d’accueillir des véhicules et d’un ascenseur PMR.
2315824
À LOUER - BÂTIMENT D'ACTIVITÉ - MOUGINS
Découvrez ce bâtiment d'activité situé à Mougins, proposant 2 454,9 m² non divisible réparti sur 3 niveaux. Le bâtiment est équipé de 3 quais de déchargement poids lourds, d'un monte-charge d'une capacité de 2T permettant d'accueillir des véhicules et d'un ascenseur PMR.
Bâtiment indépendant
3 portes d'accès à quai
Accès tous porteurs
Hauteur sous poutre de 2,1 m
Charge au sol RDC de 1T/m², 750kg/m² au R+2 et 650kg/m² au R+3
Monte-charge 2T
Structure béton
Toiture isolée
Sol béton finition quartz
Aire de manoeuvre
Bureaux cloisonnés
Plinthes techniques périphériques
23 places de parking en intérieur
À proximité :
Autoroute A8 à 10 min
Aéroport Nice Côte d'Azur à 30 min
Pénétrante Cannes/Grasse
Services & prestations
Hauteurs
-
Hauteur libre : 3,75 mètre(s) RDC
Accès véhicules
-
Accessibilité type véhicules : Tous porteurs
Equipements
-
Ascenseurs
-
Charge au sol Etage : 750 kg/m² R+2 et 650 kg/m² R+3, 750,00 kg/m² 750 kg/m² R+2 et 650 kg/m² R+3
-
Charge au sol Rdc : 1,00 tonne(s)/m²
-
Climatisation : Réversible
-
Eclairage intérieur : LED
-
Monte-charge : 3T
-
Plinthes techniques périphériques
-
Porte d'accès à quai : 3
-
Rampes d'accès : Piéton
-
Sol bureaux : PVC
-
Sols du bâtiment : Béton finition quartz
Structure du bâtiment
-
Charpente : Béton armé
-
Couverture : Toiture isolée
Aménagements
-
Bureaux cloisonnés
Extérieurs
-
Aire de manoeuvre










