




Location Local d'activité 810 m²
31770 Colomiers
810 m²
72 €
HT/HC/m²/an
Disponibilité : Immédiate

Benoit VAVASSORI
Description
COMMUNE DE COLOMIERS
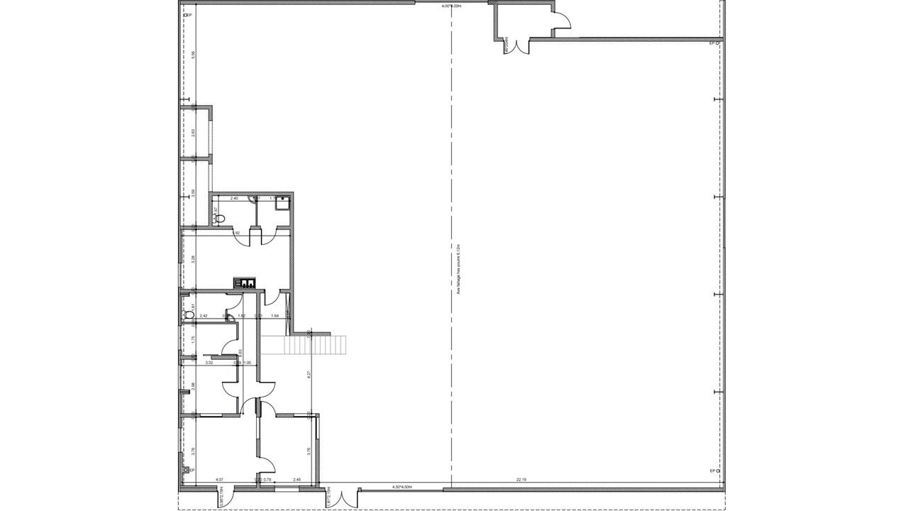
Sur la commune de Colomiers, nous vous proposons à la location un bâtiment indépendant de 810 m² environ sur un foncier de près de 1 700 m² intégralement clôturé. Disposant de bureaux et locaux sociaux (vestiaires, salle de repos, douche ..) d'une surface d'environ 110 m², l'immeuble est idéalement proportionné et bénéficie de belles prestations techniques. Possibilité de recréer 100 m² de bureaux supplémentaires en étage.
*** TOULOUSE OUEST - Commune de Colomiers ***
Dans la zone industrielle ZI en JACCA à Colomiers, venez découvrir ce bâtiment indépendant de 810 m² environ dont 110 m² de bureaux et locaux sociaux (salle de repos, vestiaires, douches, WC, ...).
L'entrepôt d'environ 700 m² est accessible par 2 rideaux métalliques (un sur la devanture, l'autre sur l'arrière) aux dimensions de 5 mètres x 5 mètres et bénéficie d'une hauteur libre de 5,50 mètres à 6,50 mètres.
Isolé en bardage double peau, le bâtiment dispose d'une belle luminosité avec la présence de nombreux translucides en toiture et de nombreuses fenêtres en périphérie des murs.
L'immeuble profite d'une puissance électrique importante (Tarif Jaune > 36 Kva), d'un réseau d'air comprimé et d'un raccordement au gaz de ville.
Le local dispose de 4 bureaux en bon état, d'une salle de repos et de sanitaires / vestiaires avec douche. Possibilité de créer 100 m² de bureaux supplémentaires en mezzanine.
L'extérieur peut être utilisé en stockage complémentaire ou parkings. Une aire de lavage est présente à l'arrière du site (avec séparateur hydrocarbures).
Vous souhaitez visiter ce bâtiment disponible à la location ou avoir de plus amples informations ?
Contactez-nous au 05 61 23 56 56 !
Plus d'offres sur : www.bnppre.fr/Toulouse
Services & prestations
Hauteurs
-
Hauteur libre : 5,50 mètre(s) 6,50
Accès véhicules
-
Accessibilité type véhicules : Tous porteurs
Equipements
-
Douche : 1
-
Eclairage naturel : Translucide
-
Porte d'accès à quai : 2 rideaux métalliques (5m x 5m)
-
Puissance électrique : Tarif Jaune
-
Sol bureaux : Carrelage
-
Sols du bâtiment : Béton
Type / Etat du bâtiment
-
Etat de l'immeuble : Etat d'usage
-
Etat des locaux : Etat d'usage
-
Immeuble indépendant
Structure du bâtiment
-
Charpente : Métallique
-
Couverture : Bac acier isolé
-
Murs : Bardage double peau
Prestations de service
-
Parking : 10 Places
Aménagements
-
Bureaux cloisonnés : 4
-
Mezzanine
-
Sanitaires : 2 dont 1 PMR
Extérieurs
-
Aire de stockage extérieure
Informations complémentaires
-
Aire de lavage extérieure, Salle de repos avec kitchenette et douche
-
Aérothermes au gaz










