




Location Local d'activité 578 m²
92230 Gennevilliers
578 m²
180 €
HT/HC/m²/an
Disponibilité : Immédiate

Francois FOURNIER
Description
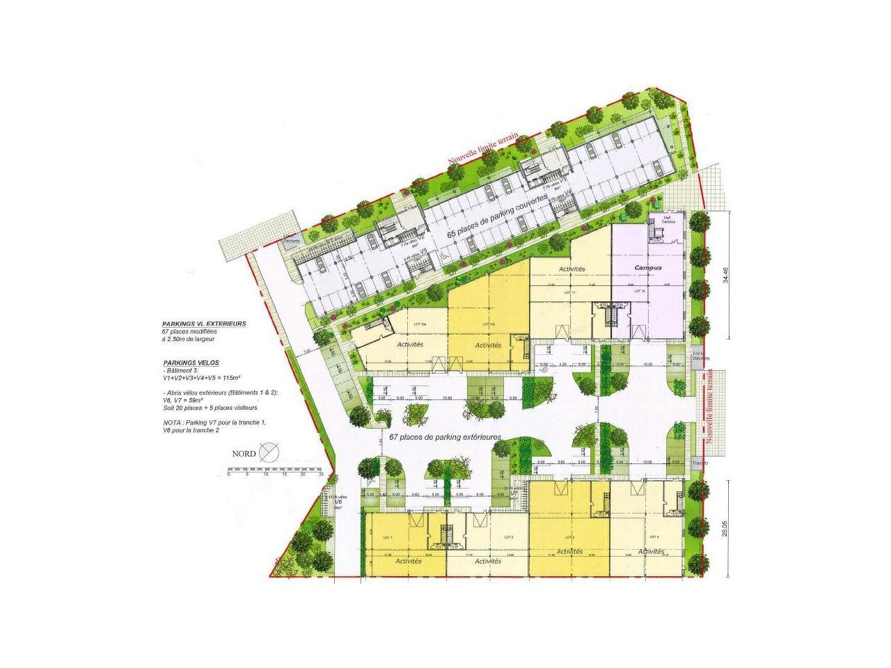
Gennevilliers - Parc d'activité neuf
BNP PARIBAS Real Estate vous propose dans un parc d'activité neuf, des cellules d'activités et de bureaux. Bénéficiant de belles prestations à proximité immédiate immédiate du RER C, de l'A86 et des Quais de Seine.
Les surfaces proposées sont modulables en fonction de vos besoins, entre 300 et 1500 m². L'accessibilité aux axes majeurs et la proximité à Paris en font des atouts majeurs.
Services & prestations
Hauteurs
-
Hauteur sous poutre : 7,50 mètre(s)
Accès véhicules
-
Accessibilité type véhicules : Tous porteurs - Voirie lourde
Equipements
-
Eclairage intérieur : LED
-
Porte d'accès plain-pied : 1 3m L x 3.5m H
-
Puissance électrique : Tarif Jaune
-
Sols du bâtiment : Béton
Type / Etat du bâtiment
-
Etat de l'immeuble : Neuf
-
Etat du terrain : Voirie lourde - Bétonné
-
Immeuble indépendant
Structure du bâtiment
-
Charpente : Métallique
-
Couverture : Bac acier isolé
-
Murs : Bardage double peau
Prestations de service
-
Sécurité : Contrôle d'accès
Aménagements
-
Accès Pers. Mobilité Réduite : WC
-
Locaux sociaux : Douches/Vestiaires + Sanitaires
Extérieurs
-
Aire de manoeuvre
-
Eclairage extérieur : LED
Informations complémentaires
-
Chauffage : Gaz, Toitures végétalisées










