




Location Local d'activité 850 m²
35770 Vern-sur-Seiche
850 m²
65 €
HT/HC/m²/an
Disponibilité : Immédiate

Delphine BARON
Description
VERN-SUR-SEICHE - ZA de la Hallerais
BNP PARIBAS REAL ESTATE vous propose ce bâtiment d'activité indépendant, situé sur la commune de Vern-s/-Seiche, dans la zone de la Hallerais.
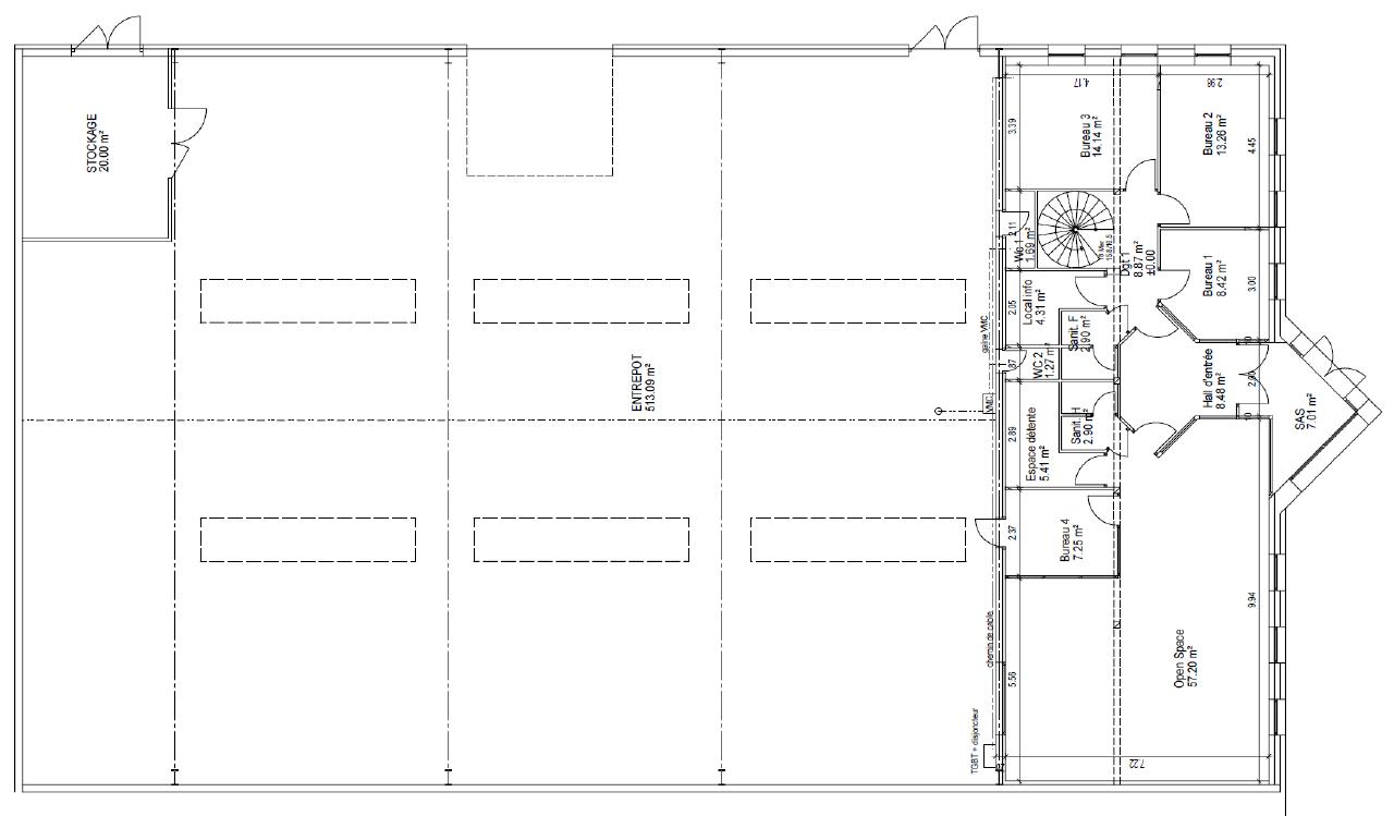
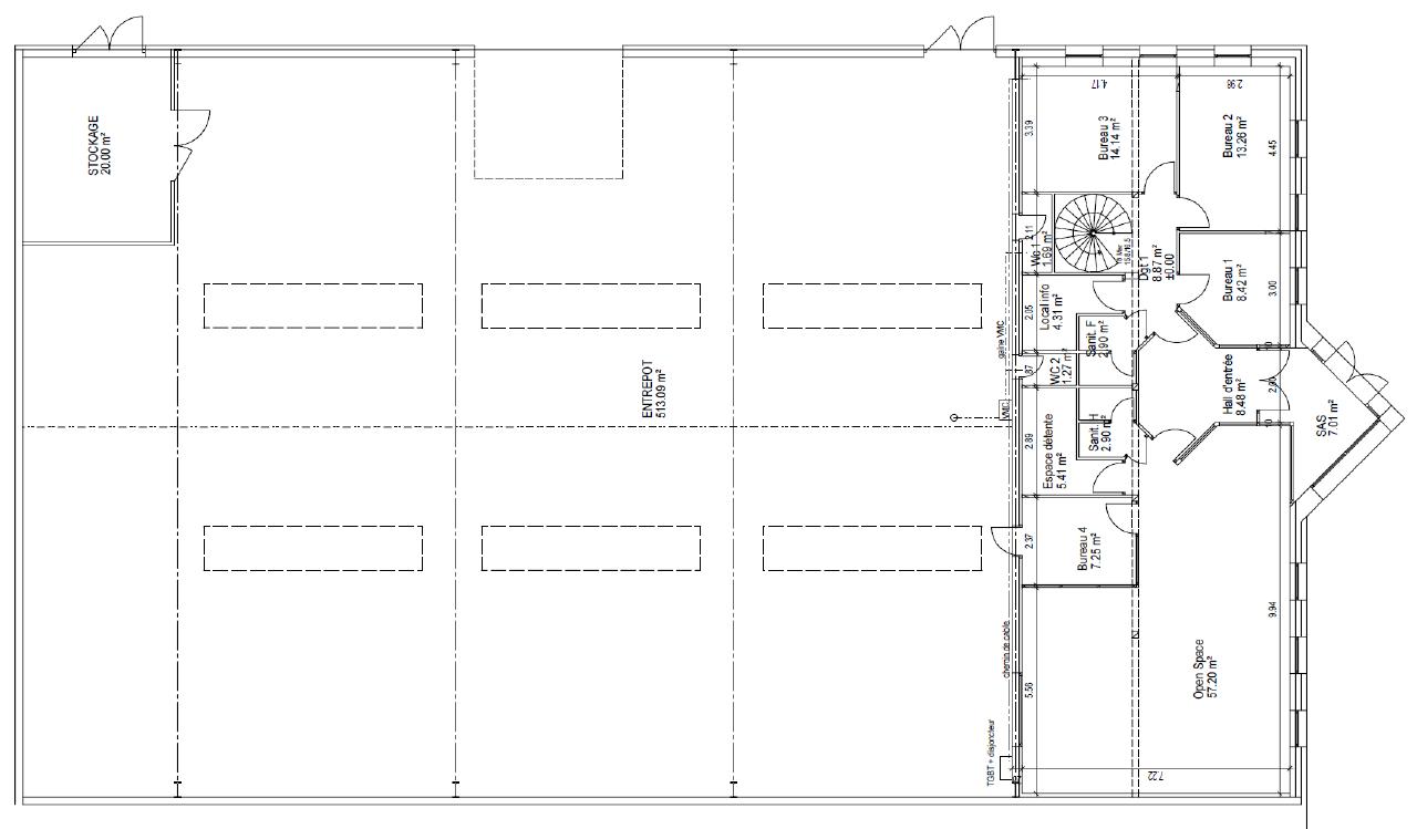
Devenez locataire de ce actif d'environ 850 m² sur un foncier totalement indépendant de 1.500 m².
Ce local d'activités est composé de 300 m² de bureaux répartis sur deux niveaux, et 550 m² de stockage accessible par une porte sectionnelle de plain-pied.
Les 19 places de parking sont un avantage, car autant de places privatives se font rares sur notre marché !!
Si vous souhaitez louer ce bâtiment indépendant, n'hésitez pas à nous contacter pour programmer une visite.
Services & prestations
Hauteurs
-
Hauteur libre : 5,50 mètre(s) au faitage
-
Hauteur sous porte plain-pied : 4,00 mètre(s) x 3,70 mètres de Largeur
-
Hauteur sous poutre : 4,00 mètre(s) sous sablière
Accès véhicules
-
Accessibilité type véhicules : Tous porteurs
Equipements
-
Câblage informatique
-
Eclairage Bureaux : Luminaires encastrés
-
Eclairage intérieur : Rampes tubes fluo.
-
Eclairage naturel : Skydomes
-
Faux plafond : Dal. fibres minéral.
-
Plinthes techniques périphériques
-
Porte d'accès plain-pied : 1
-
Puissance électrique : Tarif Bleu
-
Sol bureaux : Dls.thermoplastiques / Moquette
-
Sols du bâtiment : Béton
Type / Etat du bâtiment
-
Etat de l'immeuble : Seconde main
-
Etat du terrain : Voirie lourde
-
Immeuble indépendant
Structure du bâtiment
-
Charpente : Métallique
-
Couverture : Bac acier non isolé
-
Murs : Bardage double peau
Aménagements
-
Accueil
-
Aménagement des bureaux : Cloisonnés/Ouverts
-
Bureaux cloisonnés
-
Hall d'accueil
-
Locaux sociaux
-
Sanitaires
Extérieurs
-
Aire de manoeuvre
-
Aire de stockage extérieure










