




Location Local d'activité 400 m²
38540 Grenay
400 m²
96 €
HT/HC/m²/an
Disponibilité : 01/09/2026

Louis-Martin TANTARO
Description
Grenay (38)
Locaux d'activité à louer sur Grenay (38).
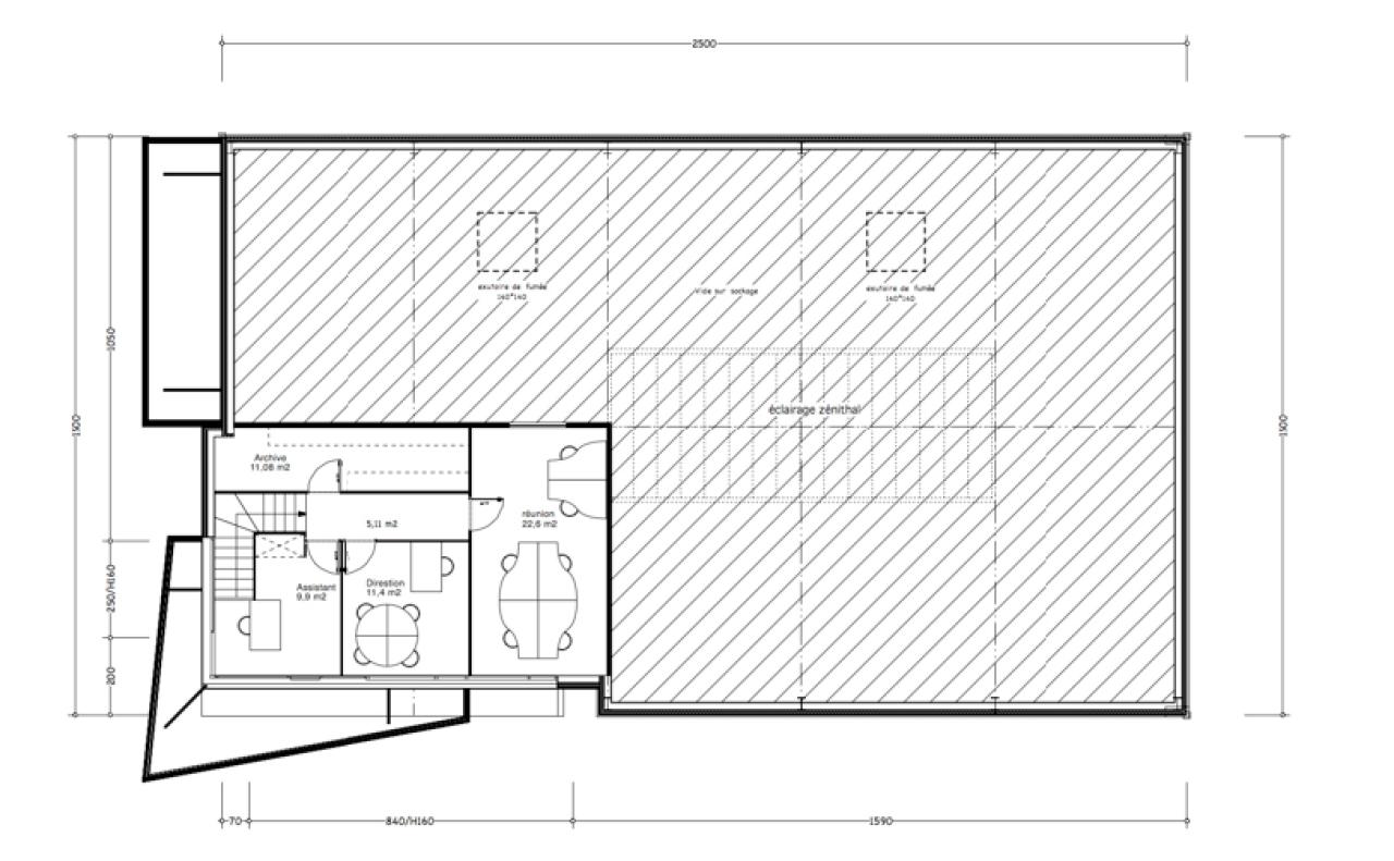
BNP PRE vous propose à la location sur la commune de Grenay un local d'activité indépendant de 4 000 m² sur un foncier de 1 400 m². Le site en excellent état se compose d'une surface de 250 m² d'entrepôt avec une porte sectionnelle de 4 m de hauteur, de 150 m² de bureaux sur deux niveaux.
Son emplacement stratégique à proximité de l'aéroport et sa possibilité de stockage extérieur font de cet actif un outil parfait pour développer son activité.
Services & prestations
Hauteurs
-
Hauteur libre : 6,50 mètre(s)
-
Hauteur sous porte plain-pied : 4,00 mètre(s)
Accès véhicules
-
Accessibilité type véhicules : Camionnettes, Moyens porteurs
Equipements
-
Climatisation : Réversible
-
Câblage informatique
-
Eclairage Bureaux : Luminaires encastrés
-
Eclairage intérieur : Néon
-
Eclairage naturel : Zénithal
-
Faux plafond : Dal. fibres minéral.
-
Fenêtres
-
Plinthes techniques périphériques
-
Puissance électrique : Tarif Bleu
-
Sol bureaux : Carrelage
-
Source chauffage : Electrique Gaz
-
Type de chauffage : Individuel
Type / Etat du bâtiment
-
Etat de l'immeuble : Seconde main
-
Etat du terrain : Goudronné Terre végétale
-
Immeuble indépendant
Structure du bâtiment
-
Charpente : Métallique
-
Couverture : Bac acier isolé
-
Murs : Bardage double peau
Aménagements
-
Aménagement des bureaux : Cloisonnés
-
Bureaux cloisonnés : 6
-
Locaux sociaux : Sanitaires
-
Sanitaires
Extérieurs
-
Aire de stockage extérieure : 500 m²
-
Eclairage extérieur : LED
Informations complémentaires
-
Portail électrique, Terrain : 1 400 m²










