




40 Rue de Malacombe
38070 Saint-Quentin-Fallavier
5 245 m²
Divisible dès 2 573 m²
à partir de 90 €
HT/HC/m²/an
Disponibilité : 12 mois après accord

Florent VAUVERT
Description
SAINT-QUENTIN-FALLAVIER (38)
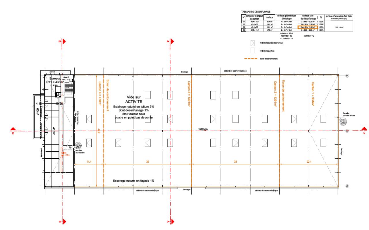
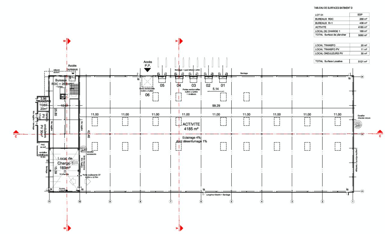
BNP PRE vous propose à la location un bâtiment d'activité de 5 245 m² dont 500 m² de bureaux et 100 m² de local technique. L'actif comprend 4 portes à quai, 1 accès de plain-pied, hauteur libre de stockage de 8 m minimum et 66 places extérieures. Situé à Saint-Quentin-Fallavier, le bien sera disponible 12 mois après accord.
Le bâtiment est situé dans un secteur d'activités de Saint-Quentin-Fallavier, au sein d'une zone largement orientée vers la logistique et les opérations industrielles légères. L'environnement est structuré autour d'infrastructures adaptées aux entreprises ayant besoin de déplacements réguliers de marchandises, avec des voiries pensées pour accueillir différents types de véhicules professionnels.
Le site s'inscrit dans un ensemble où sont implantés de nombreux opérateurs du transport, de l'entreposage et de la distribution. Cette concentration d'activités crée un contexte cohérent pour les entreprises fonctionnant avec des flux matériels ou nécessitant des échanges fréquents avec d'autres acteurs du secteur.
La zone bénéficie également d'une organisation qui facilite la circulation et l'accès aux bâtiments : carrefours élargis, zones de retournement et proximité directe des grands axes permettant de rationaliser les itinéraires.
L'emplacement présente l'avantage d'être relié rapidement aux autoroutes A43 et A46, axes principaux du nord-isère et de l'est lyonnais afin de rejoindre les pôles régionaux, notamment Lyon, Bourgoin-Jallieu et l'aéroport de Lyon Saint-Exupéry.
Services & prestations
Hauteurs
-
Hauteur libre : 8,00 mètre(s) minimum de stockage
Equipements
-
Charge au sol Rdc : 3,50 tonne(s)/m²
-
Climatisation : Air rafraîchi
-
Eclairage intérieur : LED
-
Equipements : Autodocks isolés, portes sectionnelles, sas d’étanchéité à lèvres rétractables, butoirs, guide-roues
-
Porte d'accès plain-pied : 1
-
Porte d'accès à quai : 4 (hauteur 1,15m)
Prestations de service
-
Parking : 66 Places extérieures VL, clôturé, avec accès aux bureaux
-
Sécurité : Site clôturé, portail motorisé, barrières levantes, espaces verts
Informations complémentaires
-
Zones de quais sur 18m de profondeur en dalle béton
-
Cloisonnement intérieur des locaux sanitaires / vestiaires inclus, Pente et contre-pente zones de quais de déchargement/chargement
-
Cour de livraison de 30 m de profondeur










