




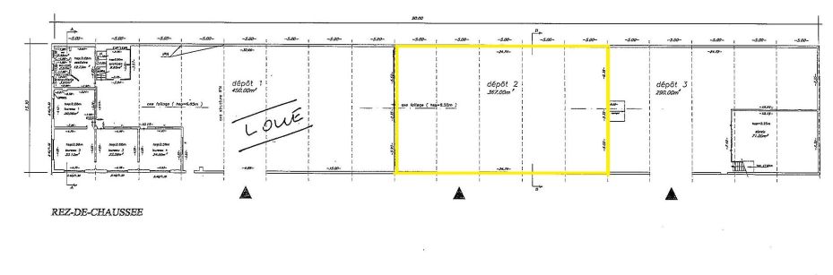
Location Local d'activité 365 m²
57070 Metz
365 m²
63 €
HT/HC/m²/an
Disponibilité : Immédiate

Gauthier DENOYELLE
Description
METZ ACTIPOLE (OLACT 25 34 994)
BNPPRE ADVISORY vous propose au cœur de l'Actipôle, un dépôt de 365 m² à la location.
Accès facile avec places de parking.
METZ ACTIPOLE - 365 M² DE DEPOT ET LOCAUX SOCIAUX - A LOUER
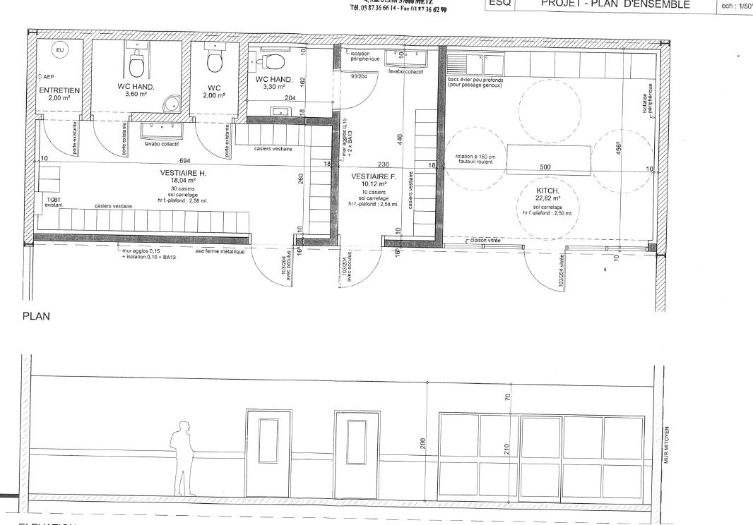
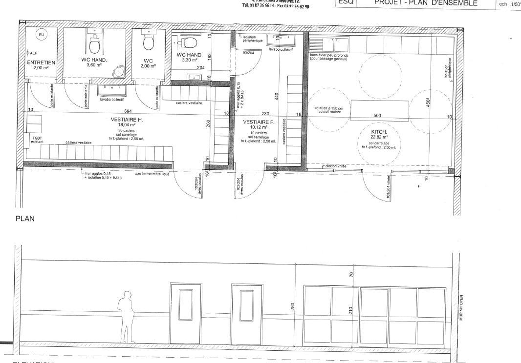
Nous vous proposons de locaux composé de 305 m² de locaux d'activité et 60 m² de bureaux et locaux sociaux pour un loyer annuel HT de 23 000 .
Caractéristiques
- 2 vestiaires
- 3 sanitaires
- Une porte sectionnelle
- Un bureau
- Parking
La zone d'activités de Metz Actipôle est située à l'Est de la ville, en bordure de la rocade Sud.
Cette zone est voisine à celle du Sébastopol et se situe à proximité immédiate du Technopôle. Elle est reliée par les principaux axes autoroutiers A31 et A4 et est desservie par le réseau de bus Le Met' (Mettis A et bus C12, 14 et 17).
Desserte
- Gare Metz ville : environ 15 min
- Centre-ville : environ 15 min
Services et enseignes à proximité
- Restauration : McDonald's, KFC, Subway, Burger King, boulangerie Ange, Paul, Del Arte, Courtepaille
- Commerces : Carrefour, Lidl, Grand Frais, Brico Dépôt
- Services : crèche People & Baby, Golf du Technopôle
- Entreprises : Soprema Entreprises, Eiffage Energie Systèmes, Derrey Bois, Storage 24, Bernard Trucks
Services & prestations
Equipements
-
Eclairage intérieur : Néon
-
Plinthes techniques périphériques
-
Porte d'accès plain-pied : 1
-
Sol bureaux : Dls.thermoplastiques
-
Sols du bâtiment : Béton
-
Type de chauffage : Gaz
Structure du bâtiment
-
Charpente : Métallique
-
Couverture : Fibrociment + shedisol
-
Murs : Parpaings
Aménagements
-
Aménagement des bureaux : Espaces Ouverts
-
Locaux sociaux : Vestiaires
-
Sanitaires : 3 dont un PMR










