




Location Local d'activité 2 428 m²
59810 Lesquin
2 428 m²
Divisible dès 321 m²
Loyer sur demande
Disponibilité : 01/03/2026

Axel PLOUY
Description
FRETIN / LESQUIN / CRT
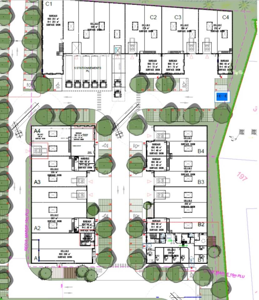
Découvrez ce programme d'activités à louer proposé par notre équipe BNP PARIBAS REAL ESTATE Lille. Cellules de stockage allant de 321 à 676 m².
Ce projet, situé sur la commune de Fretin, à la lisière de la commune de Péronne-en-Mélantois offrira une visibilité d'entrée de ville.
Le projet, implanté sur une ancienne fiche industrielle, d'une surface de 13 151 m² offre une belle opportunité économique de par sa situation géographique grâce à sa proximité au dynamisme important local et métropolitain. :
à proximité immédiate du CRT de Lesquin et des accès routiers et autoroutiers (A1, A23, A22, voie rapide urbaine, ...)
Gare TER de Fretin à 10 min à pied, permettant de rejoindre le centre ville de Lille en moins de 15 min
Une ligne de bus reliant Fretin à la station de métro "4 Cantons - Stade".
L'aéroport Lille-Lesquin à 7 min en voiture.
Le projet s'organise autour de 3 bâtiments proposant au sud des commerces et des activités tertiaires formant une façade urbaine d'entrée de ville visible depuis la rue .
Le reste de la programmation (Activité / Bureaux) est située en second rang privilégiant la fonctionnalité d'accès par la voie principale créée.
91 places de stationnement dont 14 PMR pour l'ensemble du programme
Cellules allant de 319 à 639 m² env. Regroupement possible des cellules
Cellules Brut de béton - Fluides en attente
Certification BREEAM
Cellules disponibles à la vente et à la location.
Pour visiter ou connaître nos autres offres à proximité. Contactez votre consultant BNPPARIBAS REAL ESTATE.
À la recherche de locaux ou d'entrepôts à louer ou à vendre dans la métropole lilloise / Lille ? Découvrez nos offres de location et de vente dans les parcs d'activités et zones d'activité du Nord Pas de Calais. Que ce soit pour des cellules de stockage, hangar, industrie, du foncier ou des projets clé en main, nos surfaces sont disponibles pour répondre à vos besoins.
Services & prestations
Equipements
-
Eclairage intérieur : LED
-
Porte d'accès plain-pied
-
Sols du bâtiment : Béton
Structure du bâtiment
-
Charpente : Béton
Prestations de service
-
Parking
Aménagements
-
Locaux sociaux : Sanitaires
-
Mezzanine
Extérieurs
-
Aire de manoeuvre
Normes, Certifications et Labels
-
Certification : BREEAM
Informations complémentaires
-
Toitures végétalisées










