




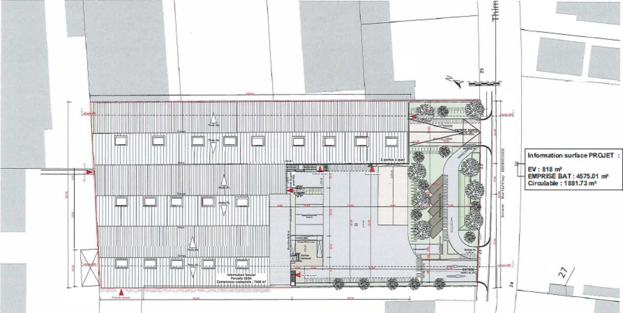
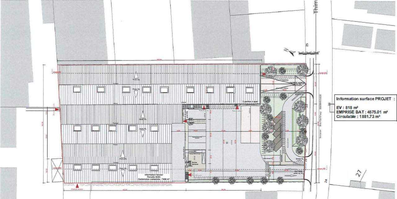
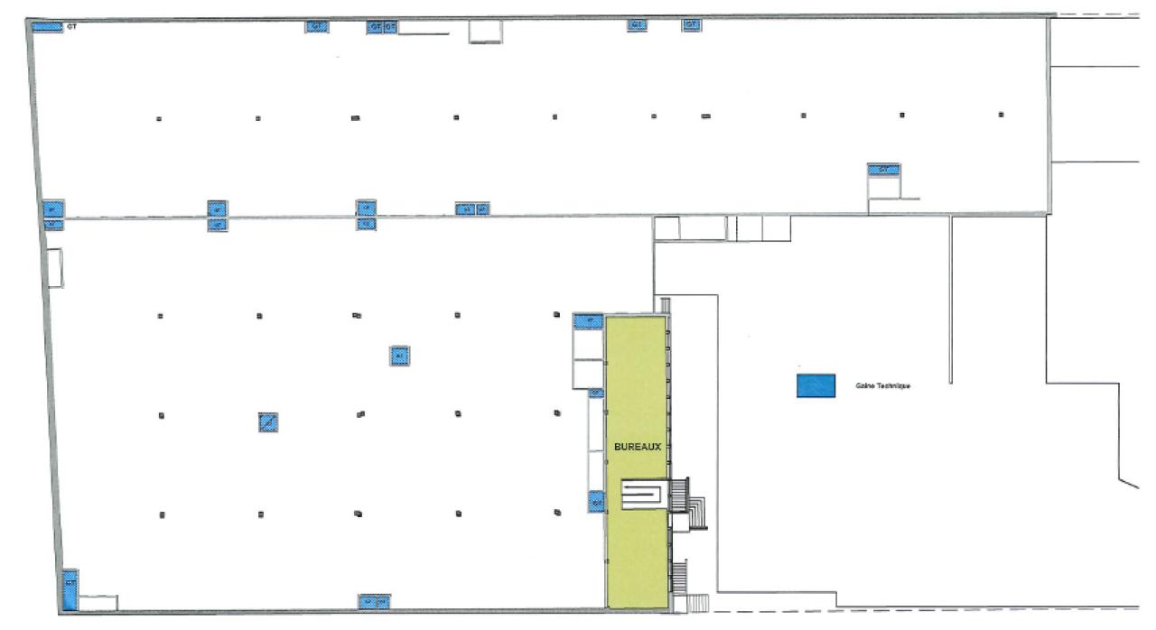
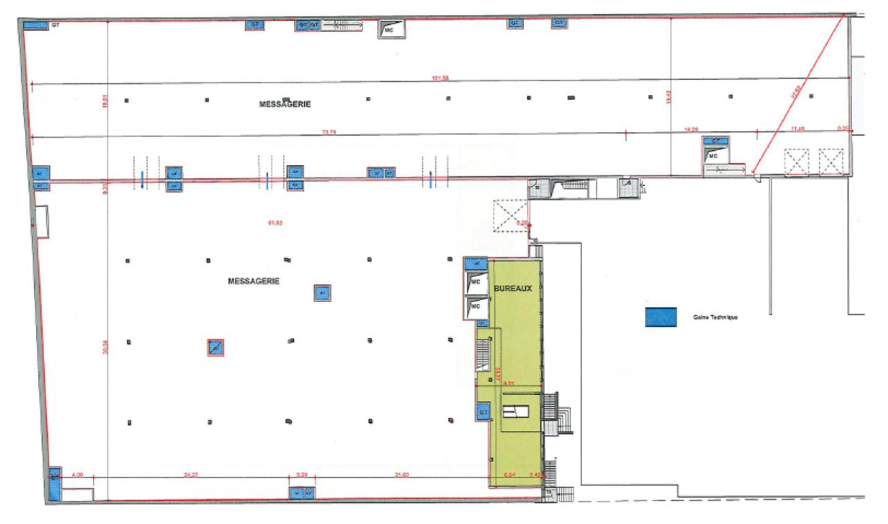
Location Local d'activité 8 497 m²
69300 Caluire-et-Cuire
8 497 m²
120 €
HT/HC/m²/an
Disponibilité : 01/02/2026

Julien LACOSTE
Description
Caluire-et-Cuire (69)
BNP Paribas Real Estate vous propose à la location un bâtiment d'activité indépendant entièrement rénové dans une zone d'activité de Caluire-et-Cuire. Disponible à partir de février 2026.
Le bâtiment se situe dans un secteur urbanisé de Caluire-et-Cuire, à proximité immédiate des limites nord de Lyon. L'environnement est marqué par une organisation urbaine dense, où s'alternent immeubles d'activités, équipements publics et zones résidentielles. Ce positionnement lui confère une intégration dans un quartier où les déplacements restent fluides grâce à des axes structurants qui traversent la commune.
Le périmètre est caractérisé par un tissu tertiaire important, composé de petites structures de services, de professions techniques et d'activités liées au fonctionnement de la métropole.
La configuration du secteur permet une circulation aisée avec des itinéraires directs vers les voies principales. Les liaisons internes donnent accès aux grandes infrastructures routières du nord lyonnais, facilitant les déplacements vers les différents pôles économiques de l'agglomération.
La proximité des transports en commun constitue un élément structurant de cette localisation. Plusieurs lignes de bus et connexions vers le métro lyonnais permettent d'intégrer le site au réseau métropolitain, ce qui contribue à rendre les déplacements réguliers plus prévisibles et fonctionnels.
Services & prestations
Hauteurs
-
Hauteur libre : 2,95 mètre(s) en sous-sol
-
Hauteur sous-plafond : 2,20 mètre(s)
Equipements
-
Charge au sol Rdc : 1,00 tonne(s)/m²
-
Eclairage Bureaux : Luminaires encastrés
-
Eclairage intérieur : LED sous-sol et activité au RDC
-
Faux plafond : Dal. fibres minéral.
-
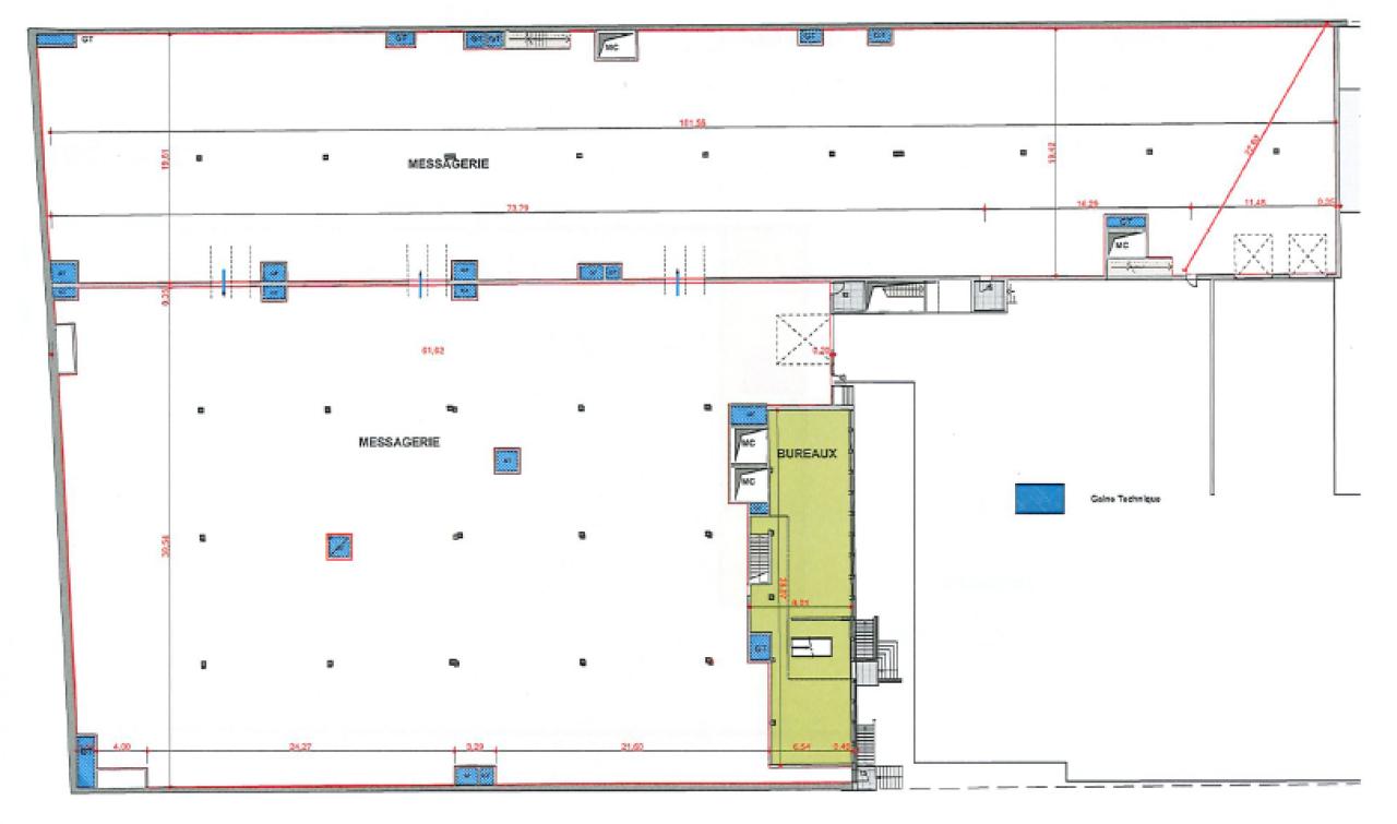
Porte d'accès plain-pied : 2 dont une sectionnelle motorisée de 3 x 3,5 m
-
Porte d'accès à quai : 2 compatible PL de 2,75 x 3 m et mise en œuvre de mini niveleurs de capacité dynamique de 6T
-
Puissance électrique : Tarif Jaune 532,00
-
Sols du bâtiment : Béton
-
Type de chauffage : Urbain
-
Zone de béquillage
Type / Etat du bâtiment
-
Etat de l'immeuble : Restructuré avec PC
-
Etat des locaux : Neuf
-
Etat du terrain : Voirie lourde
-
Immeuble indépendant
Structure du bâtiment
-
Couverture : Bac acier isolé
-
Murs : Bardage double peau
Prestations de service
-
Parking : En matériau permettant l'infiltration des eaux de pluie
Aménagements
-
Accès Pers. Mobilité Réduite
-
Sanitaires
Normes, Certifications et Labels
-
Certification : BREEAM
Informations complémentaires
-
Charge au sol sous-sol : 2T/m², Chauffage et climatisation par un système électrique réversible type VRF, Chauffage hors gel zone activité RDC et sous-sol par aérothermes électrique ou à eau chaude, Création d'une rampe d'accès a sous-sol, Kitchenette, Portes coulissantes CF du sas en sous-sol, Production eau chaude sanitaire par chauffe-eaux électriques, Site clôturé, portails coulissants et barrières levantes, Ventilation mécanique double flux










