




Location Local d'activité 329 m²
69730 Genay
329 m²
120 €
HT/HC/m²/an
Disponibilité : Immédiate

Bory THONGDENG
Description
SOL@R PARK
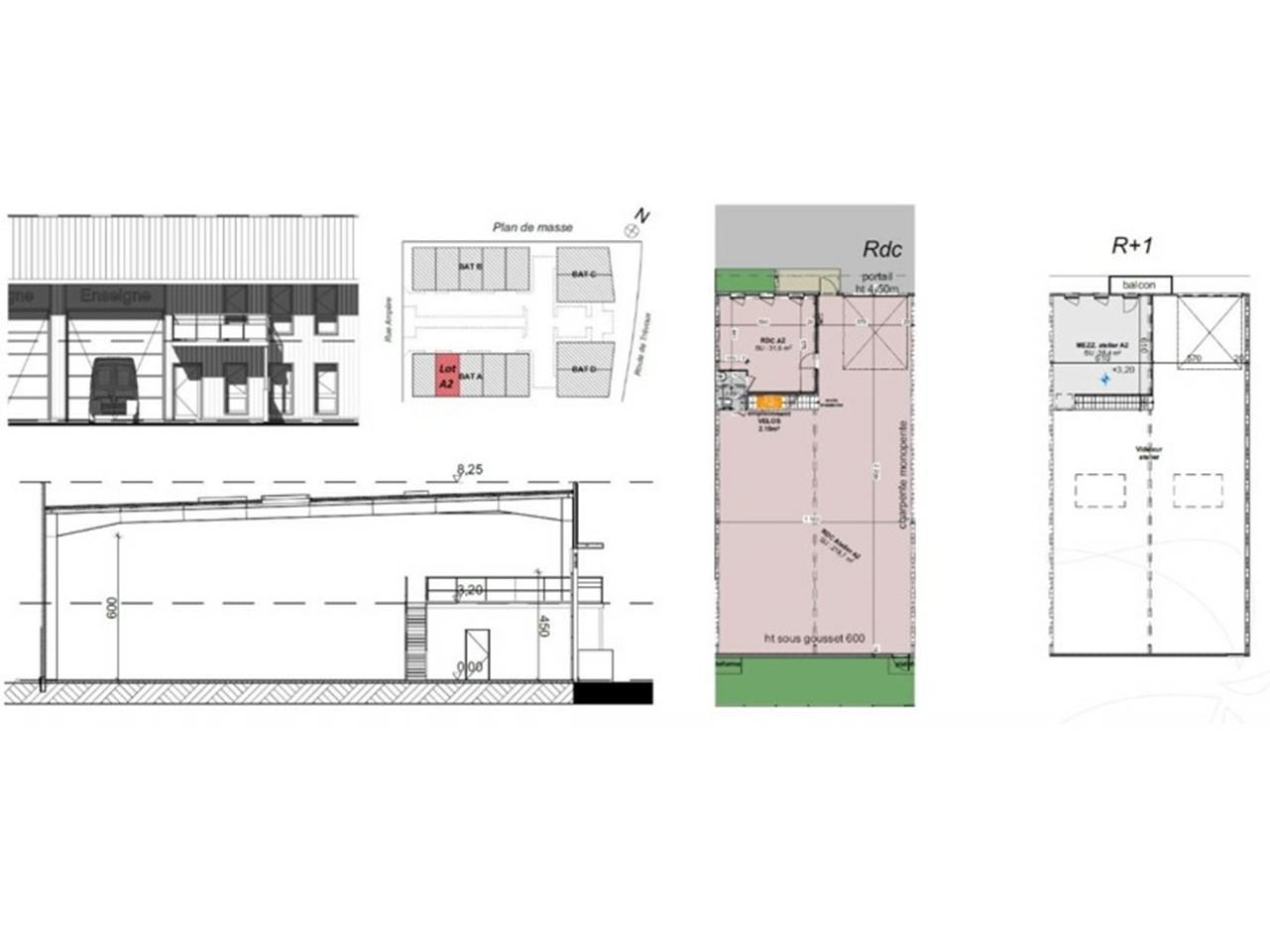
GENAY (69)
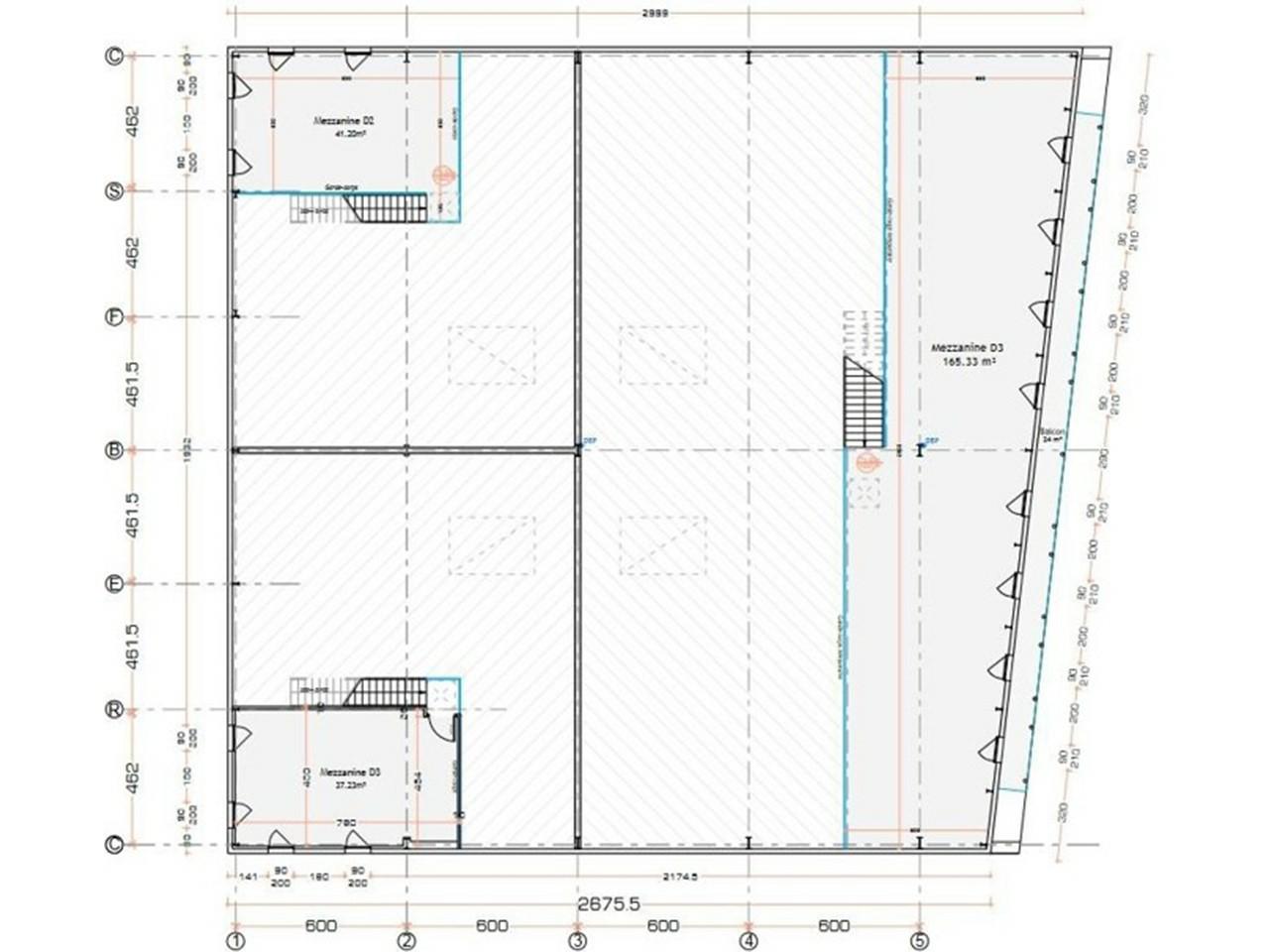
Reste à la location 1 lot d'activités d'environ 328,50 m² sur la commune de Genay dans le nord de Lyon avec un bel espace show-room visible depuis la rue.
Il s'agit d'un ensemble neuf avec de belles prestations possédant beaucoup de places de stationnement.
Situé à 15 km de Lyon par les quais de Saône, et à proximité des autoroutes A46/ A466/ A6/ A432, nous vous proposons à la location 2 cellules d'activité composées d'une partie activité avec 6 mètres de hauteur, une mezzanine et une surface de bureaux.
Le site dispose d'une localisation exceptionnelle et bénéficie d'une visibilité sur la route de Trévoux (axe commercial reliant La Rocade Est à Neuville-sur-Saône).
Locaux situés au sein de la Métropole de Lyon, au cœur du Val-de-Saône.
Locaux bénéficiant de balcons,
Eclairage de toiture sur la partie activité,
Bardage intérieur laqué en blanc pour plus de clarté,
Mezzanines équipées de fenêtres.
Cette parcelle de 10 000 m² était jusqu'à présent occupé par la société ENEDIS, gestionnaire du réseau de distribution d'électricité.
Le Sol@r Parc accueillera une centrale photovoltaïque qui produira 300 000 kWh/an pendant 25 ans, soit la consommation de 110 foyers de 4 personnes.
Le Sol@r Park répond pleinement aux enjeux actuels de l’immobilier durable et responsable. La preuve qu’il est possible de concevoir un parc d’activité dans le respect des exigences environnementales. L’intégration architecturale et le confort des occupants sont également des axes centraux du projet.
Services & prestations
Hauteurs
-
Hauteur sous poutre : 6,00 mètre(s) max
Equipements
-
Charge au sol Rdc : 1,50 tonne(s)/m²
-
Climatisation : Réversible
-
Eclairage intérieur : LED dans l'atelier
-
Eclairage naturel : Zénithal
-
Faux plafond
-
Porte d'accès plain-pied : Sectionnelle électrique 3 x 3,5 m
-
Puissance électrique : Tarif Bleu 36,00 KWA
-
Sol bureaux : Carrelage en RDC / Sol souple en étage. Cloisons périphériques type placo peintes
-
Sols du bâtiment : Béton finition quartz teinté
Type / Etat du bâtiment
-
Etat de l'immeuble : Neuf
-
Etat des locaux : Neuf
Structure du bâtiment
-
Charpente : Métallique
-
Couverture : Bac acier isolé
-
Murs : Bardage double peau et murs séparatifs de lot en moellons
Prestations de service
-
Parking : Places de parking privatives
-
Sécurité : Désenfumage
Aménagements
-
Mezzanine : Surcharge de 500 kg/m²
-
Sanitaires : 1 bloc sanitaire PMR équipé
Informations complémentaires
-
2 portails électriques, actionnables à distance par téléphone, Plinthes électriques périphériques, Portes piétons
-
Conforme RT 2012
-
Dalles LED, Escalier et garde corps, VMC










