




Location Local d'activité 4 302 m²
69390 Millery
4 302 m²
Divisible dès 274 m²
à partir de 95 €
HT/HC/m²/an
Disponibilité : 01/12/2026

Amin BOUTCHAR
Description
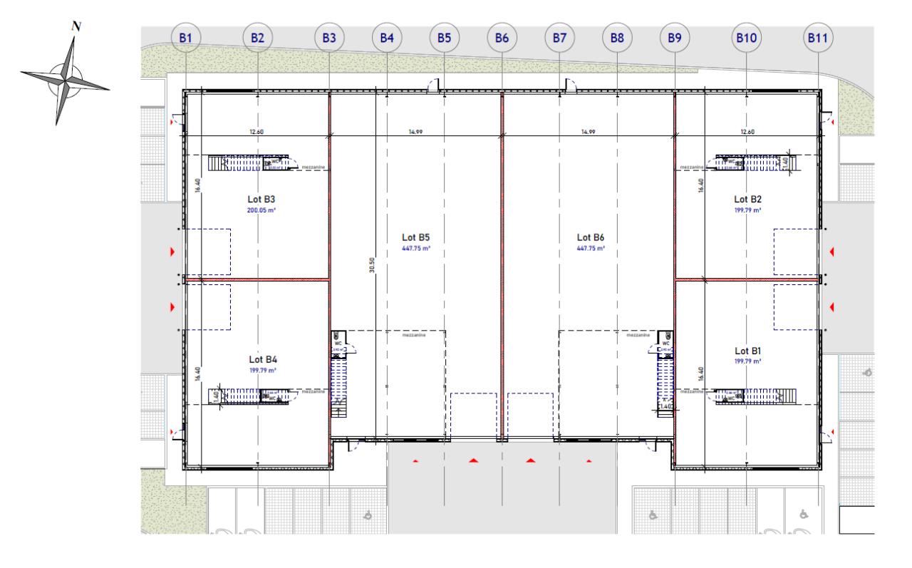
Millery (69)
BNP PRE vous propose à la location plusieurs cellules d'activités sur la commune de Millery (69). Bien situé, à 5 minutes de l'A450, proche des axes autoroutiers.
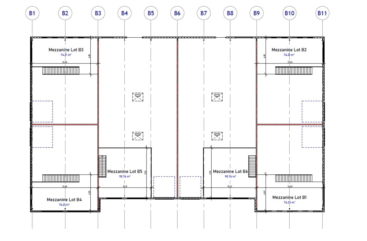
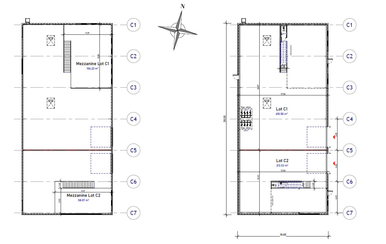
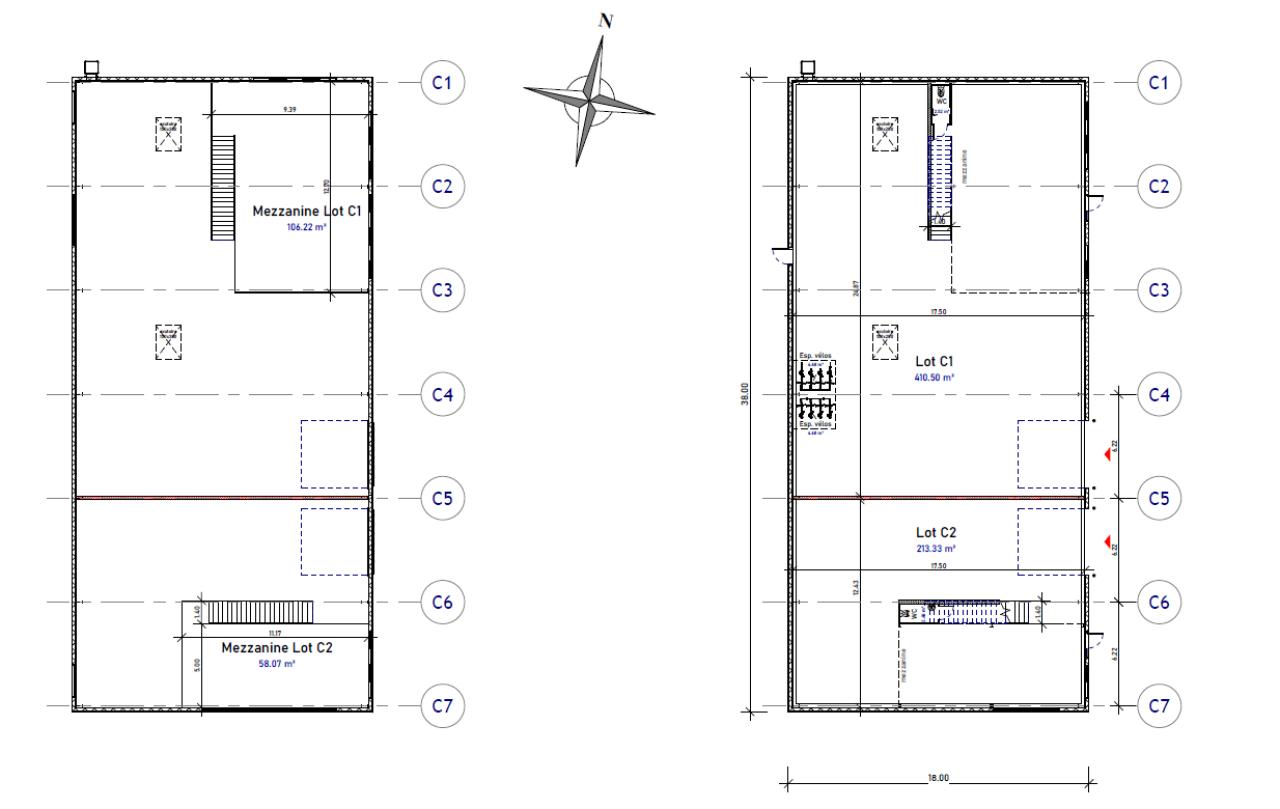
Une belle opportunité d'implantation s'offre à vous. Cellules modulables, à destination d'artisans et d'industrielles. Toutes les cellules sont équipées d'une mezzanine. Disponible fin 2026.
Situation géographique : Aux portes de la Métropole lyonnaise, avec un accès facilité grâce aux autoroutes majeures.
Millery : Membre de la Communauté de Communes de la Vallée du Garon (CCVG), regroupant 5 communes, 4 400 entreprises et 16 000 emplois.
Services & prestations
Hauteurs
-
Hauteur libre : 7,50 mètre(s) et 3.5m sous mezzanine
Accès véhicules
-
Accessibilité type véhicules : Tous porteurs
Equipements
-
Fluides en attente : Télécom, eau, électricité
-
Sols du bâtiment : Béton
Structure du bâtiment
-
Charpente : Métallique
-
Murs : Parpaings
Prestations de service
-
Parking : 70 Places
-
Sécurité : Contrôle d'accès Site clos et sécurisé - Accès par un portail coulissant motorisé
Aménagements
-
Accès Pers. Mobilité Réduite
-
Locaux sociaux : Sanitaires
-
Mezzanine : Avec garde-corps
Informations complémentaires
-
Porte sectionnelle de 4x4.5m ht










