




Location Local d'activité 2 750 m²
76430 Saint-Vigor-d'Ymonville
2 750 m²
44 €
HT/HC/m²/an
Disponibilité : 01/05/2026

Guillaume DU POUGET
Description
A LOUER - Saint Vigor d'Ymonville
À LOUER – Bâtiment d’activité indépendant de 2 750 m² – Secteur Saint-Vigor-d’Ymonville
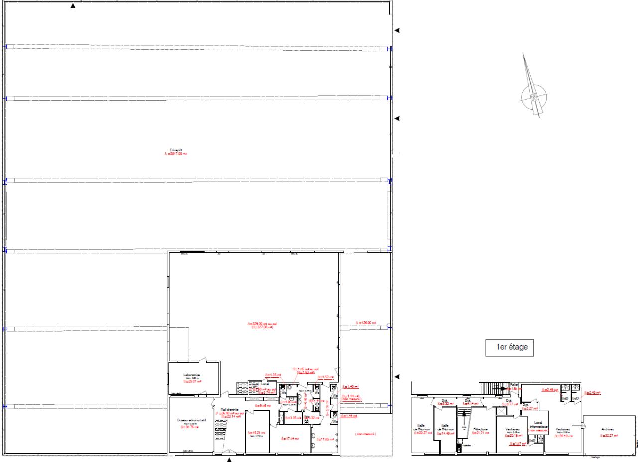
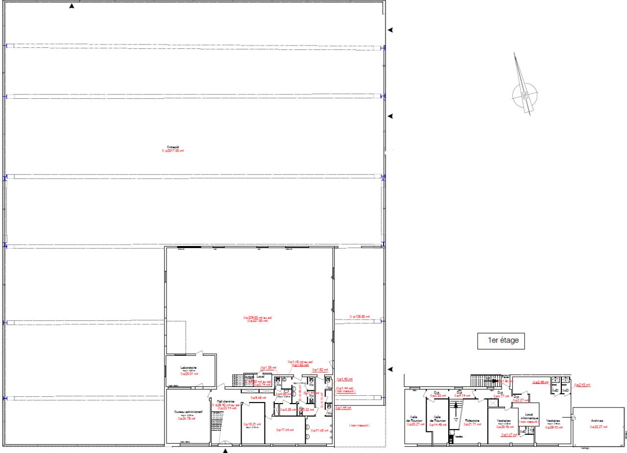
BNP Paribas Real Estate vous propose à la location un bâtiment d’activité indépendant d’une surface totale d’environ 2 750 m², implanté sur une parcelle clôturée de 9 200 m².
Ce site fonctionnel et polyvalent se compose de :
2 400 m² d'entrepôt
166 m² de bureaux en R+1
184 m² de locaux sociaux
1 porte d'accès à quai
1 porte d'accès plain-pied
Accès possible pour tout porteur
Site télé-surveillé et relié, assurant un haut niveau de sécurité
L'accès au dépôt est facilité grâce à une circulation optimisée, permettant des opérations de manutention pratiques et sécurisées.
Le site bénéficie d'un excellent positionnement logistique grâce à sa proximité immédiate :
de l'A131, permettant de rejoindre rapidement Le Havre,
de l'A29, assurant une connexion fluide vers Amiens, Rouen, Caen et l'ensemble du réseau autoroutier régional.
Cette localisation en fait un emplacement stratégique pour les entreprises ayant des besoins de distribution régionale, nationale ou import/export.
Transports en commun :
La zone est bien desservie par les transports en commun, permettant un accès facilité pour les salariés. Ces dessertes renforcent l'attractivité du site pour les entreprises recherchant un environnement accessible et pratique pour leurs équipes.
Un site adapté à de multiples activités
Grâce à sa surface, sa configuration fonctionnelle et sa localisation stratégique, ce bâtiment répond aux besoins :
des entreprises logistiques et de transport,
des sociétés industrielles ou de production,
des activités de distribution,
ou de tout acteur recherchant un site sécurisé, accessible et immédiatement opérationnel.
Pour davantage d'informations ou pour organiser une visite, n'hésitez pas à contacter BNP Paribas Real Estate Rouen.
Plus de biens sur notre site https://Local d'activité à vendre ou à louer Normandie - BNP Paribas Real Estate
Trouvez votre futur local, entrepôt, hangar, cellule de stockage ou votre foncier dans les parcs d'activités de Rouen et de Normandie. Disponibles à la location ou à la vente, nos offres s'adaptent à vos besoins en cellules industrielles ou artisanales. Ne manquez pas nos opportunités sur les surfaces à louer ou à vendre de la Métropole Rouennaise.
Services & prestations
Hauteurs
-
Hauteur sous poutre : Mini 5,55 m / maxi 6,70 m
Accès véhicules
-
Accessibilité type véhicules : Tous porteurs
Equipements
-
Climatisation : Réversible
-
Câblage informatique
-
Douche
-
Eclairage Bureaux : Luminaires encastrés
-
Eclairage intérieur
-
Faux plafond
-
Fenêtres
-
Porte d'accès plain-pied : 1
-
Porte d'accès à quai : 1
-
Puissance électrique : Tarif Bleu
-
Réseau Incendie Armé
-
Sol bureaux : Dls.thermoplastiques
-
Source chauffage : Electrique
Type / Etat du bâtiment
-
Etat de l'immeuble : Seconde main
-
IGH / Code du travail : Code du travail
-
Immeuble indépendant
Structure du bâtiment
-
Charpente : Métallique
-
Couverture : Bac acier isolé
-
Extension possible
-
Murs : Bardage double peau
Prestations de service
-
Parking
Aménagements
-
Accueil
-
Accès Pers. Mobilité Réduite
-
Bureaux cloisonnés
-
Hall d'accueil
-
Locaux sociaux
-
Salle informatique
-
Sanitaires
Extérieurs
-
Aire de livraison
-
Aire de manoeuvre
-
Eclairage extérieur
-
Terrain constructible
Informations complémentaires
-
Radiants gaz








