




Vente Local d'activité 1 404 m²
76620 Le Havre
1 404 m²
Divisible dès 310 m²
à partir de 415 300 €
HT/HD
Disponibilité : Immédiate

Guillaume DU POUGET
Description
A VENDRE- Le Havre
À VENDRE – Bâtiment d’activité neuf dans une zone d'activité du Havre
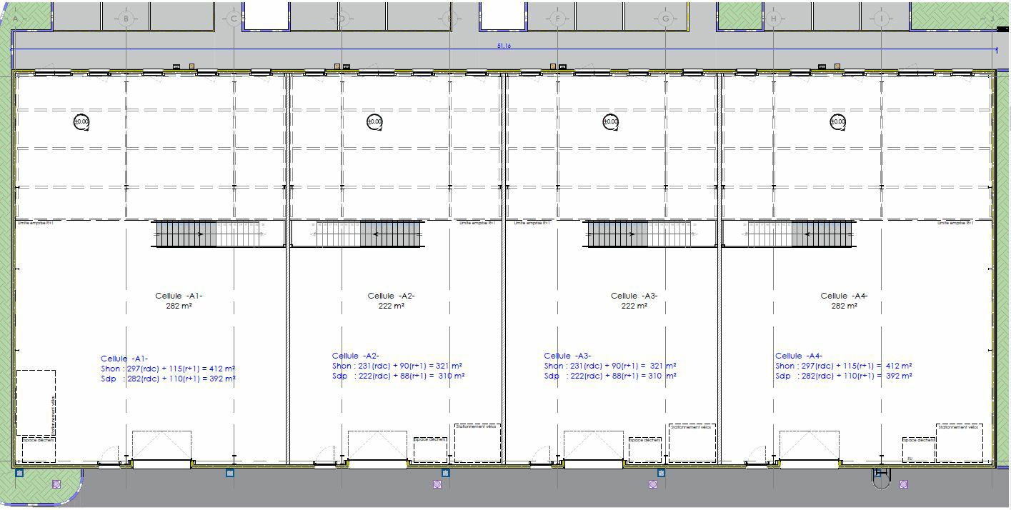
BNP Paribas Real Estate Rouen vous propose un bâtiment d’activité neuf d’une surface totale de 1 404 m², divisible à partir de 310 m².
Situé au cœur d’une zone dynamique, ce bien bénéficie d’un environnement attractif et de bonnes dessertes routières ainsi que de transports en commun à proximité, facilitant l’accès pour vos collaborateurs et vos clients.
Localisation & environnement :
Situé au sein d'une zone d'activités du Havre, ce site bénéficie d'un environnement économique attractif avec la présence de nombreuses entreprises, services et commerces.
L'accès est facilité par :
Axes routiers principaux : proximité immédiate des grands axes permettant de relier rapidement le centre du Havre, la zone portuaire et les villes voisines
Transports en commun : arrêts de bus à proximité facilitant la venue de vos collaborateurs
Aéroport du Havre-Octeville à quelques minutes, idéal pour vos déplacements professionnels
Découpe & surfaces :
Ce bâtiment est divisible en 4 lots indépendants, à partir de 310 m² :
Lot 1 et 2: 310 m²
Lot 3 et 4 : 392 m²
Caractéristiques techniques :
Bâtiment livré brut, avec fluides en attente, permettant un aménagement sur-mesure selon votre cahier des charges
Hauteur libre : 6,25 m au point le plus haut
4 portes sectionnelles de plain-pied
22 places de parking VL privées
Site clos et sécurisé
Opportunité d'implantation :
Ce bien constitue une solution idéale pour développer votre activité dans un secteur en pleine expansion.
Également disponible à la location !
Pour plus de flexibilité, ce bâtiment est également proposé à la location dans les mêmes conditions de modularité et de personnalisation.
Organisez votre visite !
Nos équipes BNP Paribas Real Estate Rouen restent à votre disposition pour vous fournir toute information complémentaire et organiser.
À la recherche de locaux ou d'entrepôts à louer ou à vendre dans la métropole rouennaise ? Découvrez nos offres de location et de vente dans les parcs d'activités et zones d'activités de Normandie. Que ce soit pour des cellules de stockage, hangar, industrie, du foncier ou des projets clé en main, nos surfaces sont disponibles pour répondre à vos besoins.
Services & prestations
Hauteurs
-
Hauteur sous porte plain-pied : 4,00 mètre(s)
-
Hauteur sous poutre : Mini 5,70 m / maxi 6,25 m
-
Hauteur sous-plafond : 2,50 mètre(s)
Accès véhicules
-
Accessibilité type véhicules : Tous porteurs
Equipements
-
Charge au sol Etage : 250,00 kg/m² sol béton brut, 250,00 kg/m² sol béton brut
-
Charge au sol Rdc : 2,00 tonne(s)/m²
-
Eclairage naturel
-
Fenêtres
-
Fluides en attente
-
Porte d'accès plain-pied : 4 4,00 m x 4,00 m (L x h)
-
Puissance électrique : Tarif Bleu
-
Sol bureaux : Béton
-
Sols du bâtiment : Béton dalle quartzée
Type / Etat du bâtiment
-
Etat de l'immeuble : Neuf
-
Etat du terrain : Voirie lourde
-
IGH / Code du travail : Code du travail
-
Immeuble copropriété
Structure du bâtiment
-
Charpente : Métallique
-
Couverture : Bac acier isolé
-
Murs : Bardage double peau
Prestations de service
-
Parking : 22 Places
Aménagements
-
Accès Pers. Mobilité Réduite
-
Aménagement des bureaux : Espaces Ouverts A aménager
-
Mezzanine
-
Sanitaires
Extérieurs
-
Aire de livraison
-
Eclairage extérieur : LED








