




Location Local d'activité 7 972 m²
93000 Bobigny
7 972 m²
Divisible dès 216 m²
à partir de 160 €
HT/HC/m²/an
Disponibilité : 01/01/2026

Ali GHOZAYEL
Description
BOBIGNY (93)
A LOUER / HOTEL D'ACTIVITES
BNP Paribas Real Estate vous propose un Hôtel d'activités divisible en plusieurs lots situé dans la commune de Bobigny, à proximité des axes routiers N3, A86, A3, N2 & A1 ainsi que des transports en commun (Métro 5 / Tramway T1).
* Charges parkings : 68 €/unité/an HT
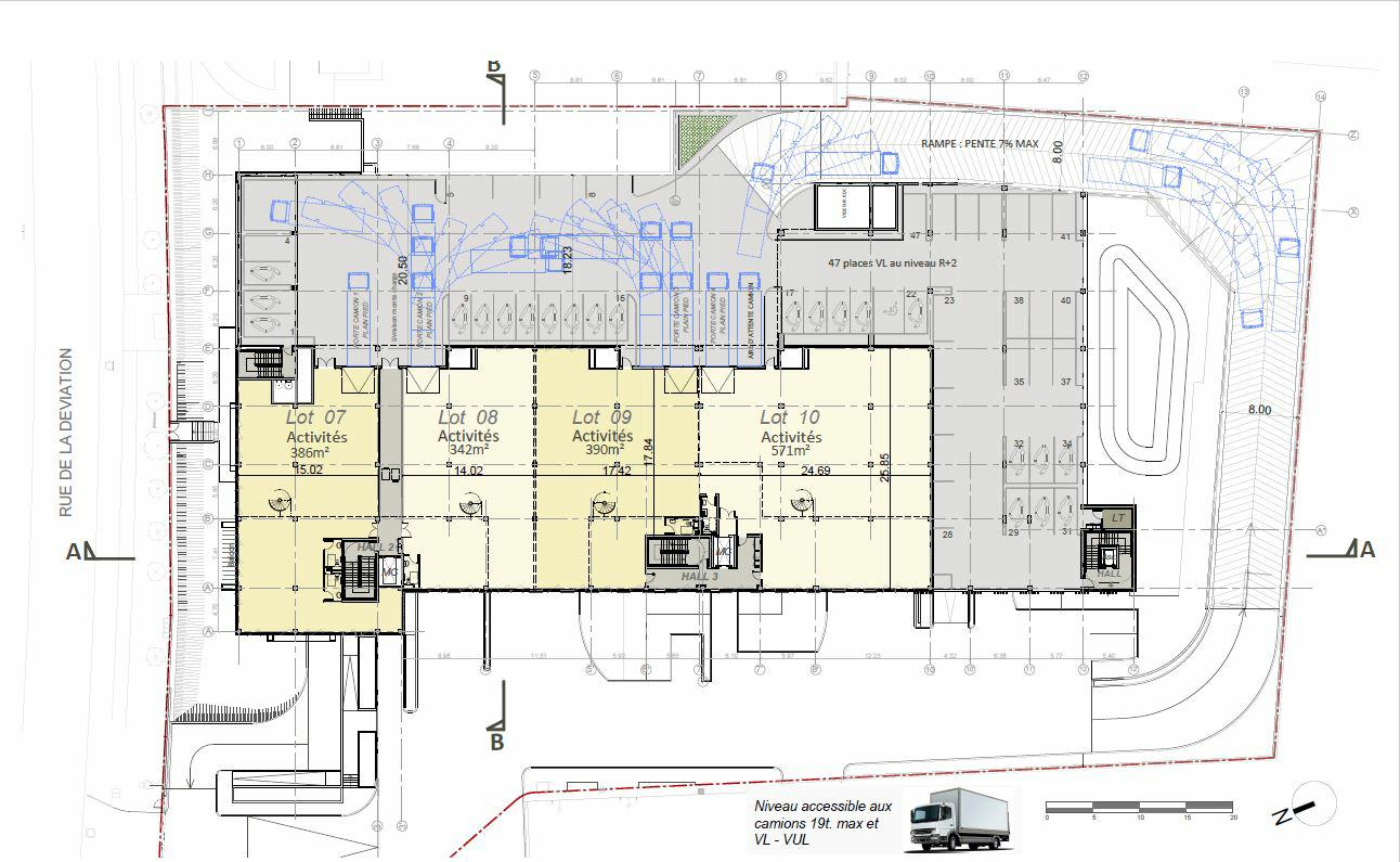
Nous vous proposons un Hôtel d'activités et bureaux divisible en plusieurs lots, à partir de 216 m² env.
Prestations techniques : hauteur libre de 3 mètres à 7 mètres env. (hors mezzanine, selon lot), 3 accès à quai, 8 accès plain-pied, aire d'attente, aire de livraison en étage, rampe d'accès 19 T au RDC, local de déchargement, monte-charge(s)
Certification BREEAM excellent / Bas carbone construction
Parkings : 53 places VL
Les locaux sont idéalement situés à proximité des axes routiers N3, A86, A3, N2 & A1 ainsi que des transports en commun Métro 5 "Bobigny-Pablo Picasso" à 2 km, tramway T1 "Libération" à 750 mètres. Aéroports Le Bourget & Roisssy Charles-de-Gaulle.
Services & prestations
Hauteurs
-
Hauteur libre : 3,00 mètre(s) à 7 mètres hors mezz., selon lot
Equipements
-
Monte-charge
-
Porte d'accès plain-pied : 8
-
Porte d'accès à quai : 3
-
Rampes d'accès : 19T au RDC
Type / Etat du bâtiment
-
Etat des locaux : Neuf
Prestations de service
-
Parking : 53 Places VL
Normes, Certifications et Labels
-
Certification : BREEAM
Informations complémentaires
-
Charge au sol activités : 3T/m² au RDC - 1,5T/m² à 2 T/m² en étages
-
Aire d'attente / Aire de livraison en étage
-
Local de déchargement










