




Location Local d'activité 5 068 m²
93290 Tremblay-en-France
5 068 m²
100 €
HT/HC/m²/an
Disponibilité : immédiate

Eric YALAP
Description
TREMBLAY EN FRANCE (93)
A louer / Entrepôt avec chambre froide
BNP PARIBAS REAL ESTATE vous propose un entrepôt avec chambre froide (froid positif) et bureaux d'accompagnement, accessible par les transports en commun et l'A104.
Rare. A visiter absolument.
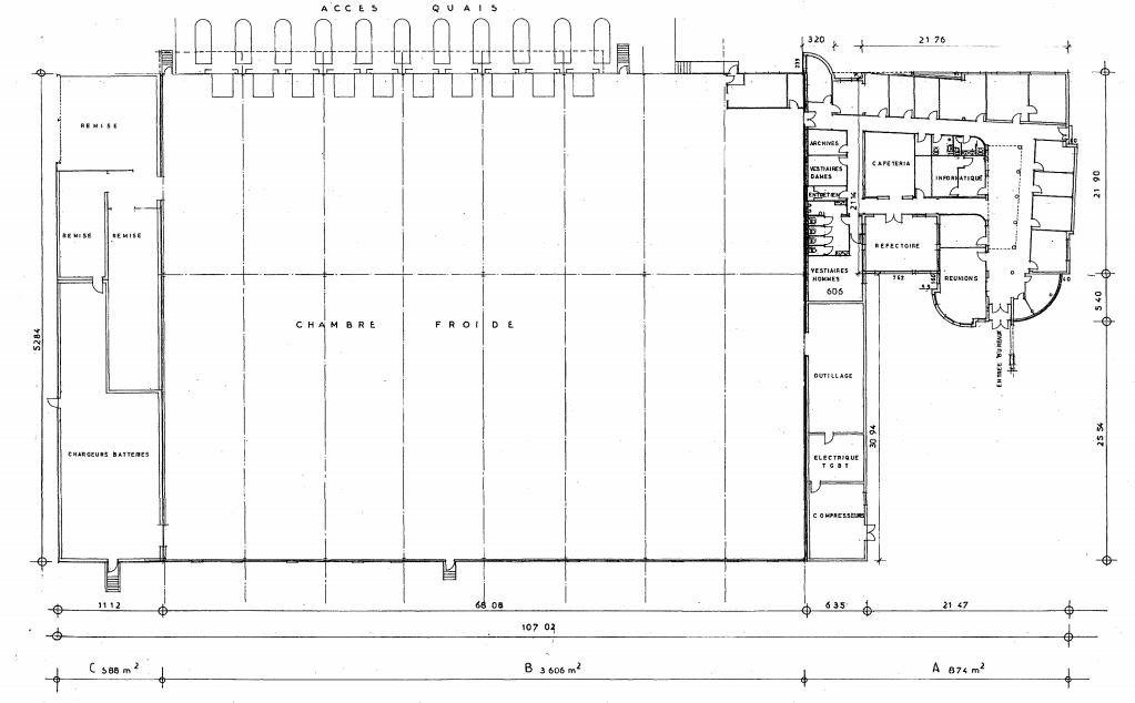
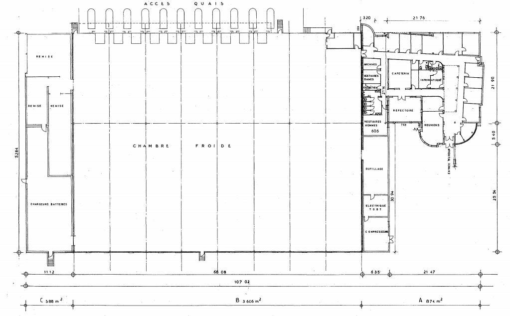
Nous vous proposons, à la location, un entrepôt composé de 4 574 m² d’espace de stockage avec 494 m² de bureaux d’accompagnement.
Spécificités du bien : structure béton, sol béton, groupe froid (chambre froide de 3 606 m²), aire de manoeuvre, accès à quai tous porteurs, douches, vestiaires, sanitaires.....
Bureaux en rez-de-chaussée avec faux-plafonds, luminaires encastrés, fenêtres, sanitaires...
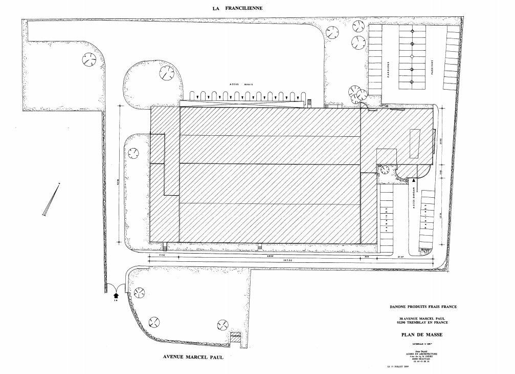
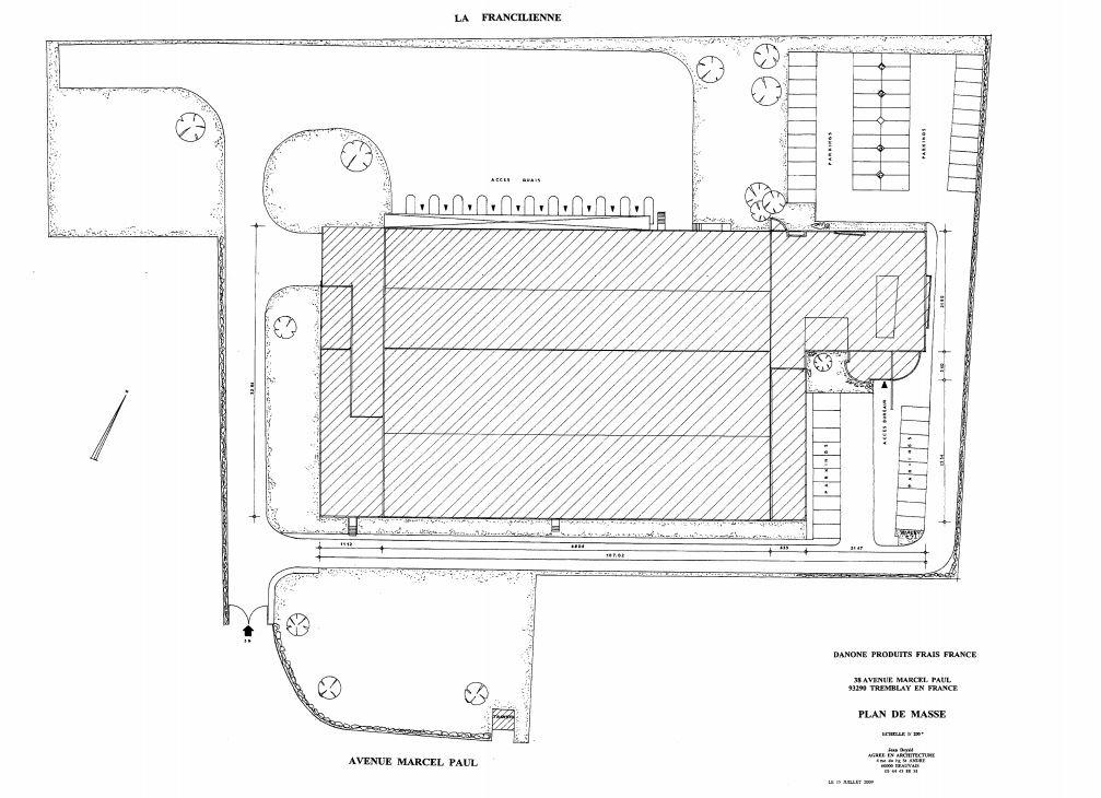
Le bâtiment est idéalement situé à proximité de l'aéroport de RCDG et accessible par l'A104 / D40 et de nombreuses lignes de bus.
Disponibilité immédiate
Pour toute information complémentaire, n'hésitez pas à prendre contact avec nos consultants BNP PARIBAS REAL ESTATE.
Services & prestations
Accès véhicules
-
Accessibilité type véhicules : Tous porteurs
Equipements
-
Eclairage Bureaux : Luminaires encastrés
-
Eclairage intérieur : Rampes tubes fluo.
-
Fenêtres
-
Groupe froid
-
Porte d'accès à quai : 10 avec niveleurs
-
Production climatisation : Chambre froide
-
Sol bureaux : Carrelage
-
Sols du bâtiment : Béton
Type / Etat du bâtiment
-
Etat de l'immeuble : Etat d'usage
-
Etat des locaux : Etat d'usage
Structure du bâtiment
-
Charpente : Métallique
-
Couverture : Bac acier isolé panneaux sandwich
Prestations de service
-
Cafétéria : Et réfectoire
-
Parking
-
Sécurité : Site clos avec portail
Aménagements
-
Accueil
-
Aménagement des bureaux : Rénovés
-
Locaux sociaux : Douches/Vestiaires
-
Sanitaires
Extérieurs
-
Aire de livraison
-
Aire de manoeuvre
Normes, Certifications et Labels
-
Autorisation d'exploiter 1 : 2925
Informations complémentaires
-
3606 m² chambre froide, Entrée indépendante, Local chargeur batteries/remises
-
Belle hauteur libre, Climatisation, Local compresseur/outils
-
Chauffage, Dégagement, Local de charge










