




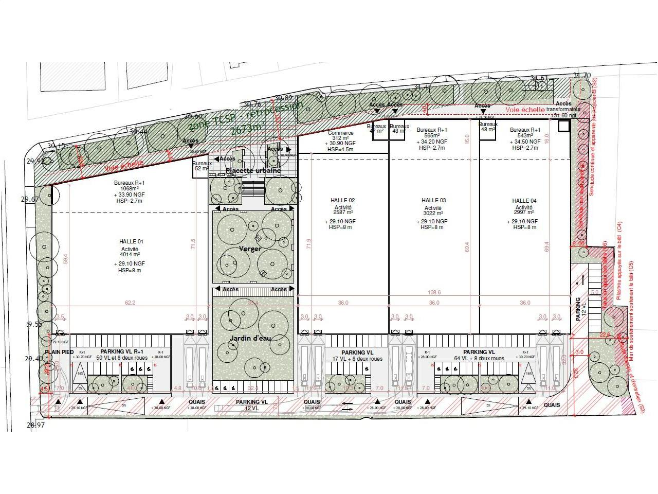
Location Local d'activité 8 160 m²
95100 Argenteuil
8 160 m²
Divisible dès 2 502 m²
à partir de 170 €
HT/HC/m²/an
Disponibilité : 01/01/2026

Nathalie DELOEUVRE
Description
ARGENTEUIL
Sur les Berges de Seine, Programme URBAN VALLEY
BNP Paribas Real Estate vous propose dans un environnement calme et sécurisant, à quelques pas du Pont de Bezons, de l'Autoroute A86 et du tramway T2, une opération composée de locaux d'activités innovants, stockage, bureaux d'accompagnement.
Livraison Janvier 2026
Ce programme URBAN VALLEY vous proposera un cadre de travail agréable
Désormais, chacun apprécie de travailler en extérieur. Ici vous disposez de jardins et d'espaces réversibles pour échanger, se restaurer, s'inspirer.
Le tout s'insère dans un quartier dynamique avec de nombreux services à quelques pas (hôtels Ibis Budget, B&B et Campanile, supermarchés, stade du Marais, Restaurant, tennis club).
Adapté aux nouveaux modes de travail, URBAN VALLEY est une réelle opportunité pour performer à proximité de Paris La Défense.
Ce site est également accessible aux gros porteurs et dispose de Quais de déchargement et des portes d'accès de plain-pied.
N'hésitez pas à contacter BNPPARIBAS REAL ESTATE pour de plus amples informations
Services & prestations
Hauteurs
-
Hauteur sous poutre : 8,00 mètre(s) max et 5,15m sous mezzanine
Accès véhicules
-
Accessibilité type véhicules : Tous porteurs
Equipements
-
Charge au sol Rdc : 3,00 tonne(s)/m²
-
Câblage informatique
-
Eclairage Bureaux : Luminaires encastrés LED
-
Eclairage intérieur : Naturel
-
Eclairage naturel : Skydomes
-
Faux plafond : Dal. fibres minéral.
-
Faux plancher
-
Fenêtres
-
Porte d'accès plain-pied : 2 par lot
-
Porte d'accès à quai : 1 par lot
-
Puissance électrique : 250,00 par lot
-
Revêtement mural
-
Sol bureaux : Moquette/Parquet
-
Sols du bâtiment : Dalle béton
-
Type de chauffage : Individuel
Type / Etat du bâtiment
-
Etat des locaux : Neuf
-
Etat du terrain : Goudronné
-
Immeuble indépendant
Structure du bâtiment
-
Charpente : Métallique
-
Couverture : Bac acier isolé
Aménagements
-
Accès Pers. Mobilité Réduite : Parkings
-
Locaux sociaux : Douches/Vestiaires
-
Sanitaires : Privatif(s)
Extérieurs
-
Aire de manoeuvre
Normes, Certifications et Labels
-
Certification : BREEAM In Use
Informations complémentaires
-
Chauffage aérotherme électrique










