




Location Local d'activité 4 688 m²
95240 Cormeilles-en-Parisis
4 688 m²
Divisible dès 852 m²
à partir de 120 €
HT/HC/m²/an
Disponibilité : 01/10/2026

Nathalie DELOEUVRE
Description
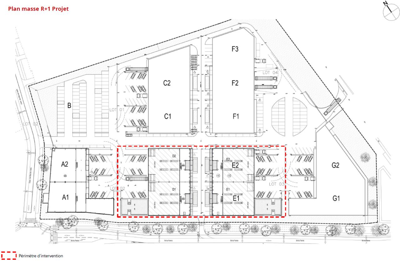
CORMEILLES EN PARISIS
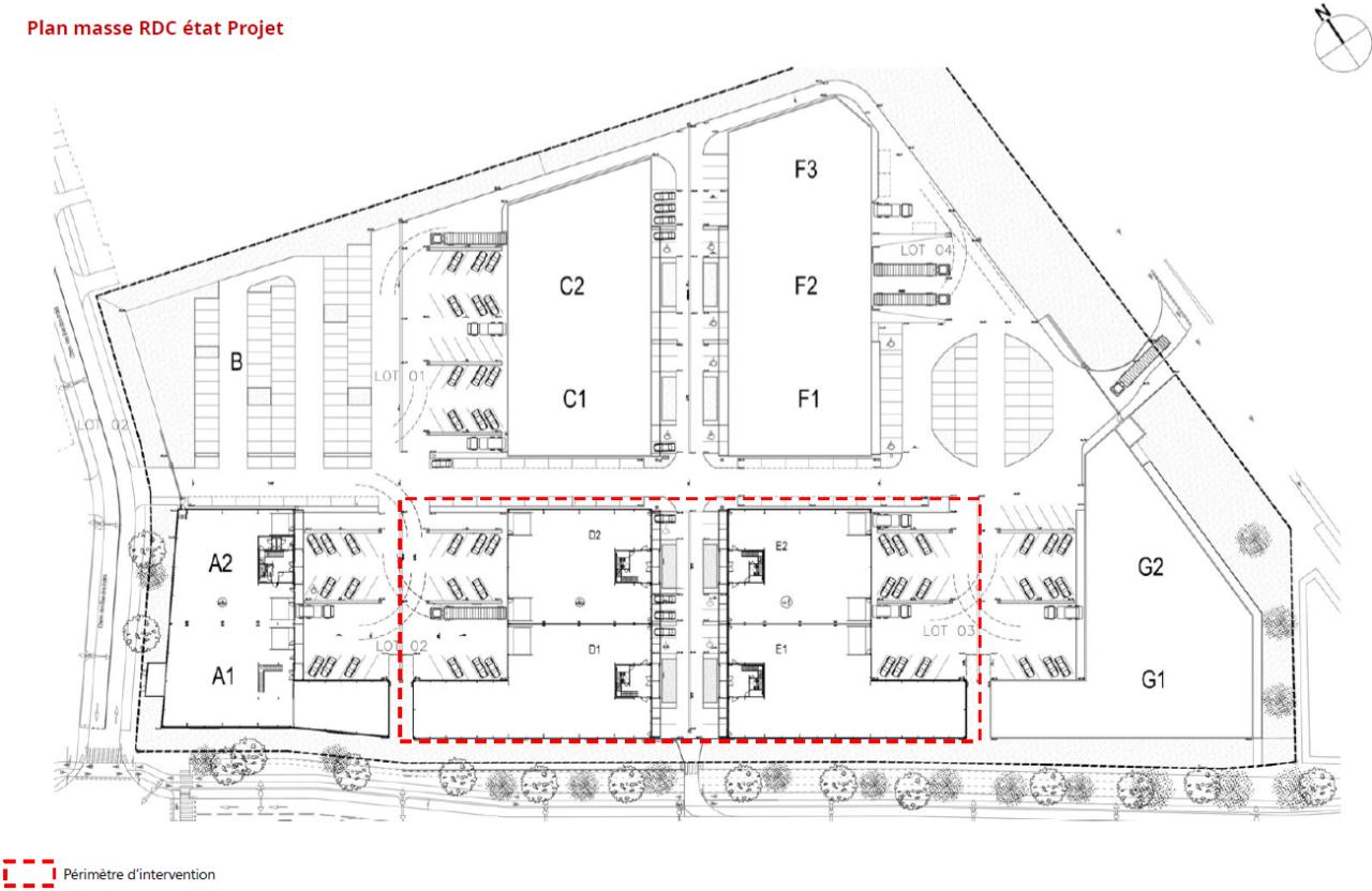
BNP Paribas Real Estate vous propose à la location des cellules d'activités et bureaux au coeur d'une zone d'activité dynamique où sont présentes de nombreuses entreprises de premier ordre.
Site à l'excellente visibilité commerciale à la frontière des zones commerciales de Cormeilles en Parisis, Argenteuil et Sartrouville où sont présentes de nombreuses entreprises de premier ordre.
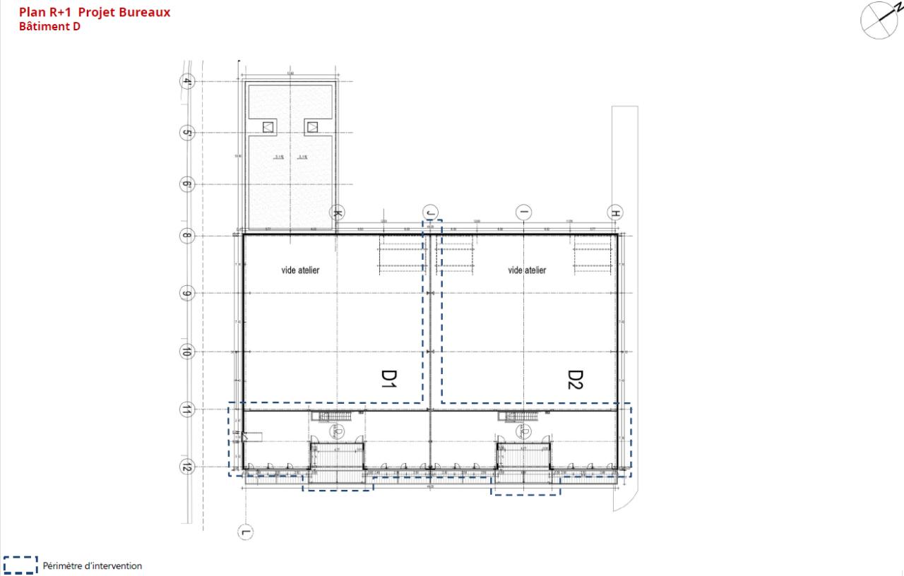
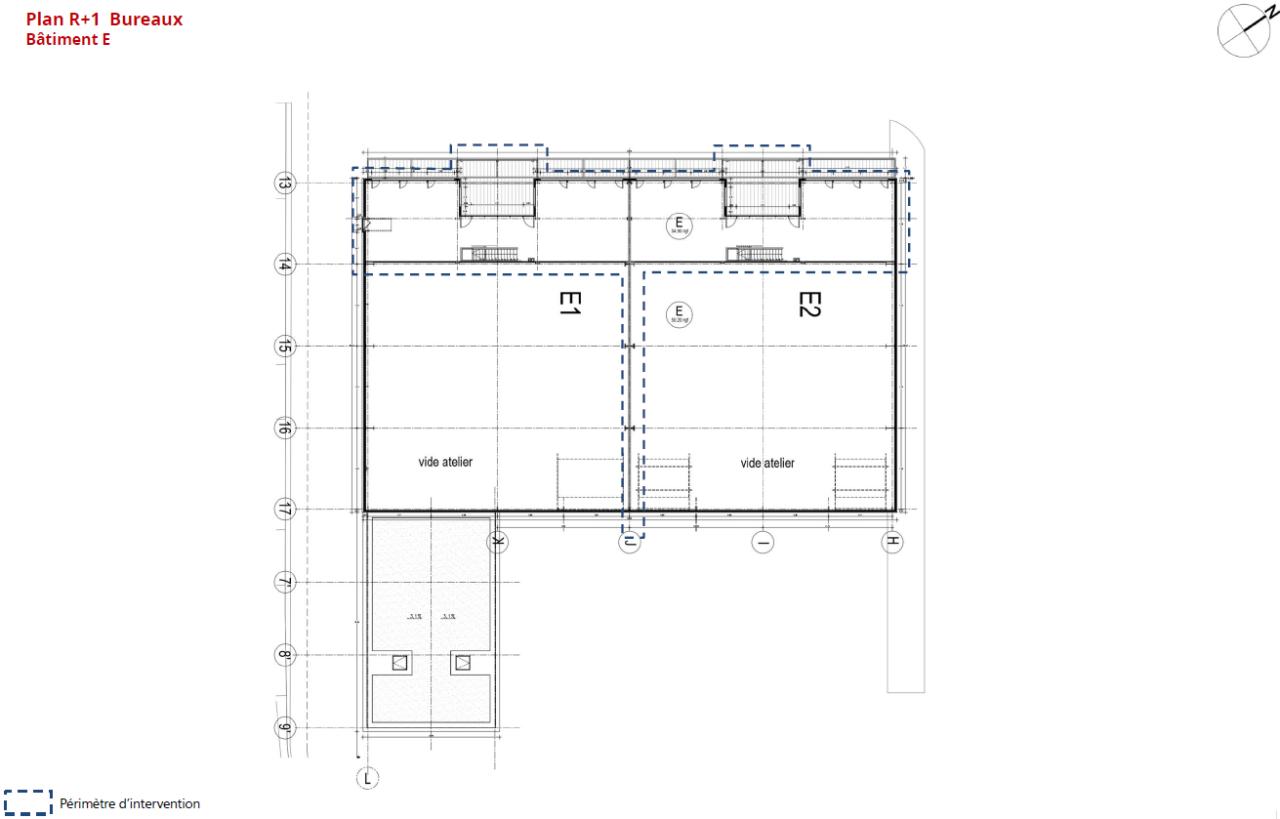
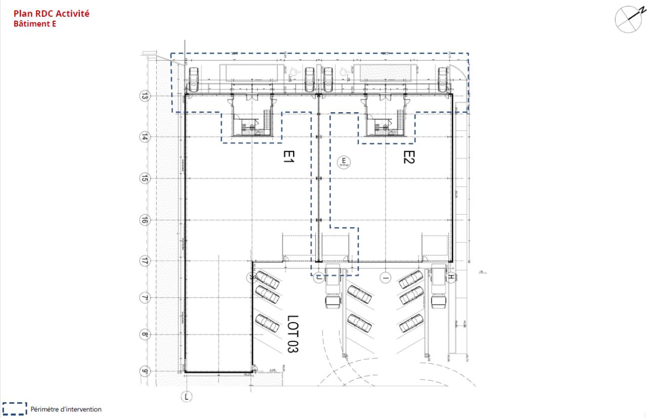
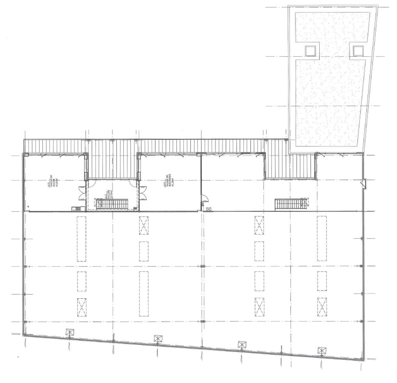
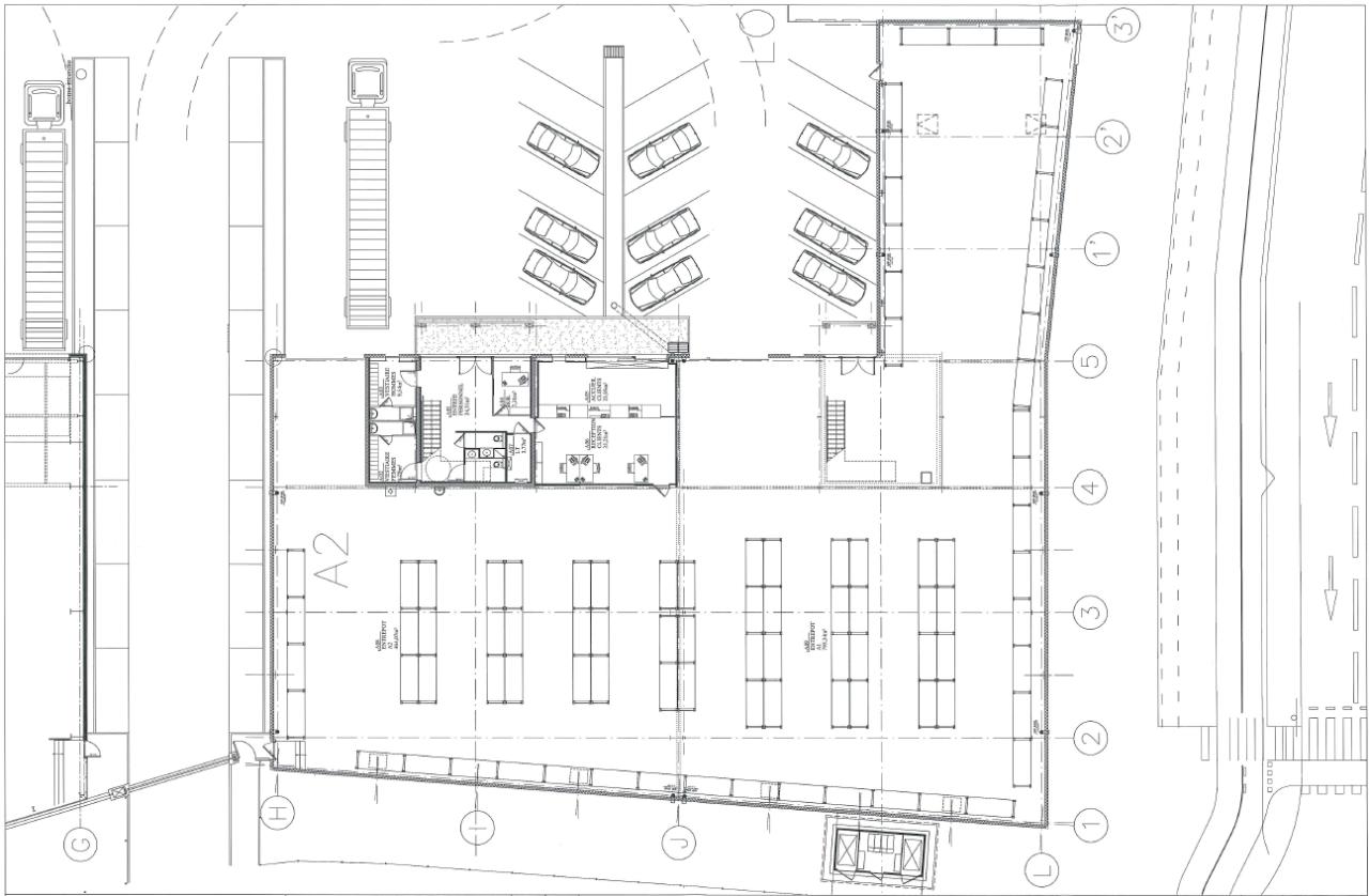
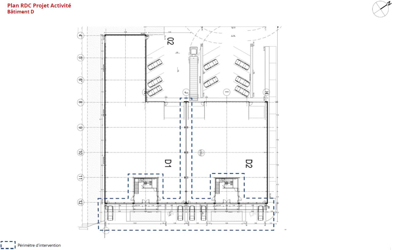
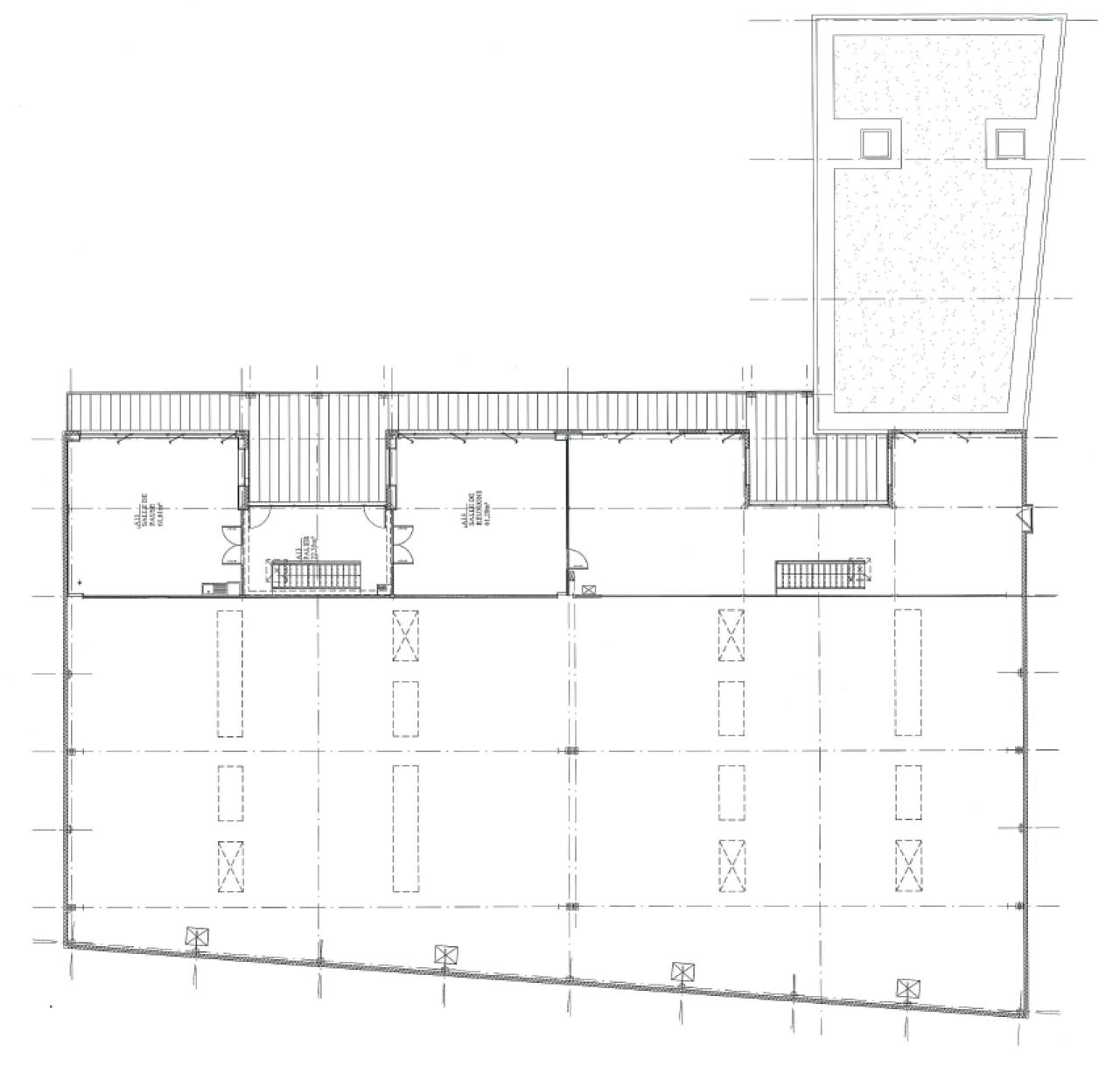
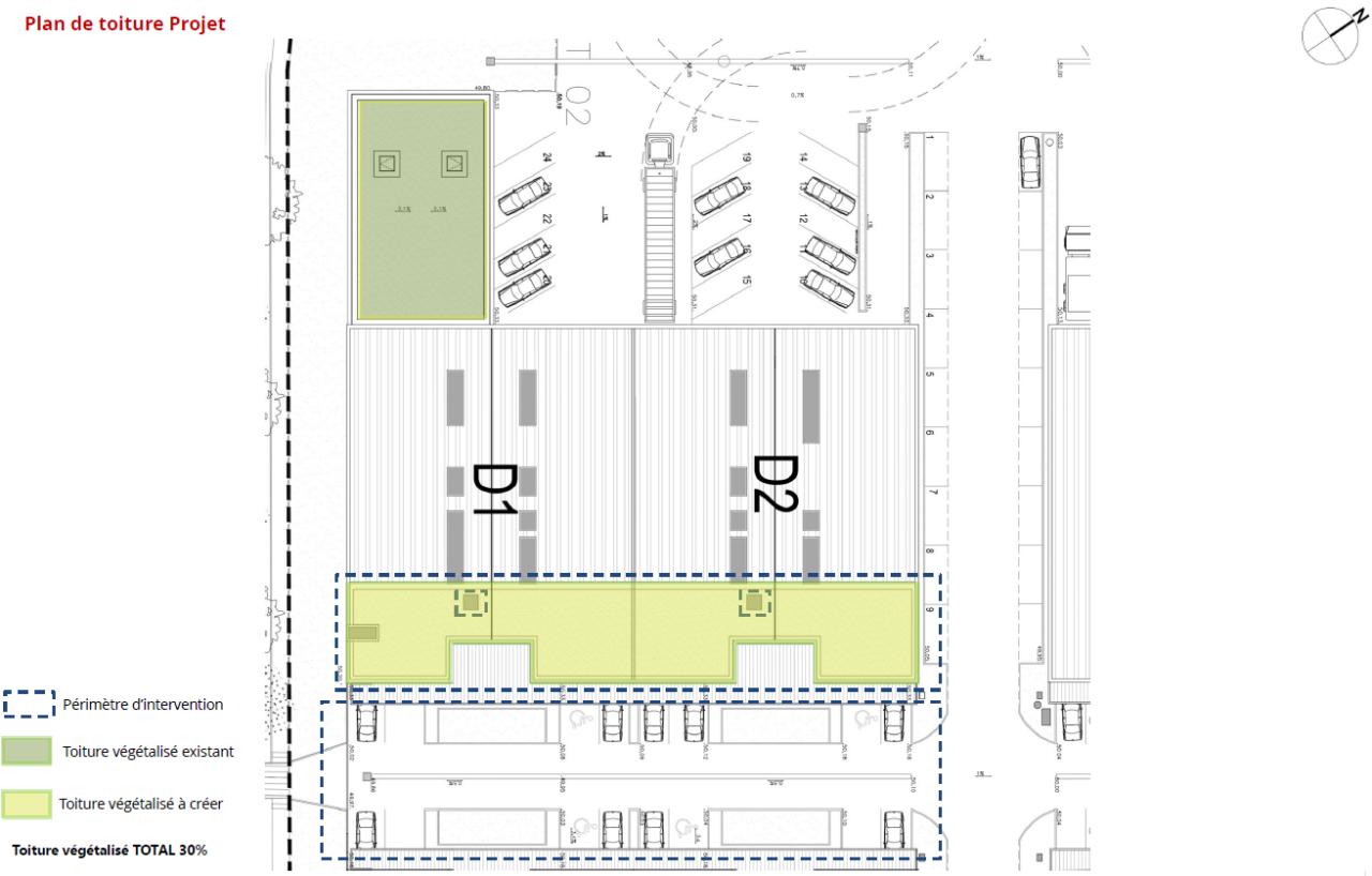
Les travaux débutent en Février 2026 pour les bâtiments D et E, livraison prévue pour le 4e trimestre 2026.
Services & prestations
Hauteurs
-
Hauteur libre : 6,20 mètre(s) au plus bas et 4m sous mezzanine
Accès véhicules
-
Accessibilité type véhicules : Tous porteurs
Equipements
-
Charge au sol Rdc : 3,00 tonne(s)/m² (à confirmer)
-
Climatisation
-
Eclairage Bureaux : Led
-
Eclairage intérieur : LED
-
Eclairage naturel : Skydomes
-
Faux plafond
-
Porte d'accès plain-pied : 3
-
Puissance électrique : Tarif Jaune
-
Sol bureaux : Dls.thermoplastiques
-
Sols du bâtiment : Béton
Type / Etat du bâtiment
-
Etat des locaux : Neuf
Structure du bâtiment
-
Charpente : Métallique
-
Couverture : Bac acier isolé
-
Murs : Bardage double peau
Aménagements
-
Aménagement des bureaux : Espaces Ouverts
-
Hall d'accueil
-
Locaux sociaux : Sanitaires
Extérieurs
-
Eclairage extérieur : LED










