




Location Local d'activité 2 499 m²
95610 Éragny
2 499 m²
Divisible dès 373 m²
à partir de 116 €
HT/HC/m²/an
Disponibilité : Immédiate

Mathis RAYNAL
Description
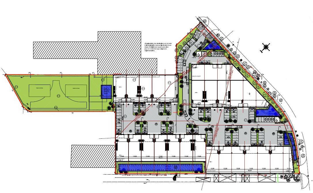
ERAGNY SUR OISE -
Veelage Eragny - Bâtiment B
BNP Paribas Real Estate vous propose à la location le VEELLAGE PARC d'ERAGNY.
Ce Parc d'activité NEUF dédié aux PME/PMI est à usage d'activité et bureaux d'accompagnement.
Construction en 2 phases : Bâtiments A et B livrés;
le Bâtiment C sera livré dans le courant de l'année 2025.
Bâtiment A : 2 620,5 m² / Bâtiment B : 5 072,9 m² / Bâtiment C : 1 855m²
Nous vous proposons, à la location, 9.650 m² environ de surface d'activité, entreposage et de bureaux divisibles à partir de 173 m².
Ce parc est articulé autour de 3 bâtiments, dont 2 batiments déjà disponibles,
Ils répondent à vos différents besoins d'activité avec ses avantages :
- Hauteur libre : 7.00m de hauteur libre
- Charge au sol RDC : 3.00 tonnes/m²
- Portes d'accès plain-pied
- Parking voitures (dont véhicules électriques)
Encore bien d'autres atouts sont à découvrir !
Idéalement situé, ce parc est accessible directement par l'autoroute A15 ou la nationale N184, la ligne L (Cergy) ou H (SOA), le RER A ou C ou encore la ligne de bus stivo 33/49/55.
Ces trois bâtiments distincts seront parfait pour une PME/PMI.
N'hésitez pas à contacter votre conseiller BNPPARIBAS REAL ESTATE pour plus d'informations.
Services & prestations
Hauteurs
-
Hauteur libre : 7,00 mètre(s)
-
Hauteur sous porte plain-pied : 3,00 mètre(s) x 3,50m
Equipements
-
Charge au sol Rdc : 3,00 tonne(s)/m²
-
Porte d'accès plain-pied
-
Puissance électrique : Tarif Bleu (compteur jaune possible)
Type / Etat du bâtiment
-
Etat de l'immeuble : Neuf
-
Etat des locaux : Neuf
Prestations de service
-
Parking : Quelques emplacements pour véhicules électriques
-
Sécurité : Portails motorisés
Aménagements
-
Aménagement des bureaux : Espaces Ouverts
-
Locaux sociaux : Sanitaires
Extérieurs
-
Terrasses - jardins : Balcons sur tous les lots (sauf lots 101 à 103)
Informations complémentaires
-
Chauffage aérothermes gaz (à confirmer), Climatisation, RIE à 5 minutes à pied
-
Local vélo










