




Location Local d'activité 849 m²
95610 Éragny
849 m²
Divisible dès 173 m²
à partir de 113 €
HT/HC/m²/an
Disponibilité : Immédiate

Mathis RAYNAL
Description
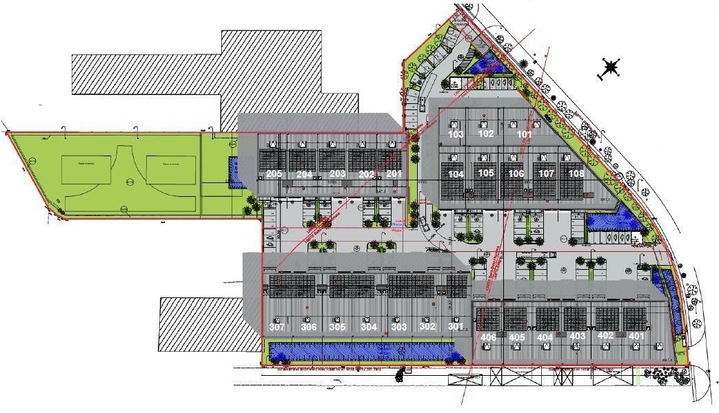
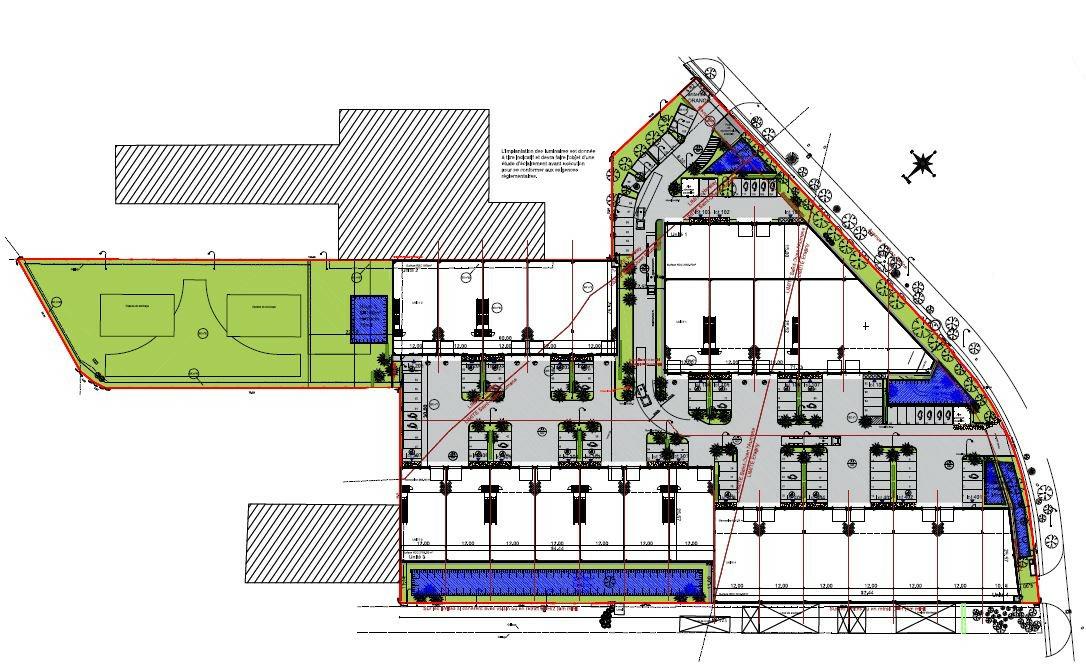
Eragny
Veelage Eragny - Bâtiment A
BNP Paribas Real Estate vous propose à la location un parc PME/PMI clé en main sur la commune d'Eragny. Proche de l'A15.
OPPORTUNITE SUR LA ZONE !
Nous vous proposons à la location plusieurs celulles d'activités avec bureaux d'accompagnement.
Le bâtiment dispose d'une porte d'accès plain pied motorisé par cellule d'une hauteur de 3m*3.50 m et d'une hauteur libre de 5 mètres et de 7 mètres. La charge au sol au rez-de-chaussée est de 3T/m².
Le site est clôturé avec un portail motorisé et sécurisé avec une belle aire de manoeuvre.
Ces locaux répondront parfaitement à vos différents besoins et bénéficient d’une bonne accessibilité dans un environnement tertiaire et dynamique ! Les locaux sont idéalement situés proche de la N184 et A15 et accessibles en transport de la gare de Cergy (Rer A, Ligne transilien L).
Prestations techniques :
- charpente métallique
- couverture en bac acier isolé
- Restaurant interentreprise à 5 minutes à pied
- Emplacements pour véhicules électriques sur zone
- Local à vélo
N'hésitez pas à joindre BNP PARIBAS Real Estate pour plus d'informations sur ces annonces.
Services & prestations
Hauteurs
-
Hauteur libre : 7,00 mètre(s)
-
Hauteur sous porte plain-pied : 3,00 mètre(s) x 3,50m
Equipements
-
Charge au sol Rdc : 3,00 tonne(s)/m²
-
Porte d'accès plain-pied
-
Puissance électrique : Tarif Bleu (compteur jaune possible)
Type / Etat du bâtiment
-
Etat de l'immeuble : Neuf
-
Etat des locaux : Neuf
Prestations de service
-
Parking : Quelques emplacements pour véhicules électriques
-
Sécurité : Portails motorisés
Aménagements
-
Aménagement des bureaux : Espaces Ouverts
-
Locaux sociaux : Sanitaires
Extérieurs
-
Terrasses - jardins : Balcons sur tous les lots (sauf lots 101 à 103)
Informations complémentaires
-
Chauffage aérothermes gaz (à confirmer), Climatisation, RIE à 5 minutes à pied
-
Local vélo










