




Location Local d'activité 333 m²
94200 Ivry-sur-Seine
333 m²
170 €
HT/HC/m²/an
Disponibilité : Immédiate

Jeanne LESUR
Description
IVRY SUR SEINE (94)
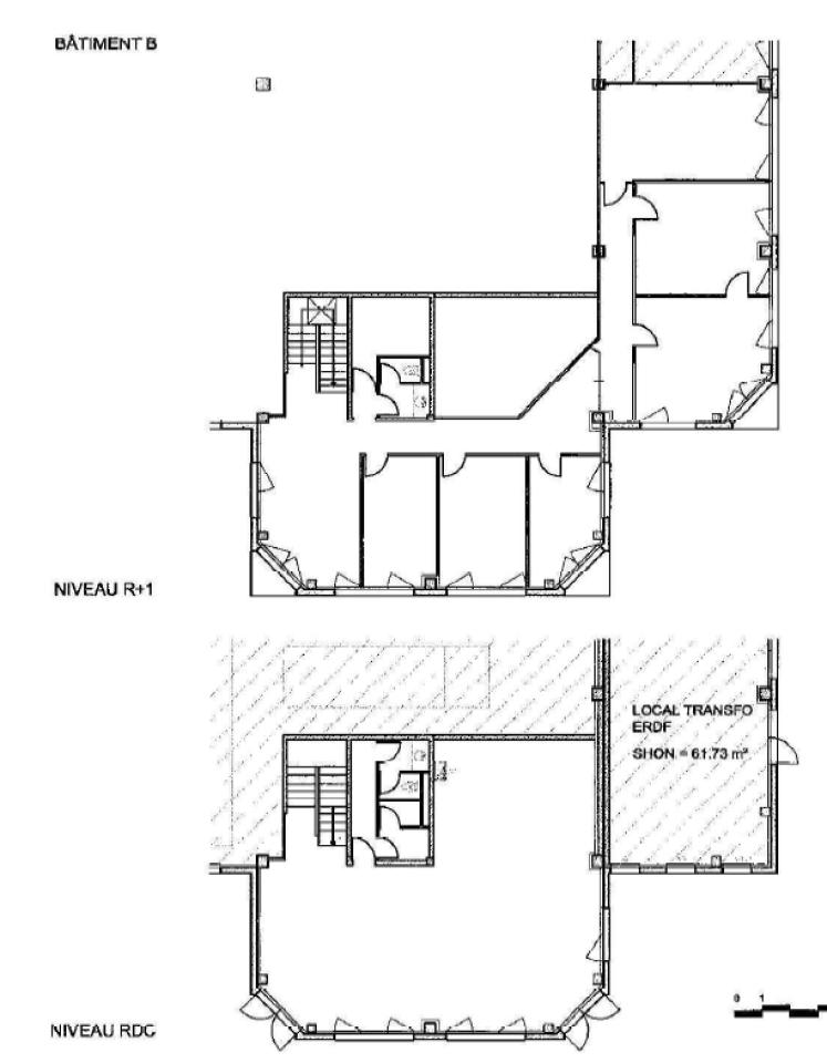
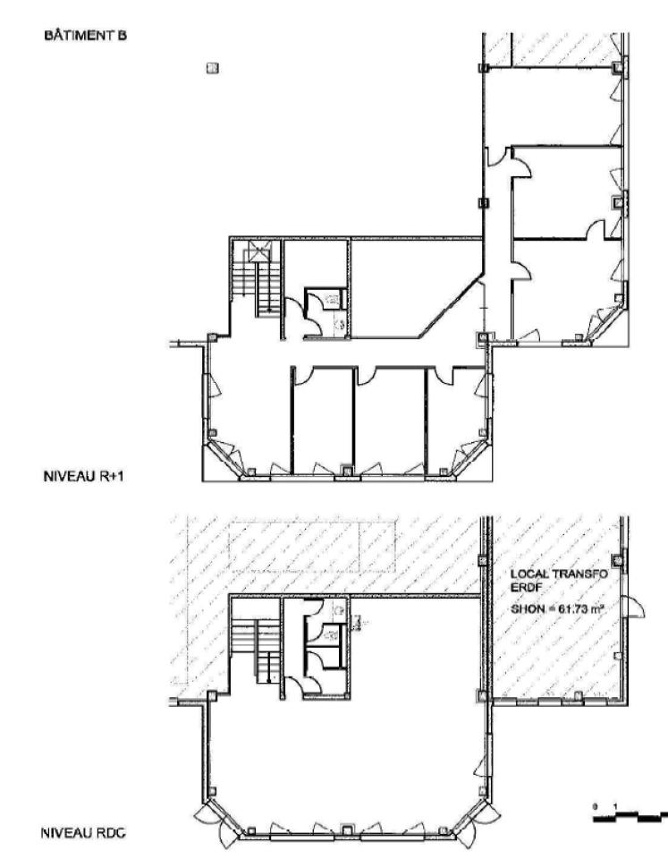
A LOUER - Bâtiment B
BNP PARIBAS Real Estate vous propose, à Ivry sur Seine, un lot d'activité et bureaux en location.
Nous vous proposons à la commercialisation un lot d'activité et bureaux.
Prestations activités :
- HSP : 6,5 m
- Nombreuses portes d'accès à quai
- Parking important
Prestations bureaux :
- Eclairage bureaux : luminaires encastrés
- Sols : moquette/carrelage
- Câblage informatique
Entrepôt lumineux sur un clos et sécurisé à proximité de la gare
Dessertes routières : A4/A6
RER C : " IVRY SUR SEINE "
Services & prestations
Hauteurs
-
Hauteur sous porte plain-pied : 5,50 mètre(s)
Accès véhicules
-
Accessibilité type véhicules : Tous porteurs
Equipements
-
Charge au sol Rdc : 2,00 tonne(s)/m²
-
Câblage informatique
-
Eclairage Bureaux : Luminaires encastrés
-
Faux plafond
-
Porte d'accès plain-pied
-
Puissance électrique : Tarif Jaune 84,00
-
Sol bureaux : Moquette/Carrelage
-
Source chauffage : Gaz
-
Type de chauffage : Individuel
Type / Etat du bâtiment
-
Etat de l'immeuble : Etat d'usage
-
Etat des locaux : Rénové
-
Etat du terrain : Goudronné
Structure du bâtiment
-
Charpente
-
Couverture : Béton
-
Murs : Béton
Aménagements
-
Sanitaires : En RDC et R+1, Oui
Informations complémentaires
-
Climatisation réversible










