




Vente Bureau 1 511 m²
67960 Entzheim
1 511 m²
Divisible dès 96 m²
4 419 239 €
HT/HD
Disponibilité : 23 mois après accord

Nalan KOLAT
Description
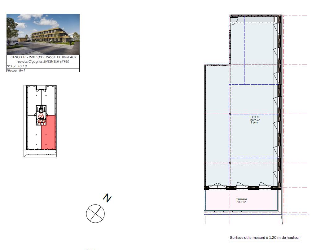
Le Symbiose - ENTZHEIM
AEROPARC - STRASBOURG - REF. OVBUR2309245
Programme de BUREAUX à la vente dans un immeuble à construire plusieurs lots de bureaux passifs allant de 95 à 490 m² environ avec une très basse consommation dont les besoins en chauffage sont très limités soit plus de trois fois moins que pour le standard Bâtiment Basse Consommations (BBC). Implanté dans le Parc d'Activité d'Entzheim, comprenant de belles terrasses et un parking extérieur.
Programme de BUREAUX à la VENTE dans un immeuble à construire plusieurs lots de bureaux passifs allant de pres de 100 à 500 m² environ avec une très basse consommation dont les besoins en chauffage sont très limités soit plus de trois fois moins que pour le standard Bâtiment Basse Consommations (BBC). Implanté dans le Parc d'Activité d'Entzheim, comprenant de belles terrasses et un PARKING extérieur.
L’Aéroparc d’ENTZHEIM est une zone d’activité dynamique située à seulement 20 mn en voiture du centre-ville de STRASBOURG et à 5 mn de l’Aéroport de STRASBOURG ENTZHEIM.
Une navette TER permet de rallier l’Aéroport de STRASBOURG à la Gare TGV de STRASBOURG en moins de 8 min. Les navettes de BUS de la ligne 12 sont également mises en place pour une desserte optimale.
Le site est situé à la sortie de l'AUTOROUTE A35.
Plus de 300 entreprises représentant plus de 2 000 salariés ont fait le choix de s’implanter sur ce parc eco-responsable. l’Aéroparc d’Entzheim.
Le parc est doté de services des usagers tels des HOTELS, RESTAURANTS ou encore des CRECHES.
Consultez-nous pour connaître le détail des tarifs, et planifiez votre visite dès à présent !
Consultez-nous pour connaître le détail des tarifs, et planifiez votre visite dès à présent !
Services & prestations
Aménagements
-
Accueil : Espace d'attente
-
Hall d'accueil : Collectif
-
Sanitaires : Parties communes
Equipements
-
Ascenseurs : 1
-
Climatisation : Réversible
-
Eclairage Bureaux : LED
-
Faux plafond : Dal. fibres minéral.
-
Fenêtres : Double vitrage
-
Sol bureaux : Moquette Dalles de moquette 50x50cm
Prestations de service
-
Parking : Places à l'extérieur
Type / Etat du bâtiment
-
Etat de l'immeuble : Neuf
Informations complémentaires
-
Hôtels et restaurants à proximité










