




22 Route de Gauré
31130 Balma
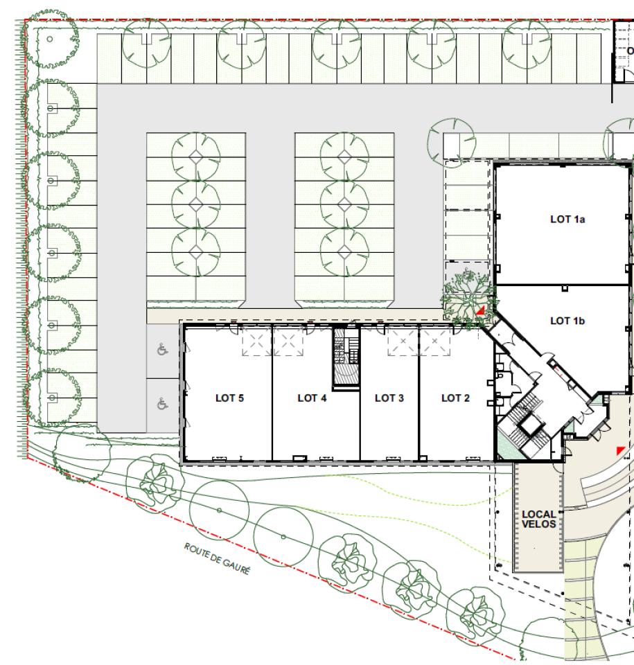
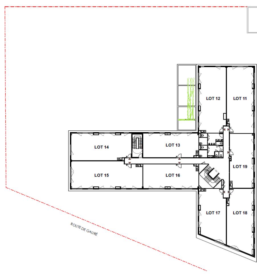
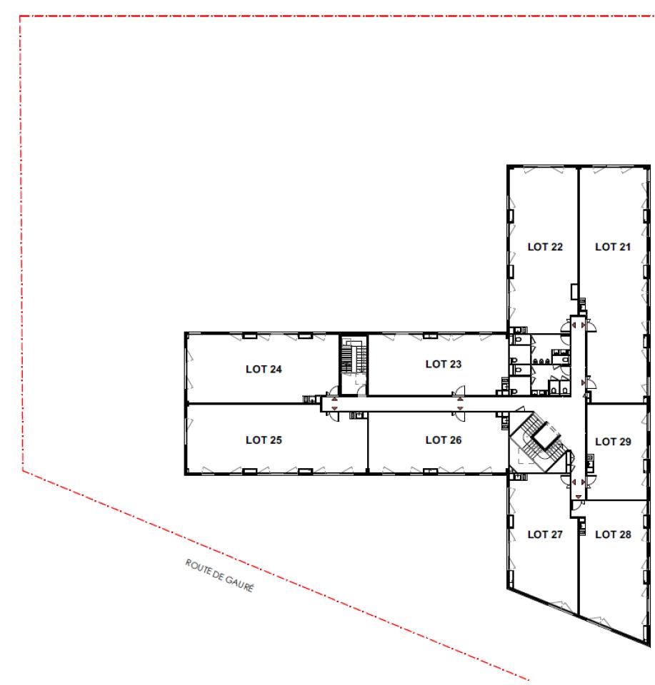
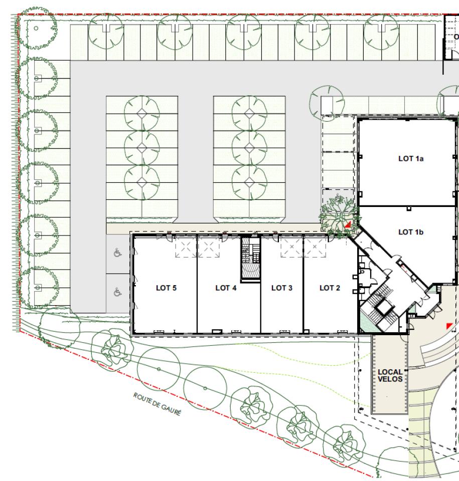
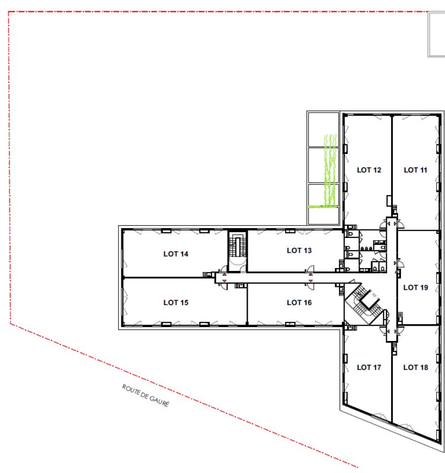
2 214 m²
Divisible dès 54 m²
5 669 200 €
HT/HD
Disponibilité : 18 mois après accord

Sophie MIZRAHI
Description
SECTEUR BALMA THEGRA
*** BALMA ZONE THEGRA - BUREAUX A VENDRE ***
BNP Paribas Real Estate vous propose un bâtiment à construire à usage de bureaux, disponible à la vente.
L'ensemble immobilier profite d'un emplacement stratégique à proximité du métro ligne A Balma-Gramont, du Centre Commercial OCCITANIA et d'un accès via la rocade Est de Toulouse sortie n°15 "Balma-Gramont/Jolimont".
Livraison : 15 mois
La desserte est excellente :
Métro ligne A "Balma-Gramont" à 1 km
Bus à 1 km
Desserte routière : accès immédiat
Aéroport Toulouse Blagnac à 16 kms
Les prestations techniques sont de qualité :
Climatisation : Réversible
Distribution climatisation : Ventilo convecteur en plafonnier
Sécurité : Contrôle d'accès
Aménagement des bureaux : Ouverts
Faux plafond : Dalles en fibre minérale
Plinthes techniq.périphériques
Trame de façade : 1.35 mètre(s)
Eclairage Bureaux : Luminaires encastrés
Sol bureaux : Moquette
Sanitaire(s) : Parties communes
Distribution chauffage : Réversible
Production climatisation : Autonome
Parking voiture
ERP 5 au RDC
Balma est située aux portes de la métropole toulousaine, à l'Est de l'agglomération à seulement 15 minutes en voiture du centre-ville de Toulouse et à seulement 10 min en métro du centre-ville de Toulouse.
Balma est en plein essor avec notamment le développement par OPPIDEA de la ZAC Balma-Gramont qui accueille l'Ecoquartier Vidailhan. Cette zone de 106 hectares est dédiée pour 2/3 à l'activité économique et pour 1/3 à l'habitat.
Elle offre 14 hectares de parcs, des équipements publics dont un groupe scolaire, une crèche, une maison de quartier et propose du transport à la demande (TAD).
Situé aux portes de Toulouse, le projet est bordé par l'autoroute A61. Le centre-ville est relié quant à lui par 4 autoroutes.
L'aéroport de Toulouse se trouve à Blagnac et est joignable en 16 minutes par la rocade Est (A620) en voiture.
La gare de Toulouse-Matabiau est accessible en 13 minutes.
La zone d'activités dispose d'un accès direct à la rocade sortie n°15 et relie le Capitole en 15 minutes.
AUX ENVIRONS :
Proximité immédiate avec plusieurs commerces et services, y compris restauration et complexes sportifs (publics et privés).
PÔLE D'ACTIVITÉ MAJEUR :
Site de nombreuses délégations régionales en banques, assurances, mutuelles,
Toutes nos offres sur : https://www.bnppre.fr/toulouse/
Services & prestations
Aménagements
-
Aménagement des bureaux : Espaces Ouverts
-
Sanitaires : Parties communes
Equipements
-
Ascenseurs
-
Climatisation : Réversible
-
Câblage informatique
-
Distribution chauffage : Réversible
-
Distribution climatisation : Ventilo convecteur en plafonnier
-
Douche
-
Eclairage Bureaux : Luminaires encastrés
-
Faux plafond : Dal. fibres minéral.
-
Plinthes techniques périphériques
-
Production climatisation : Autonome
-
Sol bureaux : Moquette
Prestations de service
-
Sécurité : Contrôle d'accès
Normes, Certifications et Labels
-
Catégorie ERP : 5 au RDC
Type / Etat du bâtiment
-
IGH / Code du travail : Code du travail dans les étages










