




38 Rue de Villiers
92300 Levallois-Perret
1 804 m²
Divisible dès 91 m²
à partir de 682 360 €
HT/HD
Disponibilité : 3 mois après accord

Sylvie NIZARD
Description
IMMEUBLE INDEPENDANT A VENDRE EN BLOC OU A LA DECOUPE
Au coeur d'un pôle tertiaire prisé par les entreprises, BNP PARIBAS REAL ESTATE vous propose à la vente un immeuble de bureaux indépendant, moderne et fonctionnel, agrémenté de 24 places de parking (25.000 /unité).
Situé à l'angle de la rue de Villiers et de la rue Aristide Briand, le 38 Villiers offre une excellente visibilité et un emplacement idéal à proximité des transports, des commerces et de nombreuses entreprises.
Construit sur 8 niveaux, l'immeuble propose des plateaux lumineux et modulables, conçus pour s'adapter aux besoins des utilisateurs grâce à leur configuration en open-space avec très peu de contraintes porteuses.
Les parties communes et les équipements techniques de l'immeuble seront rénovés par le propriétaire.
A NOTER :
Le lot du RDC est vendu loué.
Possibilité d'acquisition en bloc de l'immeuble : nous consulter.
Possibilité de rénovation des parties privatives : nous consulter.
Services & prestations
Aménagements
-
Aménagement des bureaux : Cloisonnés/Ouverts selon les niveaux
-
Hall d'accueil
Equipements
-
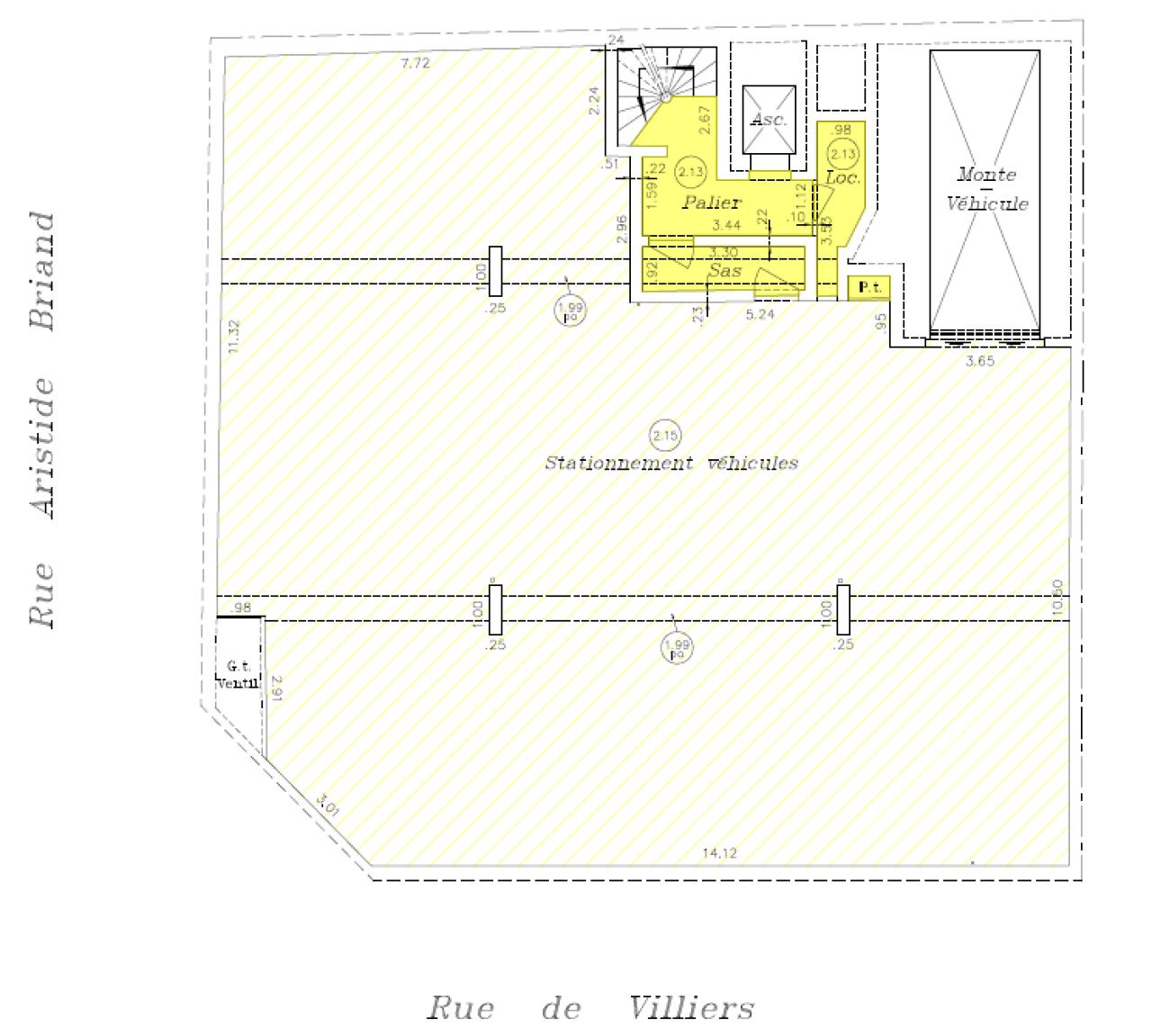
Ascenseurs : 2 du RDC au R+7
-
Climatisation : Par ventilo convecteurs
-
Faux plafond
-
Type de chauffage : Collectif
Prestations de service
-
Parking : Accessibles par monte-voitures
-
Restauration : Espaces cuisine sur plusieurs plateaux
-
Sécurité : Contrôle d'accès
Type / Etat du bâtiment
-
Etat de l'immeuble : Seconde main
-
Immeuble indépendant
Informations complémentaires
-
2 ascenseurs desservant les niveaux










