




Vente Bureau 758 m²
92120 Montrouge
758 m²
Divisible dès 348 m²
à partir de 1 114 880 €
HT/HD
Disponibilité : Nous consulter

Benjamin HECTOR
Description
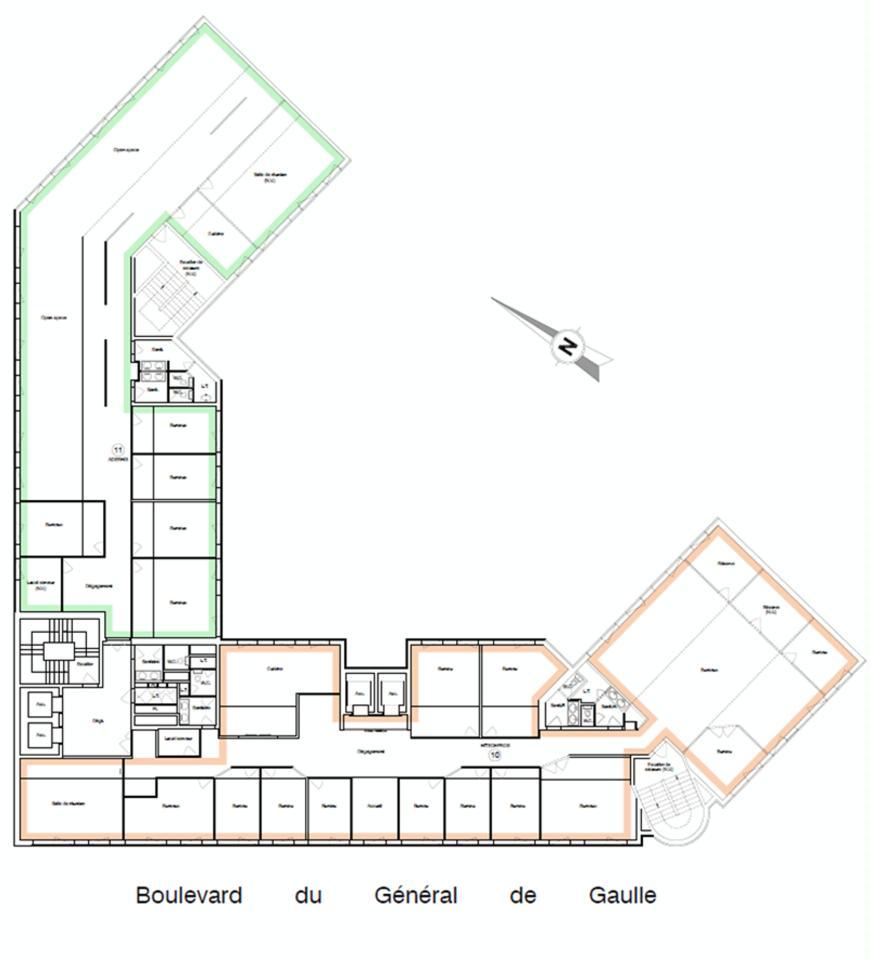
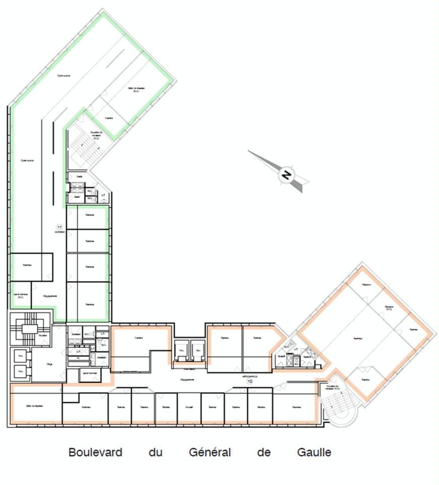
A proximité de la Porte d'Orléans, nous vous proposons d'acquérir un plateau divisible à partir de 348 m² situés au 4ème étage d'un immeuble moderne de Bureaux.
Plan efficace facilement modulable offrant des espaces ouverts et cloisonnés avec salles de réunion et cuisine dans chaque lot. Bureaux en premier jour, quatre ascenseurs, emplacements de parking en sous-sol.
BNP Paribas Real Estate vous propose d'acquérir en bloc ou à la division deux plateaux d'une surface totale de 758,40 m² à Montrouge.
Les locaux se situent au 4ème étage d'un immeuble moderne de bureaux, ils sont divisibles à partir de 348,40 m².
Vous y retrouverez un plan très facilement modulable composé d'espaces ouverts et semi cloisonnés avec cloisonnement vitré amovible, climatisation, salle de réunion, cuisine et sanitaires dans chaque lot.
De plus, l'actif bénéficie de 23 emplacements de parking en sus du prix : 15 000 /u. net vendeur.
Il dispose d'une bonne accessibilité à seulement 10 minutes à pied du métro Mairie de Montrouge, à 10 minutes à pied du métro et tramway Porte d'Orléans et à 3 minutes en voiture de la Porte d'Orléans.
N'hésitez plus et venez découvrir ce bien.
Services & prestations
Aménagements
-
Accueil
-
Aménagement des bureaux : Cloisonnés/Ouverts
-
Hall d'accueil : Hôtesses
-
Sanitaires
Equipements
-
Ascenseurs : 4
-
Climatisation
-
Câblage informatique
-
Faux plafond
-
Type de chauffage : Individuel
Prestations de service
-
Parking
-
Restauration : Cuisine dans chaque lot
-
Sécurité : Contrôle d'accès
Type / Etat du bâtiment
-
Etat de l'immeuble : Seconde main Moderne de Bureaux
-
Immeuble copropriété










