




100-101 Terrasse Boieldieu
92800 Puteaux
4 716 m²
Divisible dès 800 m²
15 091 200 €
HT/HD
Disponibilité : Immédiate

Thomas BUISSON-TOURNIER
Description
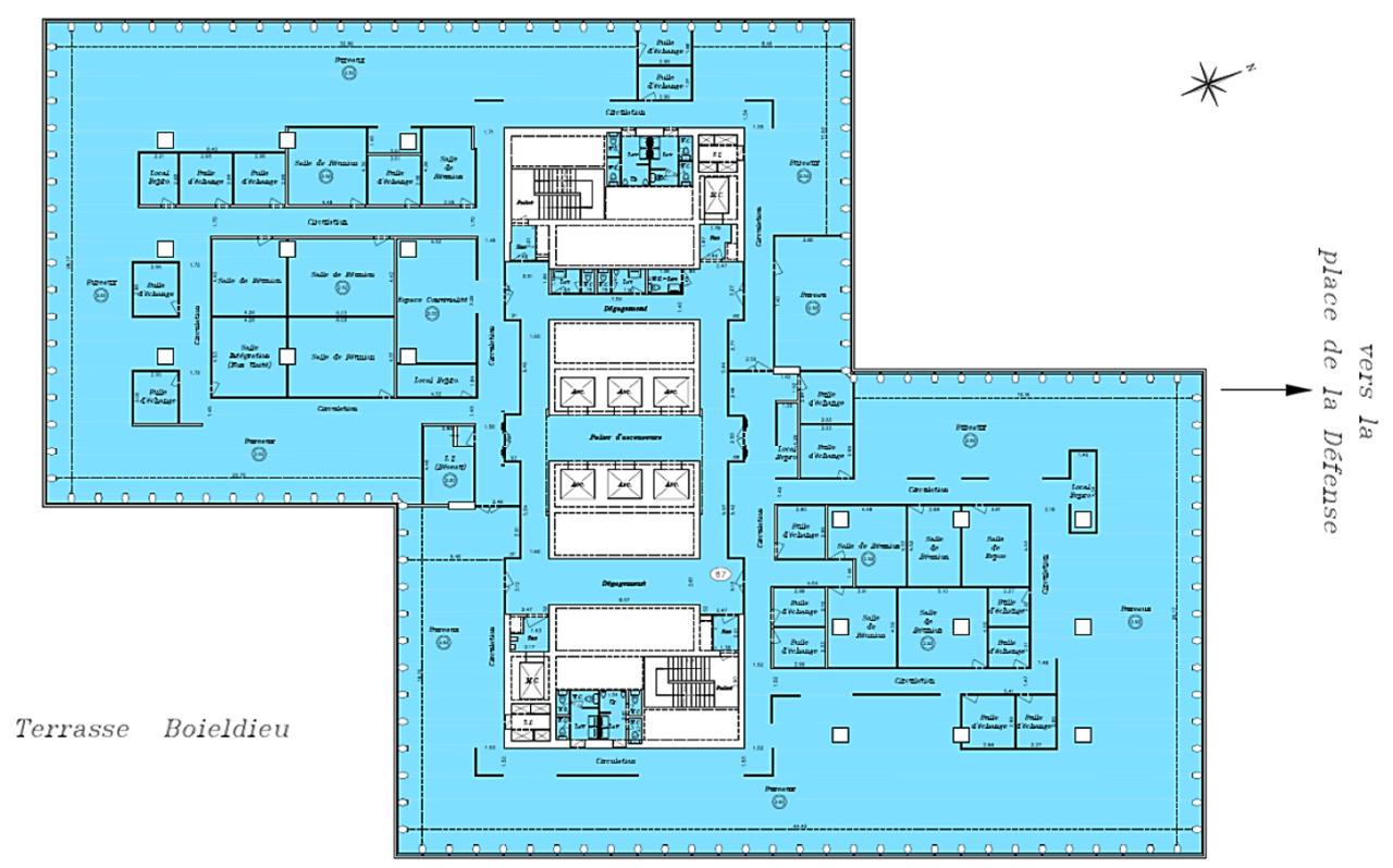
Au sein de la Tour Franklin, donnant sur le Parvis et à quelques minutes à pied du Hub de transports de La Défense, BNP Paribas Real Estate vous propose à la vente des plateaux de bureaux en bon état d'usage, situés aux rez-de-chaussée, 1er et 12e étages. Rationnels et modulables, ces plateaux offrent des espaces de travail traversants et lumineux avec de belles prestations.
UN EMPLACEMENT PRIME
Au coeur de La Défense, plus grand quartier d'affaires européen,
Accessible directement depuis le Parvis,
A moins de 5 minutes à pied du Hub de transports de La Défense : Métro 1, Bus, RER A & E, Transiliens L et U, 10 lignes de bus
A proximité immédiate du CNIT et du Centre Commercial Westfield Les 4 Temps, la Tour Franklin offre une localisation et un environnement de travail exceptionnels.
DES PLATEAUX DE BUREAUX AUX NOMBREUX ATOUTS
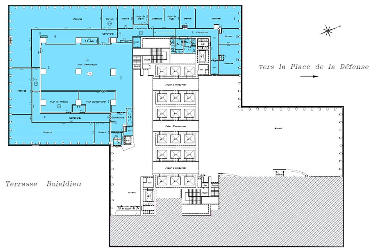
Des espaces de travail, organisés autour d'un noyau central (comprenant les circulations verticales, ascenseurs et sanitaires), fonctionnels et lumineux.
Une configuration efficace permettant un aménagement modulable au gré de vos besoins (cloisonnement amovible)
Le rez-de-chaussée : accès indépendant sur le parvis - HSP à 4,5 m sous dalle - ERP possible
Le 1er étage : accès indépendants possibles depuis le parvis - ERP possible
Le 12e étage : plateau partiellement rénové
De nombreux services au sein de la Tour : plusieurs halls d'accueil, espaces communs rénovés, PC Sécurité et gardiennage, 3 batteries de 6 ascenseurs et deux monte-charges, salles de réunion polyvalentes à l'entresol mises à disposition, Restaurant d'entreprise, cafétéria, Service Courrier, Conciergerie
A NOTER : Surfaces en cours de vérification
Services & prestations
Aménagements
-
Accès Pers. Mobilité Réduite
-
Complexe Salle de réunion : Salles de réunion mutualisées
-
Hall d'accueil : Avec hôtesses
Equipements
-
Ascenseurs : 18 au sein de la Tour
-
Climatisation : Réversible remise à neuf
-
Faux plafond
-
Faux plancher
-
Gestion technique centralisée : & GTB
-
Monte-charge : 2
-
Type de chauffage : Collectif
Prestations de service
-
Cafétéria
-
Conciergerie
-
Parking : Boieldieu à toute proximité
-
Restauration : 2 RIE - Restaurant Club
-
Sécurité : Contrôle d'accès - PC sécurité (24H/24 - 7J/7)
Extérieurs
-
Aire de livraison
Type / Etat du bâtiment
-
Etat de l'immeuble : Etat d'usage
-
Etat des locaux : Rénové
-
IGH / Code du travail
-
Immeuble copropriété
-
Type d'immeuble : Grand Plateau de bon standing
Informations complémentaires
-
Espace détente / Fitness, Fibre optique
-
Service courrier










