




Vente Bureau 1 198 m²
34000 Montpellier
1 198 m²
Divisible dès 82 m²
à partir de 150 000 €
HT/HD
Disponibilité : Immédiate

Rodolphe CHEVALLIER
Description
MONTPELLIER EST - MILLENAIRE - LE MILLENIUM - BUREAUX A VENDRE
À l'Est de Montpellier en plein cœur du parc d'activité du Millénaire, découvrez ces bureaux à vendre de 1 198 m²environ , divisibles à partir de 82 m², en RDC et R+2 de l'immeuble Le Millenium.
Bureaux à vendre au sein de l'immeuble Le Millenium, secteur Est de Montpellier, au coeur du parc d'activité du Millénaire.
La disponibilité des lots est donnée à titre indicatif et est non contractuelle.
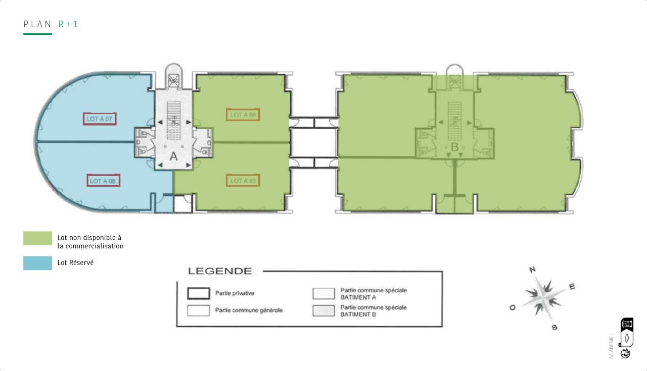
BATIMENT A
Les lots du R+1 sont actuellement occupés avec une libération potentielle à fin 2026, offrant la possibilité d'une occupation par les acquéreurs.
Les lots du R+1 disposent d'une terrasse de 4 m².
BATIMENT B
Les lots du bâtiment B sont actuellement tous occupé et à destination d'une vente investisseurs.
Le lot du R+2 bénéficie d'une terrasse de 71m².
L'entrée dans le bâtiment est sécurisée par un système de badge et un digicode. Un parking public est également disponible.
Le parc d'activité du Millénaire est le plus grand pôle tertiaire de Montpellier avec plus de 7 000 salariés répartis sur près de 1 125 entreprises. Le parc offre une multitude de services grâce à des infrastructures diverses (restaurants, hôtellerie, commerces, piscine, club de fitness...) ou encore le Centre Commercial Odysseum qui se trouvent à quelques minutes seulement.
Idéalement situé, il bénéficie d'une desserte en transports idéale grâce à sa proximité avec l'autoroute A9, la présence de la ligne 1 de tramway et de nombreux bus.
ACCESSIBILITÉ :
Bus lignes n°9 et La Ronde
A9 à 5 minutes
Gare Montpellier Saint Roch à 9 minutes
Gare Montpellier Sud de France à 8 minutes
Aéroport Montpellier Méditerrannée à 8 minutes
Services & prestations
Aménagements
-
Aménagement des bureaux : Cloisonnés
-
Sanitaires : Parties communes
Equipements
-
Ascenseurs
-
Climatisation : Réversible Individuelle
-
Câblage informatique
-
Distribution climatisation : Ventilo convecteur en plafonnier
-
Faux plafond : Dal. fibres minéral.
-
Plinthes techniques périphériques
-
Production climatisation : Autonome
-
Sol bureaux : Dls.thermoplastiques
Prestations de service
-
Parking
-
Sécurité : Badge et digicode
Extérieurs
-
Terrasses - jardins
Type / Etat du bâtiment
-
Etat de l'immeuble : Etat d'usage
-
Etat des locaux : Etat d'usage
Informations complémentaires
-
1 Salle de réunion
-
Restauration et hôtellerie










