




Vente Bureau 791 m²
34070 Montpellier
791 m²
2 250 000 €
HT/HD
Disponibilité : Immédiate

Caroline DE BOISGELIN-ABECASSIS
Description
MONTPELLIER SUD - PLATEAUX DE BUREAUX - GAROSUD - PERIPARK IMMEUBLE DE BUREAUX A VENDRE
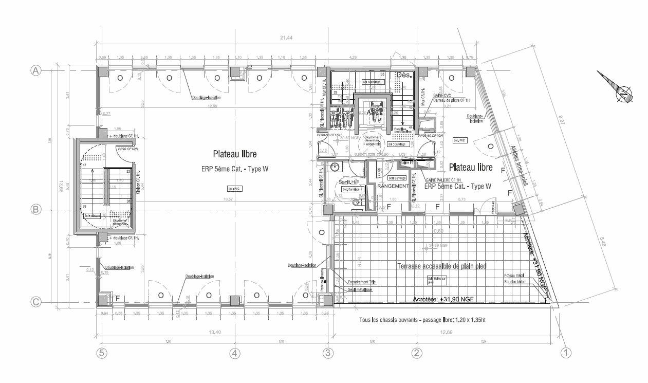
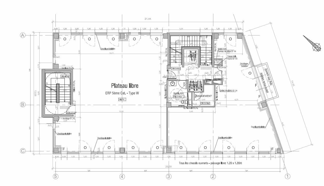
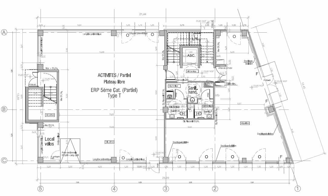
À vendre, bâtiment de bureaux neuf de 791 m² en R+2 au sein de la nouvelle zone d'activité Peripark à Garosud.
Très belles prestations.
Dans la ZAC de Garosud, découvrez ce bâtiment neuf à vendre d'une surface de 791 m² sur 3 niveaux, offrant des prestations haut de gamme et une conception architecturale moderne.
Caractéristiques :
Bureaux avec luminaires encastrés et fenêtres oscillo-battantes avec brise-soleil
Revêtement de sol en dalles thermoplastiques 50x50 cm
Faux plafonds démontables
Sanitaires en carrelage et faïence murale de qualité
Climatisation réversible
La façade harmonieuse allie bureaux et showroom, avec une orientation des bâtiments vers le rond-point pour une visibilité optimale. Le projet respecte les perspectives et la trame végétale environnante, utilisant des matériaux nobles tels que le bardage horizontal de type « proplan ».
Situé à la porte d'entrée ouest de Montpellier, le bâtiment bénéficie d'une localisation stratégique.
En savoir plus sur le quartier Garosud ?
Avec une façade autoroutière de 900 mètres au sud de la métropole, le quartier Garosud a longtemps été la zone de prédilection des entreprises leaders dans les domaines du négoce professionnel et de la logistique. Depuis quelques années, une véritable mutation s'opère avec la tertiairisation progressive du parc.
Ce sont près de 450 entreprises qui ont choisi de s'implanter sur les 115 hectares de Garosud. Fort de ce succès, la commercialisation de son extension est en cours.
Pour compléter son attractivité, de nombreux commerces et services sont à disposition des 7 300 salariés du parc.
Garosud séduit par son accessibilité idéale : À proximité immédiate de l'autoroute A9 et du centre-ville de Montpellier, le parc est également desservi par la ligne 2 du tramway.
Accessibilité :
Bus n°53 "Etienne Mehul"
Tramway : L2 "Victoire" à 15 min
Gare Saint Roch et Gare Sud de France à 14 minutes
A9 sortie n°31 à 5 min
Aéroport de Montpellier à 11 minutes
Services & prestations
Aménagements
-
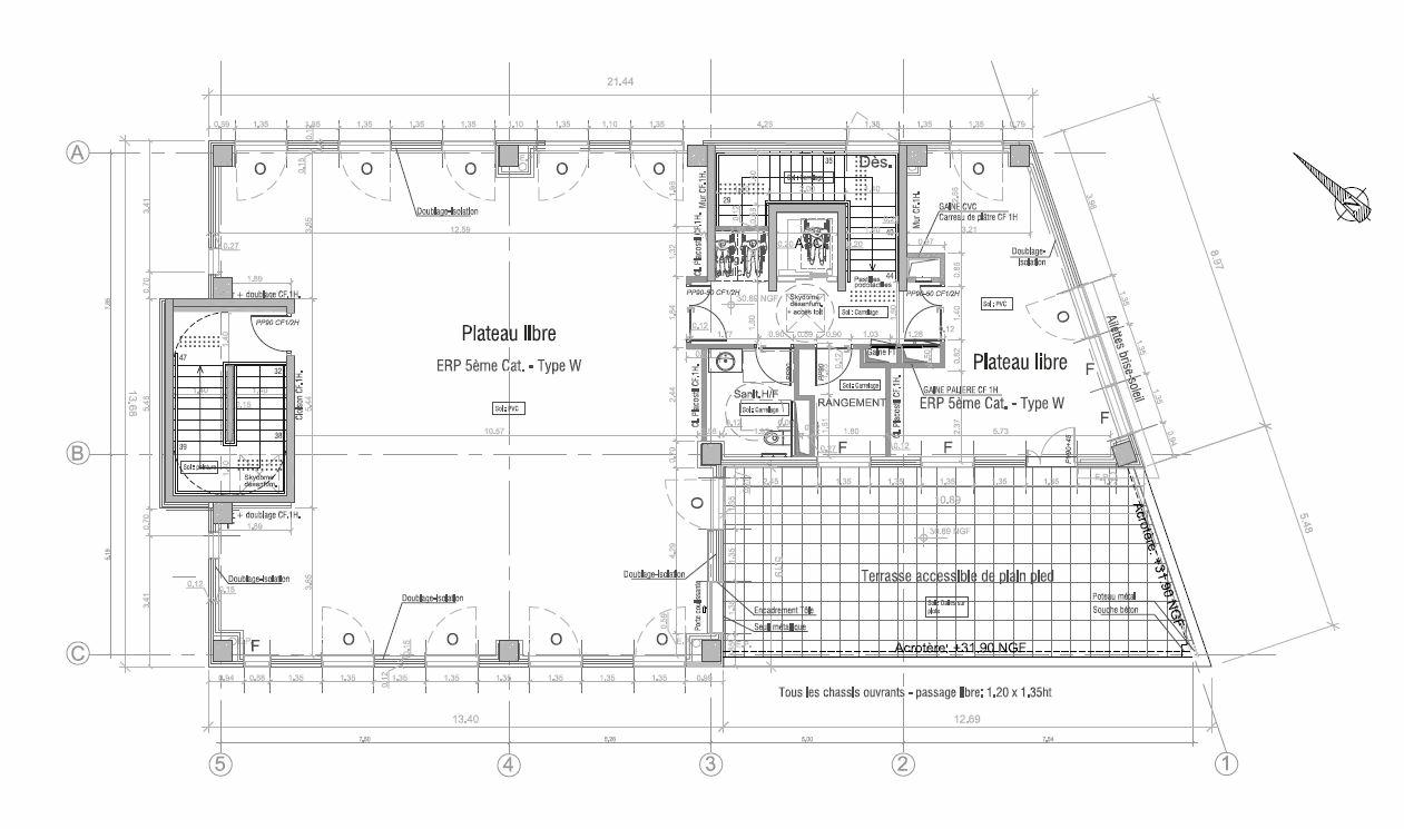
Aménagement des bureaux : Espaces Ouverts
-
Espaces Co-working : A proximité
-
Mezzanine : Dans certains lots
Equipements
-
Ascenseurs : Accessible PMR
-
Charge au sol Rdc : 2000,00 kg/m², 3,00 tonne(s)/m²
-
Climatisation : Réversible en attente
-
Eclairage Bureaux : Luminaires encastrés
-
Faux plafond : Dalles fibre minérale
-
Porte d'accès à quai : Porte d’accès livraison métallique : hauteur 3,50m, largeur 3m
-
Sol bureaux : Moquette en étage
-
Sols du bâtiment : Carrelage dalle 60 x 60
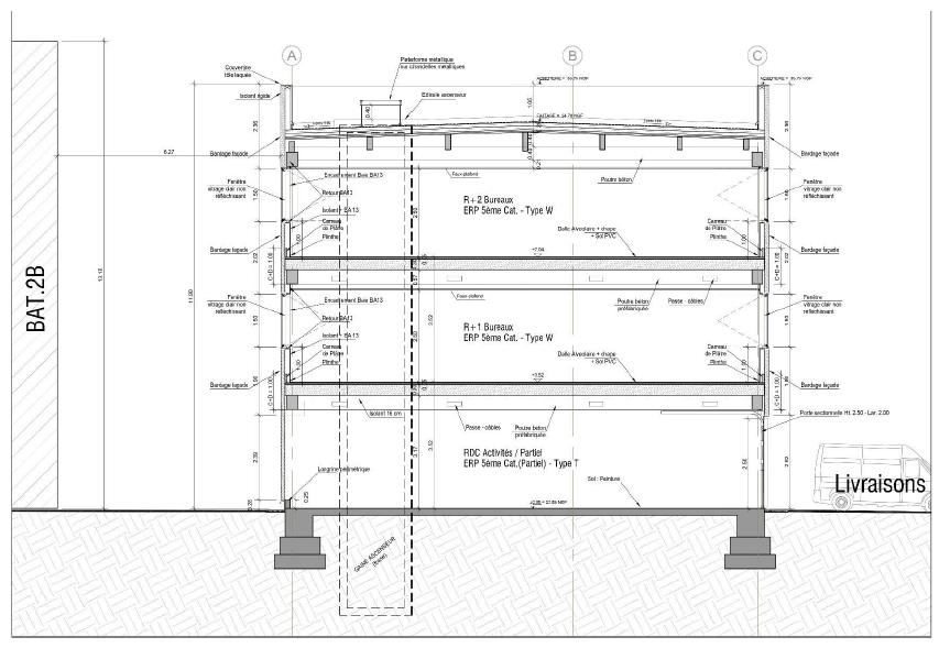
Hauteurs
-
Hauteur sous poutre : 2,70
Prestations de service
-
Capacité de restauration : Cuisine
-
Fitness : A proximité
-
Parking
-
Restauration : Sur site
-
Sécurité : Portail d'accès, Portail sécurisé
Extérieurs
-
Aire de manoeuvre
-
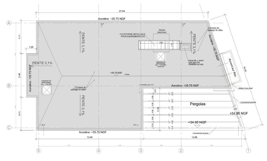
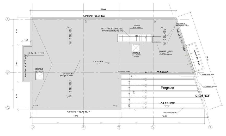
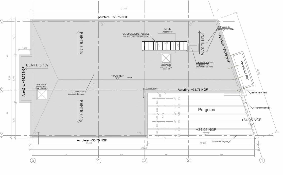
Terrasses - jardins : R+2
Normes, Certifications et Labels
-
Catégorie ERP : Selon les bâtiments
Structure du bâtiment
-
Charpente : Métallique
-
Murs : Bardage double peau
Type / Etat du bâtiment
-
Etat de l'immeuble : Neuf
-
Etat des locaux : Neuf
-
Etat du terrain : Bétonné
Informations complémentaires
-
Brises soleil pour les bureaux et interphone, Signalétique possible










