




Vente Bureau 321 m²
44000 Nantes
321 m²
Divisible dès 132 m²
à partir de 658 650 €
HT/HD
Disponibilité : 30/09/2026

Christine SERRA
Description
À VENDRE – BUREAUX NEUFS – DISPONIBLES JUIN 2026 – QUARTIER SAINT MIHIEL
Dans un immeuble neuf à l'architecture contemporaine et soignée, idéalement situé au coeur du dynamique quartier Saint Mihiel, découvrez la dernière surface de bureaux à la vente, disponible à partir de l'automne 2026.
DESCRIPTIF DES LOTS DISPONIBLES :
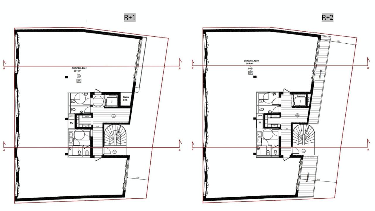
R+1 : 350 m² ERP, idéal professions médicales ou libérales.
R+2 : 320 m² bénéficiant de deux terrasses privatives de 16 m² et 12 m², parfaites pour créer un espace détente ou recevoir en extérieur.
Chaque niveau est divisible en deux, permettant une acquisition à partir d'environ 150 m².
PRESTATIONS DE QUALITÉ :
Les plateaux seront livrés entièrement aménagés, prêts à l'emploi, avec :
Revêtement de sol : moquette ou PVC en fonction de votre besoin
Faux plafonds
Climatisation réversible
Goulottes électriques périphériques (courant fort)
CONFORT ET ACCESSIBILITÉ :
Sanitaires en parties communes, 4 par étage dont 2 accessibles PMR
Accès aux étages par un ascenseur PMR ou un escalier extérieur de standing
Hall ouvert, accueillant et lumineux, ouvrant sur un jardin paysager
Matériaux nobles et durables pour une ambiance qualitative et moderne
Excellent capacitaire : 1/10m²
SERVICES COMPLÉMENTAIRES :
2 places de stationnement en sous-sol par étage
Grand local vélos sécurisé
UN EMPLACEMENT STRATÉGIQUE :
Au pied de l'immeuble : commerces de proximité, restaurants, boulangerie, supérettes
Desservi par les transports en commun : Tramway ligne 2 et Chronobus C2.
Une opportunité rare d'implanter vos bureaux dans un immeuble neuf, pensé pour le confort des utilisateurs et adapté aux besoins des professionnels.
Visite sur le chantier dès aujourd'hui Contactez-nous pour plus d'informations !
Services & prestations
Aménagements
-
Accès Pers. Mobilité Réduite
-
Hall d'accueil
Equipements
-
Ascenseurs
-
Climatisation : Air rafraîchi
Prestations de service
-
Sécurité : Contrôle d'accès
Type / Etat du bâtiment
-
Etat de l'immeuble : Immeuble neuf de bon standing
Informations complémentaires
-
R+1 ERP
-
Terrasses privatives R+2 : 12 et 16 m²
-
Grand local vélos










