




Vente Commerce 113 m²
73000 Bassens
113 m²
278 828 €
HT/HD
Disponibilité : 03/01/2028

Marianne ARTHAUD
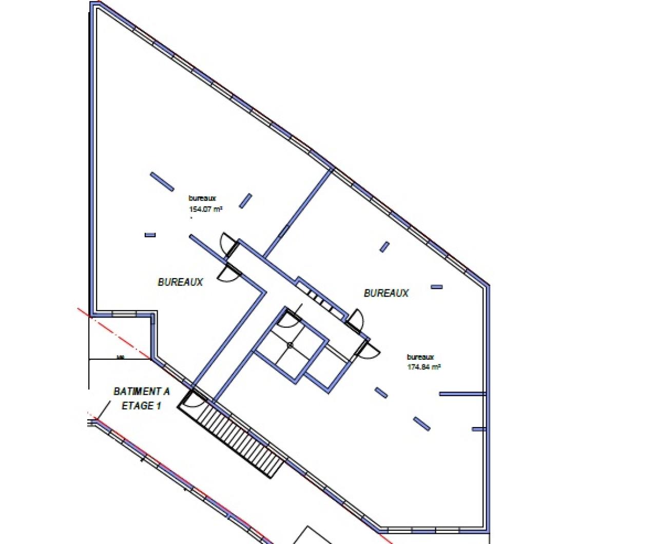
Description
RARE A BASSENS - AXE PRINCIPAL - BUREAUX ET COMMERCE A VENDRE
Nouveau projet immobilier - Bassens 73
Découvrez un programme immobilier neuf idéalement situé au coeur de la zone commerciale de Bassens, sur l'axe principal : l'avenue du Turin, offrant une visibilité exceptionnelle et un accès privilégié à toutes les commodités.
Ce programme vous sera accessible fin 2027/début 2028.
Ce projet mixte allie habitation, commerces et bureaux dans un cadre moderne et fonctionnel :
Commerce en RDC emplacement stratégique à fort passage
Bureaux en R+1 - espaces lumineux et modulables
Parking en sous-sol
Espaces verts paysagers
Local à vélos
Accès direct aux transports en commun et à la voie rapide
Conditions financières :
2 467,50 / m² pour le commerce
12 000 l'unité de parking 3 parking réservé pour le commerce
Conditions de livraison :
Commerce : brut de béton, fluides en attentes
Bureaux : Paysagé - mur placo périphérie blanc, goulotte pour câble périphérie, moquette sol, plafond avec dalle led et cassette de Clim.
Frais d'agence 2% HT du prix de vente global HT à la charge de l'acquéreur en sus du prix.
N'attendez plus pour demander un complément d'information.
Services & prestations
Aménagements
-
Aménagement des bureaux : Cloisonnés/Ouverts
Equipements
-
Ascenseurs
-
Câblage informatique
-
Faux plafond : Dal. fibres minéral.
-
Plinthes techniques périphériques
-
Sol bureaux : Moquette
Prestations de service
-
Parking : Oui, Sous sol
Structure du bâtiment
-
Travaux à réaliser : Fluide en attente



