




Vente Entrepôt Classe A 86 167 m²
28310 Toury
86 167 m²
Prix sur demande
Disponibilité : 12 mois après accord

Eric LECOMTE
Description
TOURY (28)
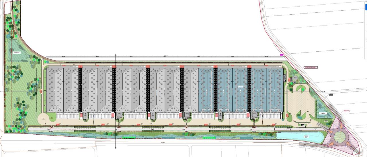
PROJET D'ENTREPÔT LOGISTIQUE - À VENDRE
Nous vous proposons à la vente un projet d'entrepôt logistique d'une surface de 86 167,10 m² environ.
Etat de construction : PC+ICPE Obtenus & purgés. Disponibilité : 12 mois après accord.
ICPE : 1510(A), 1530(A), 1532(A), 2662(A), 2663(A), 2910 (DC), 2925(D)
Situé à 40 kms au nord d'Orléans, proche sortie A10.
Entrepôt neuf.
Services & prestations
Hauteurs
-
Hauteur libre : 11,50 mètre(s)
Normes, Certifications et Labels
-
Autorisation d'exploiter 1 : 1510 1530, 1532, 2662, 2663
-
Autorisation d'exploiter 2 : 2925, Oui
-
Certification : BREEAM
Structure du bâtiment
-
Charpente : Bois
-
Couverture : Bac acier isolé
-
Murs : Bardage double peau
Equipements
-
Charge au sol Rdc : 5,00 tonne(s)/m²
-
Eclairage intérieur : LED
-
Eclairage naturel : Zénithal
-
Porte d'accès plain-pied : 4 rampes
-
Porte d'accès à quai : 112
-
Réseau Incendie Armé
-
Source chauffage : Pompe à chaleur
-
Sprinklers
Prestations de service
-
Parking : 378 Places
Extérieurs
-
Aire de manoeuvre : 38 ml
-
Raccordement fer
Informations complémentaires
-
50 places PL
-
Embranchable fer
-
Pnneaux Photovoltaïques










