




Vente Entrepôt Classe A 25 276 m²
84300 Cavaillon
25 276 m²
Prix sur demande
Disponibilité : 24 mois après accord

Mathieu PLANTIER
Description
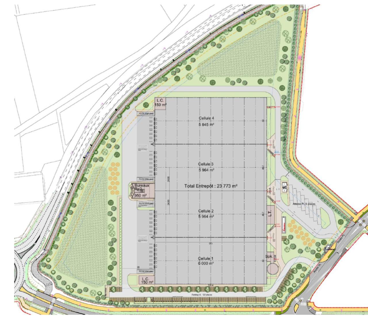
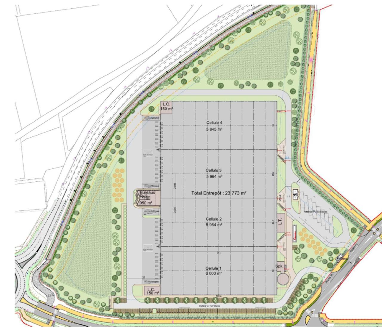
CAVAILLON (84)
PROJET ENTREPÔT LOGISTIQUE - À VENDRE
Sur un foncier de 66 568 m² au sein du Parc multi-activités Des Hauts Banquets, nous vous proposons à la vente (en VEFA, BEFA possible) un projet d'entrepôt logistique d'une superficie d'environ 25 276 m². Situé en bordure de la Durance et à proximité de l'échangeur de l'A7, le site est au barycentre du triangle Lyon-Montpellier-Marseille. Site labellisé Biodivercity. Certification BREEAM Excellent. Etat de construction : Projet sans PC. Disponibilité : 24 mois après accord.
Services & prestations
Hauteurs
-
Hauteur libre : 11,50 mètre(s)
-
Hauteur sous porte plain-pied : 4,60 mètre(s)
Normes, Certifications et Labels
-
Autorisation d'exploiter 3 : 1510, 1511, 1530, 1532, 2662, 2663-1, 2663-2
-
Certification : BREEAM
Equipements
-
Charge au sol Rdc : 5,00 tonne(s)/m²
-
Eclairage Bureaux : Par dalles LED
-
Eclairage intérieur : LED
-
Porte d'accès plain-pied
-
Porte d'accès à quai : 1 pour 1 000 m²
Prestations de service
-
Parking : 122 Places, 8 Places
Aménagements
-
Sanitaires : Et vestiaires
Informations complémentaires
-
Centrale photovoltaïque en toiture, Plateau de bureaux paysagé chauffé et rafraîchi










