




7 Rue de la Papeterie
67590 Schweighouse-sur-Moder
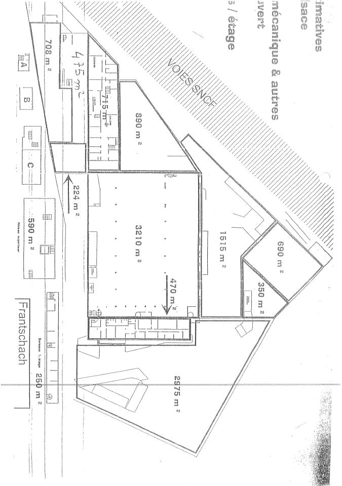
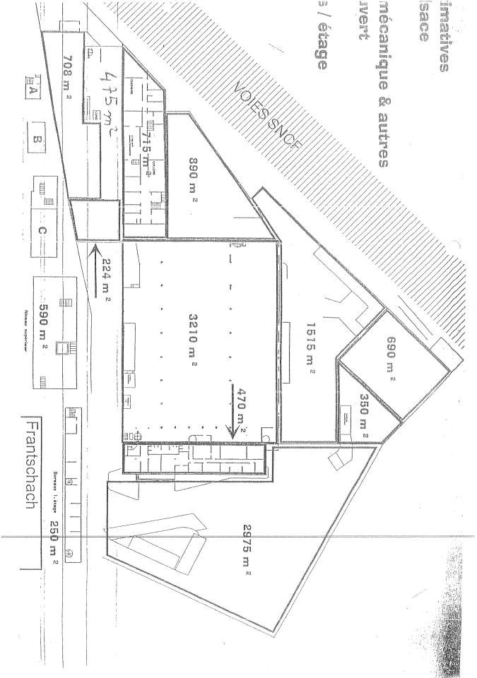
11 500 m²
2 875 000 €
HT/HD
Disponibilité : 01/01/2027

Josquin PETASSOU
Description
SCHWEIGHOUSE-SUR-MODER - BAS-RHIN (67)
Ensemble immobilier industriel à vendre - Réf OVACT2534996
BNP PARIBAS REAL ESTATE vous propose à la vente cet ensemble immobilier situé sur la commune de SCHWEIGHOUSE-SUR-MODER, d'une surface de bâti d'environ 11 500 m², dont 11 000 m² d'entrepôts/ateliers et 500 m² de bureaux, situé sur un terrain de presque 1,8 hectares. Le bien est équipé d'une trentaine de places de parking.
Cet ensemble immobilier à vendre se trouve au coeur de la zone d'activité de Schweighouse sur Moder qui est un pôle économique stratégique sur le secteur nord de Strasbourg.
Situé à l'ouest de Haguenau et à proximité des grands axes de l'Alsace du Nord, la zone d'activités de Schweighouse-sur-Moder s'étend sur plus de 120 hectares et accueille environ 160 entreprises, générant près de 2 600 emplois. Elle s'affirme comme un site stratégique pour l'implantation d'activités industrielles, artisanales, logistiques ou commerciales, avec un accès facilitant les échanges régionaux.
Accessibilité
À seulement quelques minutes de la gare de Schweighouse-sur-Moder : un arrêt TER desservant la commune, avec parking
Arrêts de bus reliés au réseau RITMO (ligne 1 et ligne 11) assurant des liaisons fréquentes vers Haguenau et les zones voisines
À proximité des grands axes routiers : A4 et RN62
Services et environnement
Restauration : points de vente, boulangeries, restauration rapide, offre diversifiée dans la zone commerciale Aushopping
Commerces de proximité : hypermarché, galerie commerciale, enseignes nationales
Équipements disponibles : crèche, centre culturel et sportif, espaces cowroking
Services aux entreprises : bornes de recharge, fibre optique et haut débit, point relais colis
La zone d'activités de Schweighouse-sur-Moder constitue un emplacement stratégique pour l'implantation d'entreprises en quête d'accessibilité, de flexibilité et de services. Elle conjugue un maillage de transports efficace, des infrastructures adaptées aux besoins industriels et logistiques, et un environnement économique favorable. Pour toute entreprise souhaitant se développer dans l'agglomération de Haguenau ou l'axe nord de Strasbourg, ce site offre une solution opérationnelle durable.
Quelques entreprises implantées : Auchan, Intersport, Chaussea, Besson, Brico dépôt, Jouet Club, Cultura, Renault, Fitness Park, BUT, Maison du Monde, Grand frais, Kiabi, Ibis, Mars, Match, Orchestra, Norma, Point S
Contactez-nous pour plus d'informations !
Services & prestations
Equipements
-
Faux plafond
-
Plinthes techniques périphériques
Type / Etat du bâtiment
-
Etat de l'immeuble : Seconde main
-
Immeuble indépendant
Aménagements
-
Bureaux cloisonnés
-
Hall d'accueil
-
Sanitaires










