




Vente Local d'activité 3 832 m²
34830 Jacou
3 832 m²
5 500 000 €
HT/HD
Disponibilité : Immédiate

Rodolphe CHEVALLIER
Description
MONTPELLIER NORD - À VENDRE - JACOU - ZAE CLEMENT ADER - LOCAUX D'ACTIVITÉ ET DE STOCKAGE
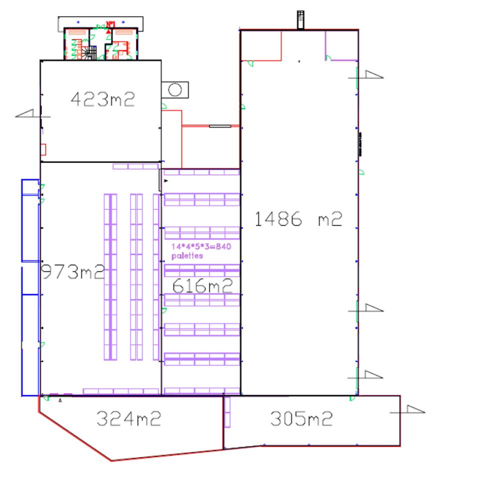
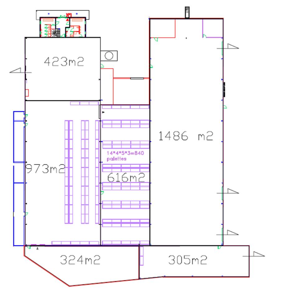
Sur la commune de Jacou, dans la ZAE Clément Ader, découvrez ce programme de locaux mixtes répartis sur 2 bâtiments d'une surface de 3 832 m² environ, sur un foncier de 9 405 m².
Ce site s'articule autour un bâtiment principal de 1 895 m² de locaux d'activité et de bureaux, complété par une extension de 1 937 m² de locaux d'activité et de stockage.
Ce bien dispose de 71 places de parkings extérieurs sur un site clos et goudronné.
La configuration de cet actif et sa réserve foncière offrent de nombreuses possibilités (clé en main, extension etc).
SURFACE
Bâtiment 1 de 1895 m² dont 1400 m² de locaux d'activé, locaux sociaux et 495 m² de Bureau.
Bâtiment 2 de 1 937 m² de locaux d'activité et de stockage.
PRESTATION
Locaux activité et stockage
Bardage métallique
Accès Poids Lourds
Espace de livraison
Grande hauteur sous plafond
Dalle Béton
Porte à quai
Locaux sociaux
Sol Carrelage
Sanitaires
Douches
Kitchenette sur l'extension
Bureaux
Bureaux Cloisonnés
Cloisonnement amovible
Sol PVC et carrelage
Faux plafond
Dalles fibre minérale 6060
Fibre optique
- Kitchenette
- Sanitaire
INFORMATION ANNEXES
Date de construction bâtiment 1 : 1997
- Date de construction bâtiment 2 : 2004
SECTEUR ZAE CLEMENT ADER
Situé à l'entrée sud Est de la ville, la ZAE de Clement ader est une zone mixte accueillant principalement des TPE/PME, de l'artisanat, du service aux entreprises et de la haute technologie. Des acteurs majeurs de la santé et de la technologie s'y ont implantés ainsi que de nombreux services de proximité.
Elle bénéficie d'une excellente connexion routière avec le LIEN (A75/A9) et la ligne 2 du Tramway (arrêt Jacou ou gorges Pompidou)
ACCESSIBILITÉS :
Accès direct autoroute A9 et des principaux axes routiers
Accès A75 via le LIEN en 20 minutes
Gare TGV Montpellier Saint Roch à 20 minutes
Gare TGV Sud de France à 25 minutes
Aéroport Montpellier Méditerranée à 25 minutes
Bus : n°22 arrêt « De Bocaud » 4 minutes à pied
Tramway Ligne 2 - Arrêt "Jacou" à 7 minutes à pied
Services & prestations
Accès véhicules
-
Accessibilité type véhicules : Camionnettes, Tous porteurs
Equipements
-
Faux plafond : Dal. fibres minéral. 60x60
-
Porte d'accès à quai
-
Sol bureaux : Carrelage et Dalles Thermoplastiques, Moquette
-
Sols du bâtiment : Béton
Prestations de service
-
Parking : 71 Places en extérieur
Aménagements
-
Locaux sociaux
Extérieurs
-
Aire de manoeuvre
-
Aire de stockage extérieure










