




Vente Local d'activité 916 m²
54340 Pompey
916 m²
950 000 €
HT/HD
Disponibilité : Immédiate

Vincent BLASZCZAK
Description
LOCAUX D'ACTIVITÉ A VENDRE
POMPEY réf. OVACT2422393
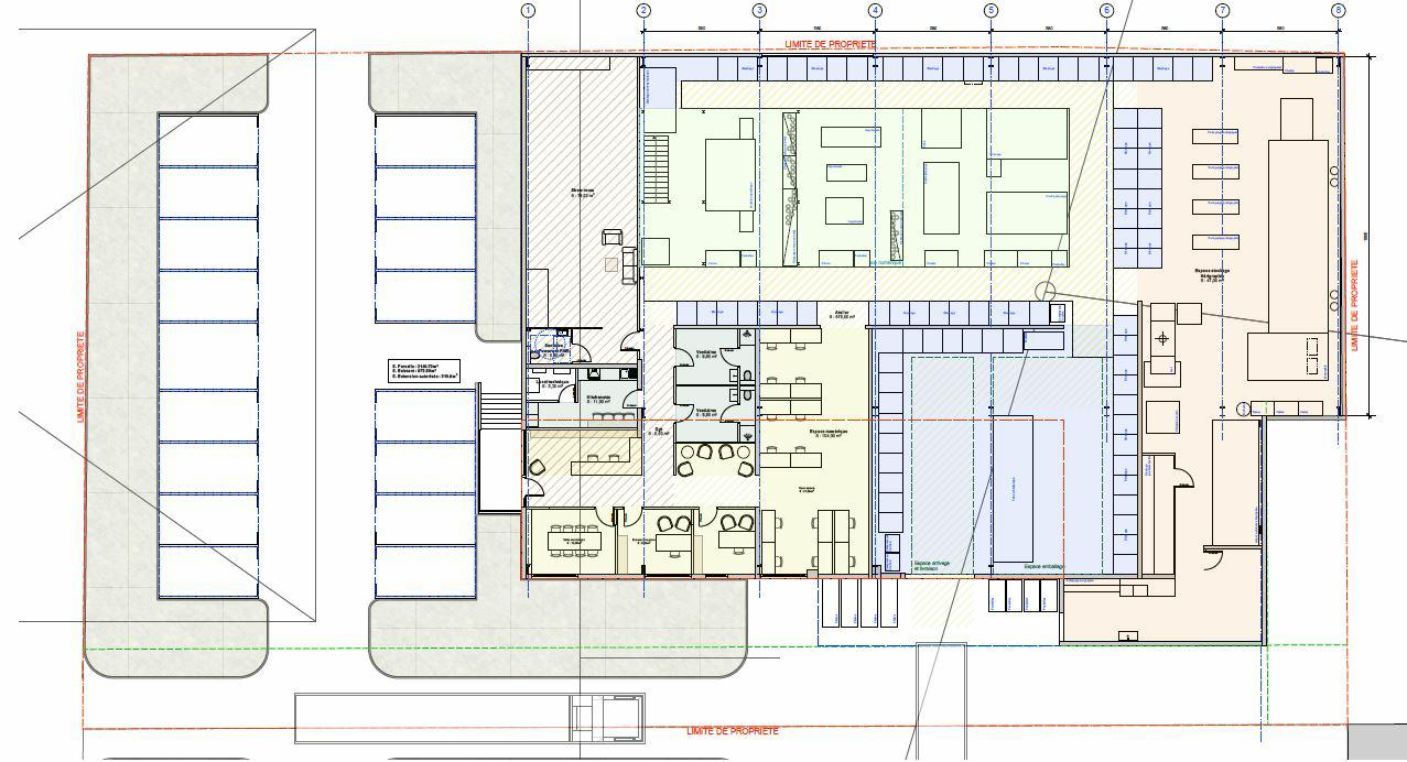
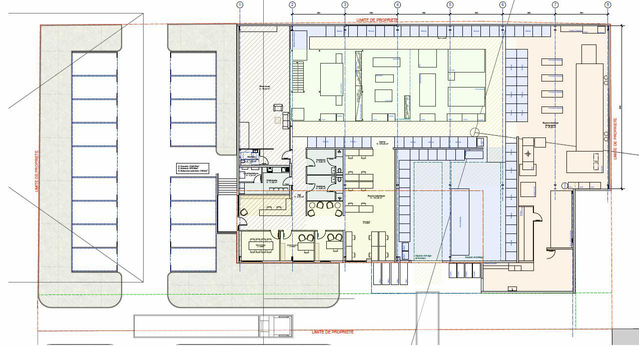
Exclusif - A vendre - un local d'activité d'une surface totale de 916 m² environ au sein de la Z.I de POMPEY.
BÂTIMENT D'ACTIVITÉ A VENDRE - POMPEY- 916 m²
Nous vous proposons à la location des locaux d'activités de 916 m² environ, composés de 575 m² de dépôt, de 151 m² de mezzanine et de 190 m² environ de bureaux.
Ce bâtiment se situe en plein coeur de la Z.I de Pompey, sur l'ancien site des aciéries de Pompey, le parc Eiffel constitue le premier parc industriel et urbain de Lorraine. Entre hautes technologies, industrie et logistique, cette zone d'activité économique de 140 hectares compte 242 sociétés et emploie actuellement 5500 personnes.
Sur un site sécurisé et clos, ce local d'activités apportera à votre activité les prestations nécessaires.
Caractéristiques
- Bâtiment indépendant
- Entrepôt/ Atelier et Mezzanine
- Hauteur sous poutre : 5 m max
- Bureaux : 190 m²
- Parking : 20 places extérieures
- Sites clos et sécurisé
La commune de Pompey dispose d'une excellente desserte, elle est à proximité des axes autoroutier et du centre-ville de Nancy qui n'est qu'à quelques kilomètres.
Accessibilité
- Axes autoroutier : A31 & A33
- Gare SNCF de Pompey : 900 m
- Gare SCNF de Nancy : 20 mins
- Gare Lorraine TGV : 20 mins
- Aéroport Luxembourg-Findel : 1h20
Conseiller en Immobilier d'Entreprise, BNP PARIBAS REAL ESTATE TRANSACTION vous accompagne dans votre recherche de bureaux, locaux d'activités et entrepôts logistiques en Meuthe-et-Moselle, à la location et à la vente.
Services & prestations
Hauteurs
-
Hauteur sous poutre : 5,00 mètre(s) max
Equipements
-
Puissance électrique : Tarif Jaune 124,00
Prestations de service
-
Parking : 20 Places
Informations complémentaires
-
1 porte sectionnelle, Site clos et sécurisé : clôture et portail d'accès commun










