




Vente Local d'activité 1 100 m²
69330 Meyzieu
1 100 m²
2 080 000 €
HT/HD
Disponibilité : Immédiate

Louis-Martin TANTARO
Description
MEYZIEU (69)
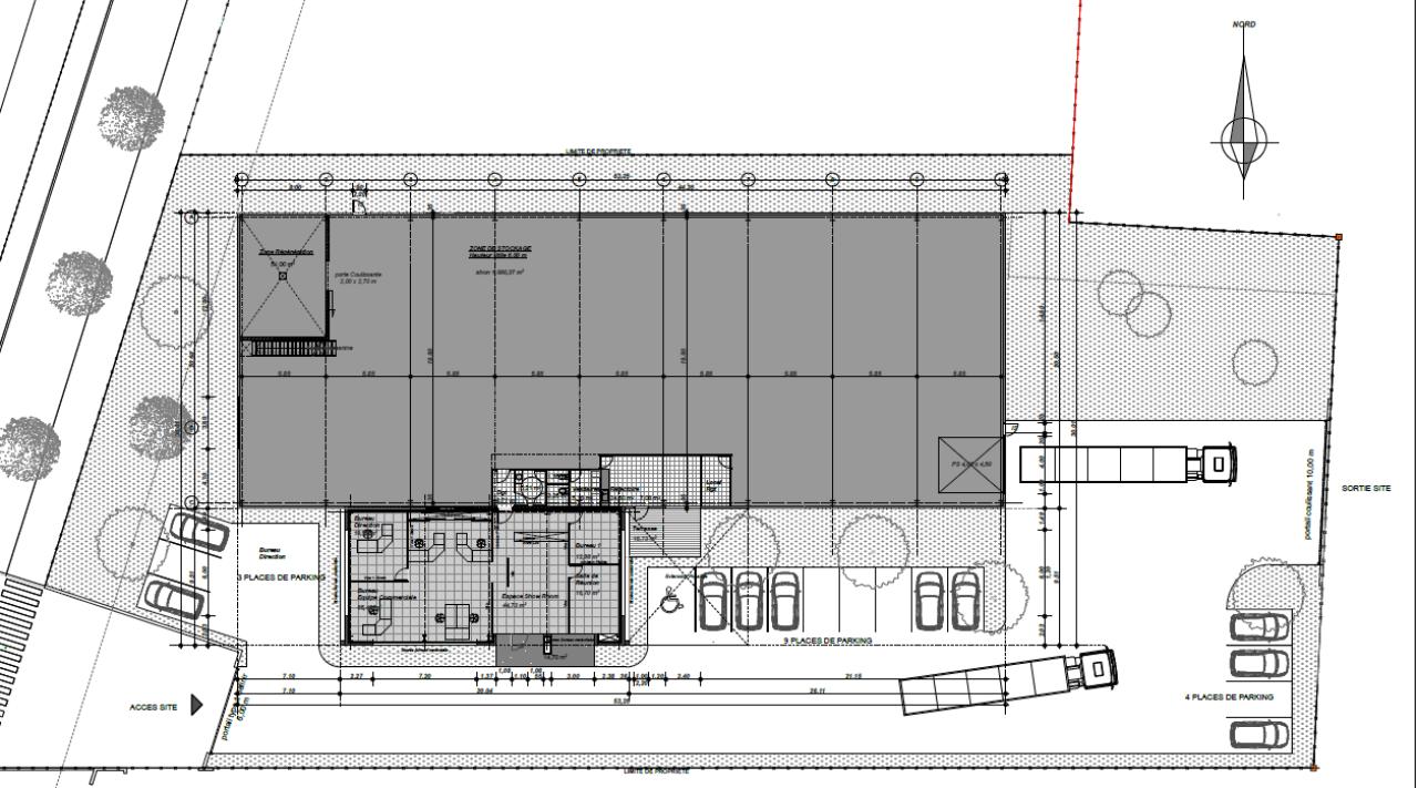
Locaux d'activité à louer sur Meyzieu (69) - A VISITER RAPIDEMENT ! BNPPRE vous propose un bâtiment indépendant idéalement placé au cœur de la zone industrielle de Meyzieu, à proximité immédiate des axes routiers. Ce local d'activité à louer ou à vendre est idéal pour les activités de stockage grâce à sa zone d'entrepôt sans poteaux, son accès poids lourds et sa hauteur.
Implantés au coeur de la zone d'activités de Meyzieu, ces locaux bénéficient d'un emplacement stratégique à l'est de l'agglomération lyonnaise, à proximité immédiate de la Rocade Est (N346) et des autoroutes A43 / A432, permettant un accès rapide vers Lyon, l'aéroport Saint-Exupéry et les grands axes régionaux.
Le site profite d'une excellente desserte en transports en commun, avec la station de tramway T3 Meyzieu Z.I. et plusieurs lignes de bus TCL (28, 67, 128, ZI2) à quelques minutes à pied, facilitant les déplacements du personnel.
L'environnement est qualitatif et dynamique, accueillant de nombreuses entreprises industrielles, logistiques et tertiaires.
Services & prestations
Hauteurs
-
Hauteur libre : 7,00 mètre(s)
Accès véhicules
-
Accessibilité type véhicules : Tous porteurs
Equipements
-
Climatisation : Réversible
-
Câblage informatique
-
Eclairage Bureaux : Luminaires encastrés
-
Eclairage intérieur : Néon
-
Eclairage naturel : Skydomes
-
Fenêtres
-
Fluides en attente : Gaz
-
Plinthes techniques périphériques
-
Porte d'accès plain-pied : 1
-
Sol bureaux : Dls.thermoplastiques
-
Sols du bâtiment : Résine
-
Source chauffage : Gaz
-
Type de chauffage : Individuel
Type / Etat du bâtiment
-
Etat de l'immeuble : Récent
-
Etat du terrain : Goudronné, Voirie lourde
-
Immeuble indépendant
Structure du bâtiment
-
Charpente : Métallique
-
Couverture : Bac acier isolé
-
Murs : Bardage double peau
Prestations de service
-
Parking : Oui, Oui
Aménagements
-
Aménagement des bureaux : Cloisonnés
-
Locaux sociaux : Sanitaires, Vestiaires
-
Mezzanine
-
Sanitaires
Extérieurs
-
Aire de manoeuvre
Informations complémentaires
-
Terrain 3 500 m²










