



Espace de coworking
33800 Bordeaux
130 postes
Prix sur demande
Disponibilité : Immédiate

Astrid KSON
Description
COWORKING A LOUER A BORDEAUX EURATLANTIQUE
Coworking à louer à Bordeaux
Au coeur du quartier hyperconnecté "Amédée Saint-Germain", bureaux à la location au sein d'un espace de coworking dans un environnement dynamique (commerces, restauration, var à vins).
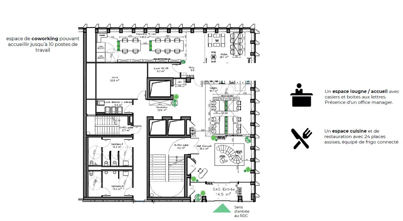
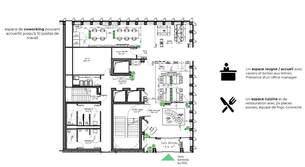
Espace d'une surface globale de 1 600 m² répartis sur 3 niveaux proposant des bureaux privatifs, espace de coworking, salles de réunions
Services & prestations
Aménagements
-
Aménagement des bureaux : Cloisonnés/Ouverts
-
Complexe Salle de réunion
-
Espaces Co-working : 130 Places
Equipements
-
Ascenseurs
-
Eclairage Bureaux : Luminaires encastrés
-
Sol bureaux : Moquette
Prestations de service
-
Cafétéria
Type / Etat du bâtiment
-
Etat de l'immeuble : Neuf
-
Etat des locaux : Neuf
-
Immeuble indépendant
Informations complémentaires
-
WIFI haut débit
-
Mobilier de bureau ergonomique










