




Rue Paysage
67810 Holtzheim
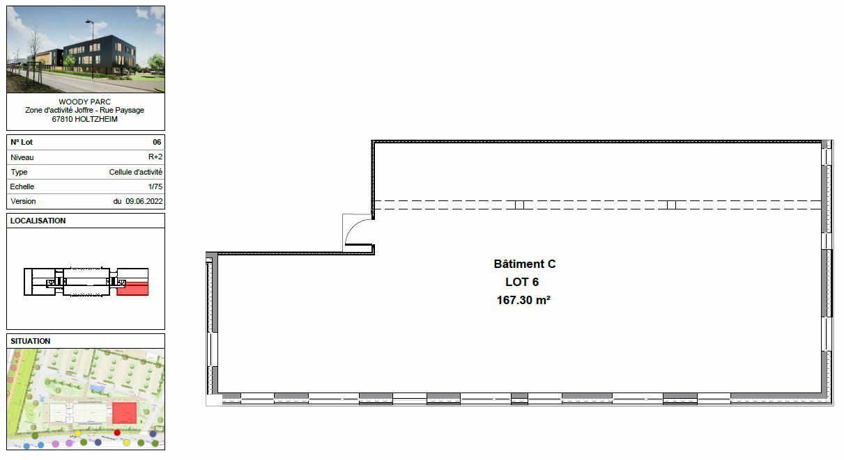
1 007 m²
Divisible dès 86 m²
155 €
HT/HC/m²/an
Disponibilité : Immédiate

Nalan KOLAT
Description
HOLTZHEIM ZA JOFFRE - LOCATION
BUREAUX REF. OLBUR2309398
LOCATION: Immeuble de BUREAUX neufs d'une surface d'environ 1 000 m², répartis sur trois étages. Ils sont divisibles et modulables à partir d'environ 85 m². Le rdc plain-pied de 180 m² se compose de deux lots, 85 m² et 100 m² environ. Le R+1 et R+2 disposent une surface de 409 m²/niveau, se composant d'un lot de 221 m² et 188 m² PCI environ/étage. Les bureaux sont en open-space, aménagés, climatisés, disposant un point d'eau pour la création d'une kitchenette. Plusieurs lots peuvent être loués ensembles. Grand parking extérieur, accès PMR par ascenseur, fibre optique. Disponibilité immédiate.
STRASBOURG-SUD, à HOLTZHEIM, venez découvrir cet immeuble neuf en R+2 à usage de BUREAUX. Ce bâtiment construit selon les normes de construction RT 2020 cummule une surface d'environ 4 200 m² dont 3 200 m² sont déjà loués à une société réputée.
Il est situé dans la zone d’activités Joffre, proche d'aéroport d'Entzheim. Cette zone située à proximité d'aéroport d'Entzheim, a été créée fin des années 90 sur 32 ha, puis son extension de 23 ha pour aboutir à une surface globale de 55 ha en 2018.
Les entreprises présentes sont à vocation artisanale et/ou industrielle (PME-PMI), et les grandes sociétés présentes sont par exemple les Abattoirs, le Centre de Tri Postal et Kuehne Nagel.
Sa position est stratégique en termes de desserte (A35, Rd400 et C.O.S) et de développement de l’Ouest de l’agglomération.
Les informations sur les risques auxquels ce bien est exposé sont disponibles sur le site Géorisques : www. georisques. gouv. fr
N'hésitez plus et contactez BNP PBRE pour organiser une VISITE!
Services & prestations
Aménagements
-
Hall d'accueil : Collectif
-
Sanitaires : Parties communes Sur chaque palier
Equipements
-
Ascenseurs : 1
Prestations de service
-
Capacité de restauration : Restaurant inter-entreprises
-
Parking
Type / Etat du bâtiment
-
Etat de l'immeuble : Neuf
Informations complémentaires
-
Fibre, Hauteur sous plafond des locaux : 2.60 m
-
Espaces verts arborés et nombreux parking vélos, Les locaux sont livrés bruts, non cloisonnés afin de créer ensemble
-
Parking permettant l’installation de bornes de recharge pour véhicules électriques










