




Location Bureau 375 m²
13290 Aix-en-Provence
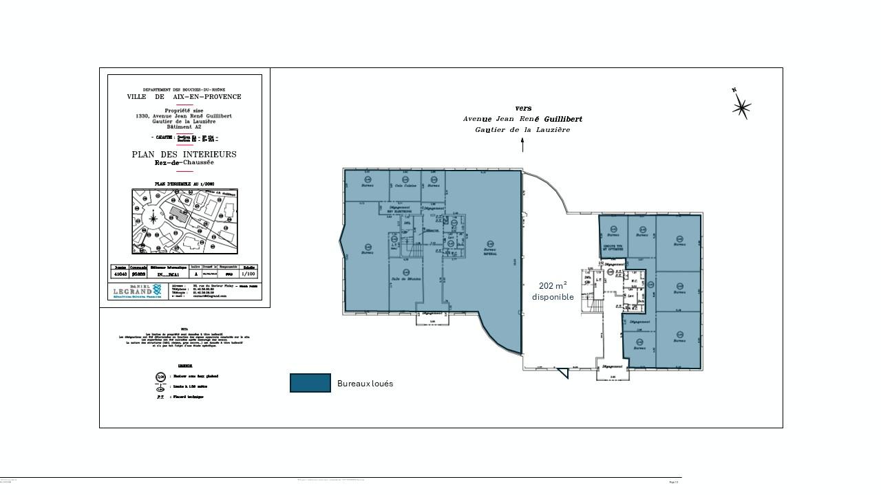
375 m²
Divisible dès 168 m²
à partir de 145 €
HT/HC/m²/an
Disponibilité : Immédiate

Lena POWROZNIK
Description
EUROPARC DE PICHAURY - BAT A2
Nous vous proposons des surfaces à usage de bureaux à louer au RDC et R+1 dans un parc tertiaire. Son environnement boisé et sa vue dégagée vous offre une très bonne qualité de vie au travail. Le local est en open space avec un bureau cloisonné. Il est équipé de la climatisation réversible en faux plafond. Places de parking privatives comprises dans le loyer.
OLBUR2421612
LOCATION BUREAUX – AIX EN PROVENCE – BAT A2
BNP Paribas Real Estate vous propose à la location, une surface de 842 m² de bureaux divisible dès 168 m² et dispersés en 4 lots en RDC et R+1 à 145 €/m²/an HT HC. Cette offre se, située au cœur de l’Europarc Pichaury, qui offre un environnement boisé avec une vue dégagée.
Services de l’immeuble et caractéristiques :
- Bureaux en open space & 1 bureau cloisonné
- Environnement calme et agréable
- Climatisation réversible
- Plinthes techniques périphériques
- 30 places de parking au total
Un emplacement privilégié accessible facilement via les axes routiers, autoroutiers et les transports en commun. Autour, vous trouverez des espaces de restauration, un hôtel, des commerces, des banques, des médecins…
Accessibilité :
- A7, D9, A51, A8
- Aéroport Marseille Provence à 15 minutes en voiture
- Gare SNCF Saint Charles à 10 minutes en voiture
- Nombreuses lignes de bus : 101, 15, 161, 191, 211, 241, L053
Services & prestations
Aménagements
-
Aménagement des bureaux : Espaces Ouverts
-
Bureaux cloisonnés : 1
-
Sanitaires : Parties communes
Equipements
-
Climatisation : Réversible PAC air
-
Plinthes techniques périphériques : Avec cablage
-
Sol bureaux : Parquet










