




Tour Elithis ARSENAL
67 Avenue Jean Jaurès
21000 Dijon
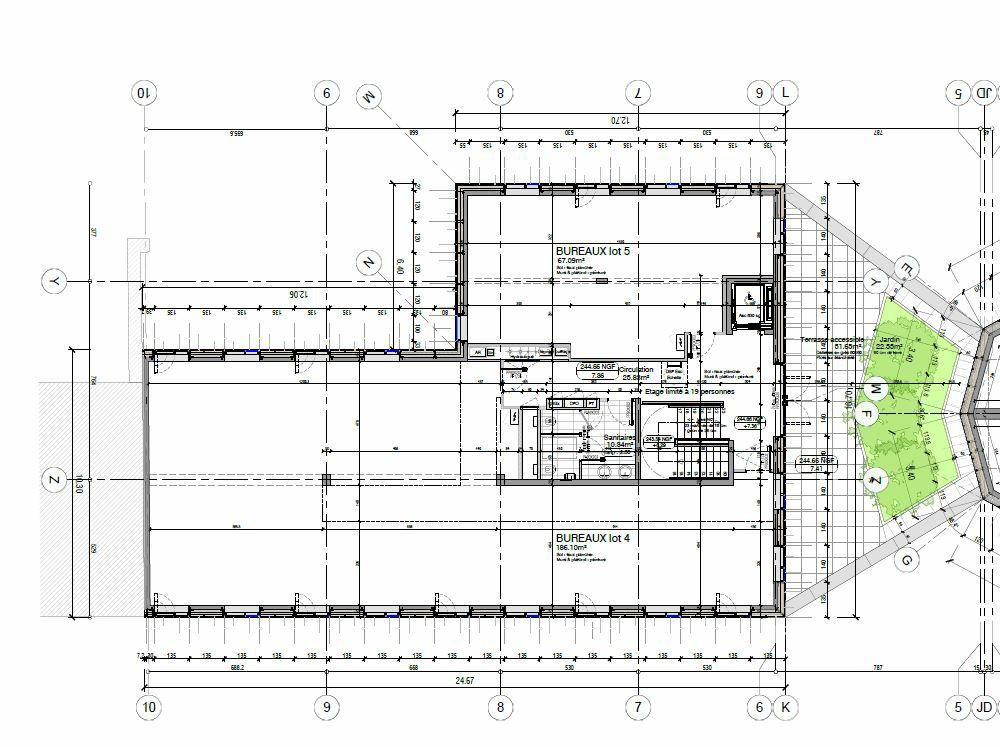
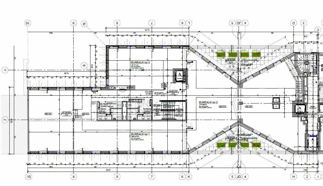
654 m²
Divisible dès 76 m²
à partir de 180 €
HT/HC/m²/an
Disponibilité : Immédiate

Charles LUCIANI
Description
DIJON
AVENUE JEAN JAURES
Au sein de l'écoquartier ARSENAL, dans un immeuble neuf à usage de bureaux et d'habitation, 654m² environ de bureaux à louer, divisibles à partir de 76 m² env.
Possibilité de louer des places de parking extérieurES en sus.
IMMEUBLE NEUF DANS L'ECOQUARTIER ARSENAL Location de bureaux.
L'Ecoquartier de l'Arsenal, quartier en pleine évolution, s'inscrit dans le projet Grand Sud visant à métamorphoser l'entrée sud de Dijon.
Il a été conçu afin de permettre une mixité générationnelle et fonctionnelle (logements, bureaux, services, commerce, etc.).
Différents équipements publics, dont la Minoterie et le Jardin de l'Arsenal déjà existants, contribuent à la vie et à l'animation du secteur. Une crèche privée, la Calypso, a d'or et déjà pris place au sein du site.
Situés au coeur d'un environnement moderne et durable, l'immeuble neuf, à usage mixte (bureaux et habitation), offre de nombreux services et répond aux meilleurs standards en terme de labels environnementaux.
L'ensemble immobilier est orienté à la lumière du jour et offre de grands plateaux permettant une grande flexibilité d'aménagement, pour accueillir des espaces de travail modernes et performants.
Il vous est proposé une surface totale de 654 m² environ sur les rez-de-chaussée / R+1 et R+2, divisée en plusieurs lots à partir de 76 m².
Possibilité de louer en sus des places de parking extérieures.
Accessibilité :
Proximité des axes routiers majeurs et facilité d'accès au centre-ville
Ligne de tramway T2
Bâtiment de dernière génération
Nombreuses places de parking disponibles en sous-sol et en extérieur en sus
Nombreux restaurants et commerces aux alentours
Services et prestations à proximité :
Crèche
Fitness
Restauration
Tous commerces et services au centre-ville à 10 minutes en tramway
Services & prestations
Aménagements
-
Accès Pers. Mobilité Réduite
Equipements
-
Eclairage Bureaux : Commandé par détecteur de présence gradable
-
Faux plafond : Dal. fibres minéral.
-
Fenêtres : Ouvrant à la française oscillo-battant ou fixe double vitrage
-
Revêtement mural : Peinture dans bureaux / livré brut dans commerce
-
Sol bureaux : Moquette
Prestations de service
-
Sécurité : Système de vidéophonie via smartphone
Type / Etat du bâtiment
-
Etat de l'immeuble : Neuf
-
Etat des locaux : Neuf
Informations complémentaires
-
Production d'eau glacée par groupe froid Air/Eau
-
Commerce chauffage/ventilation : coque brute










